Eladó Raktár
Hirdetéskód: 9319275

OTP Ingatlanpont Csongrád

Felújításhoz személyi kölcsönt keres? Kalkuláljon itt! →
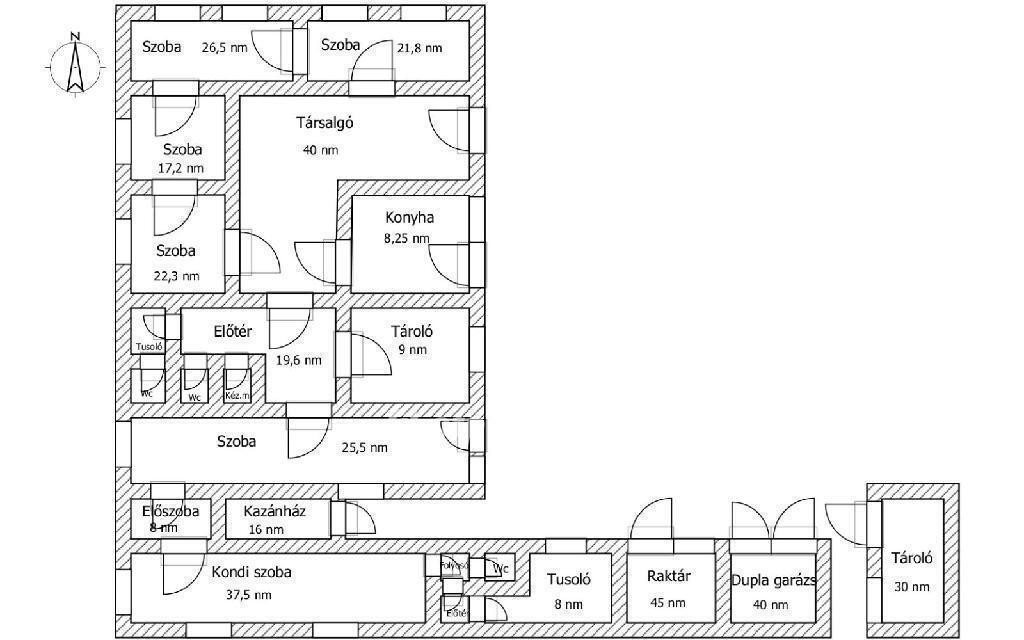
267.00 m2
ALAPTERÜLET
0
SZOBASZÁM
nincs megadva
ÉPÍTÉS
nincs megadva
FŰTÉS
  • CSOK igénybe vehető nem
  • Tetőtér beépíthető nem
  • Építés éve 1950
  • Klíma nem
  • Szigetelt nem
Energetikai besorolás: Nincs meghatározva
A+++
A++
A+
A
B
C
D
E
F
G
H
I

Az MBH Bank személyi kölcsön ajánlata

Fizetett hirdetés
1 millió Ft
6 évre
20 585 Ft/hó
THM: 14.5%
Részletek →
2 millió Ft
6 évre
41 169 Ft/hó
THM: 14.5%
Részletek →
3 millió Ft
6 évre
61 754 Ft/hó
THM: 14.5%
Részletek →

A tájékoztatás nem teljes körű és nem minősül ajánlattételnek.

Az ingatlan leírása

Kizárólag az OTP Ingatlanpont kínálatában! Szentes, Kíséri városrészen sokoldalú, 267 nm-es ingatlan eladó! Eladásra kínálunk Csongrád-Csanád vármegyében, Szentesen, a Kíséri városrészben egy 267 nm-es épületet, amely számos vállalkozási és hasznosítási lehetőséget rejt magában. Ajánlom irodaházként, sportkomplexumként, kereskedelmi vagy gyártási célokra, illetve akár több lakásos társasház kialakítására is! A városközpont egy karnyújtásnyira, mégis nyugodt környezetben. Telek mérete 820 nm, az udvaron található dupla garázs, raktár, tároló, melléképület, fedett kocsibeállók. Az épület több pontján vizesblokk is ki lett alakítva, így könnyen átalakítható különböző funkciókra. Ez az ingatlan számtalan lehetőséget kínál, legyen szó vállalkozás indításáról, bővítésről vagy befektetésről! Ne hagyja ki ezt a kivételes lehetőséget! Kizárólag az OTP Ingatlanpontnál elérhető! Amennyiben felkeltette érdeklődését, hívjon bizalommal, és tekintsük meg együtt! Irodáink Szentes, Petőfi utca 12. (a buszmegálló felől) és Csongrád, Fő utca 54. szám alatt várja a személyes érdeklődőket. az OTP teljes banki hátterével, egyedi ajánlatokkal, sorban állás nélküli, díjmentes ügyintézéssel áll rendelkezésére. ***VÁLASSZUK KI EGYÜTT AZ ÖNNEK LEGMEGFELELŐBB AJÁNLATOT! BANKI SORBAN ÁLLÁS NÉLKÜL! ***

Térkép

Ingatlan adásvétel ügyvédi díja
427 500 Ft
a hirdetésben szereplő ár alapján
  • A vételár 0,45%-a
  • Szerződéscsomag teljeskörű képviselettel
  • Ingyenes tulajdoni lap ellenőrzés
  • Az ÁFA-t már tartalmazza
Érdekel az ajánlat →
A tájékoztatás nem teljes körű és nem minősül ajánlattételnek. Minimum díj: 150 000 Ft, maximum díj: 600 000 Ft. A díj kizárólag lakóingatlan adásvételére vonatkozik.

A hirdető elérhetősége

OTP Ingatlanpont Csongrád

Szlovák Ibolya
+36 70 455