Eladó Raktár
Hirdetéskód: 9247369

OTP Ingatlanpont Csongrád

267.00 m2
ALAPTERÜLET
0
SZOBASZÁM
nincs megadva
ÉPÍTÉS
nincs megadva
FŰTÉS
  • CSOK igénybe vehető nem
  • Tetőtér beépíthető nem
  • Építés éve 1950
  • Klíma nem
  • Szigetelt nem
Energetikai besorolás: Nincs meghatározva
A+++
A++
A+
A
B
C
D
E
F
G
H
I

Az ingatlan leírása

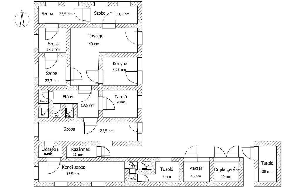
Kizárólag az OTP Ingatlanpont kínálatában! Szentes, Kíséri városrészen sokoldalú, 267 nm-es ingatlan eladó! Eladásra kínálunk Csongrád-Csanád vármegyében, Szentesen, a Kíséri városrészben egy 267 nm-es épületet, amely számos vállalkozási és hasznosítási lehetőséget rejt magában. Ajánlom irodaházként, sportkomplexumként, kereskedelmi vagy gyártási célokra, illetve akár több lakásos társasház kialakítására is! A városközpont egy karnyújtásnyira, mégis nyugodt környezetben. Telek mérete 820 nm, az udvaron található dupla garázs, raktár, tároló, melléképület, fedett kocsibeállók. Az épület több pontján vizesblokk is ki lett alakítva, így könnyen átalakítható különböző funkciókra. Ez az ingatlan számtalan lehetőséget kínál, legyen szó vállalkozás indításáról, bővítésről vagy befektetésről! Ne hagyja ki ezt a kivételes lehetőséget! Kizárólag az OTP Ingatlanpontnál elérhető! Amennyiben felkeltette érdeklődését, hívjon bizalommal, és tekintsük meg együtt! Irodáink Szentes, Petőfi utca 12. (a buszmegálló felől) és Csongrád, Fő utca 54. szám alatt várja a személyes érdeklődőket. az OTP teljes banki hátterével, egyedi ajánlatokkal, sorban állás nélküli, díjmentes ügyintézéssel áll rendelkezésére. ***VÁLASSZUK KI EGYÜTT AZ ÖNNEK LEGMEGFELELŐBB AJÁNLATOT! BANKI SORBAN ÁLLÁS NÉLKÜL! ***

Térkép

A hirdető elérhetősége

OTP Ingatlanpont Csongrád

Vincze Zoltán
+36 70 708