Eladó Raktár
Hirdetéskód: 9309231

OTP Ingatlanpont Csongrád

Felújításhoz személyi kölcsönt keres? Kalkuláljon itt! →
747.00 m2
ALAPTERÜLET
0
SZOBASZÁM
nincs megadva
ÉPÍTÉS
nincs megadva
FŰTÉS
  • CSOK igénybe vehető nem
  • Tetőtér beépíthető nem
  • Építés éve 1920
  • Klíma nem
  • Szigetelt nem
Energetikai besorolás: Nincs meghatározva
A+++
A++
A+
A
B
C
D
E
F
G
H
I

Az MBH Bank személyi kölcsön ajánlata

Fizetett hirdetés
1 millió Ft
6 évre
20 585 Ft/hó
THM: 14.5%
Részletek →
2 millió Ft
6 évre
41 169 Ft/hó
THM: 14.5%
Részletek →
3 millió Ft
6 évre
61 754 Ft/hó
THM: 14.5%
Részletek →

A tájékoztatás nem teljes körű és nem minősül ajánlattételnek.

Az ingatlan leírása

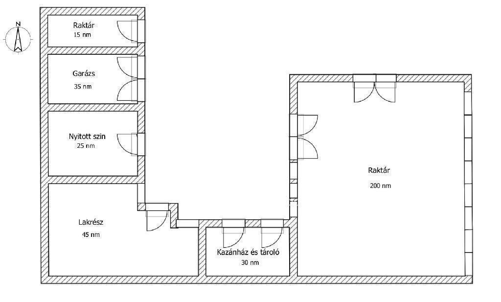
Kizárólag az OTP Ingatlanpont kínálatában! Szentes, Felsőpárton, sokoldalú ingatlan komplexum eladó! Eladásra kínálunk Szentesen, a Felsőpárton egy 747 nm-es, többfunkciós épületkomplexumot, amely számos vállalkozási és hasznosítási lehetőséget rejt magában. A főépület 357 nm, korábban vendéglátóegységként működött, de kialakítása miatt irodai, kereskedelmi vagy gyártási célokra is ideális. Az épületben található utcafrontra nyíló iroda, bemutatóterem és raktárhelyiség, több mosdó, tusoló, konyha valamint gyártó- és kiszolgálóhelyiségek. Minden részegységhez külön vizesblokk tartozik. Az 1200 nm-es telken egy 200 nm-es üzemcsarnok is található, ipari árammal (3×32A, bővíthető 3×65A) felújított világítással. Az udvaron melléképületek, garázs, nyitott szín, valamint egy lakórész is helyet kapott. Ez az ingatlan számtalan lehetőséget kínál, legyen szó vállalkozás indításáról, bővítéséről vagy befektetésről. Ne hagyja ki ezt a kivételes lehetőséget! Kizárólag az OTP Ingatlanpontnál elérhető! Amennyiben az ingatlan felkeltette érdeklődését, hívjon bizalommal és tekintsük meg együtt. Irodánk teljes OTP banki hátterével áll rendelkezésére, egyedi ajánlatokkal, sorban állás nélküli díjmentes ügyintézéssel.

Térkép

Ingatlan adásvétel ügyvédi díja
600 000 Ft
a hirdetésben szereplő ár alapján
  • A vételár 0,45%-a
  • Szerződéscsomag teljeskörű képviselettel
  • Ingyenes tulajdoni lap ellenőrzés
  • Az ÁFA-t már tartalmazza
Érdekel az ajánlat →
A tájékoztatás nem teljes körű és nem minősül ajánlattételnek. Minimum díj: 150 000 Ft, maximum díj: 600 000 Ft. A díj kizárólag lakóingatlan adásvételére vonatkozik.

A hirdető elérhetősége

OTP Ingatlanpont Csongrád

Dr. Szabados Éva
+36 30 309