Eladó Raktár
Hirdetéskód: 9192514

GDN Ingatlanhálózat - Csombók ELAN

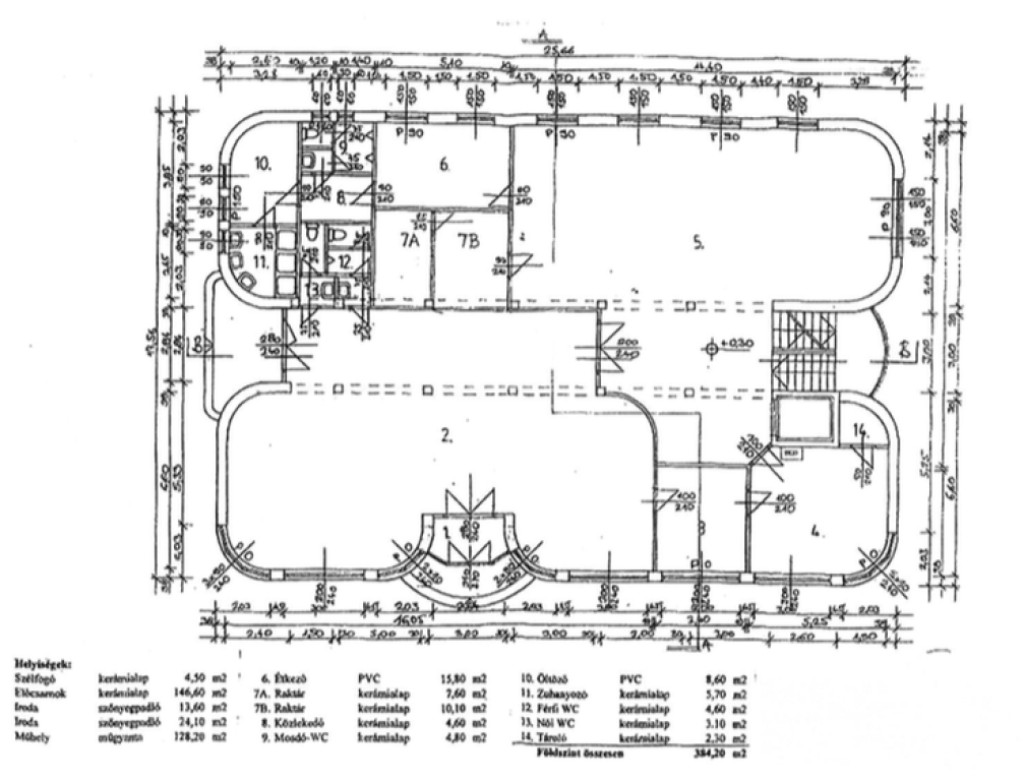
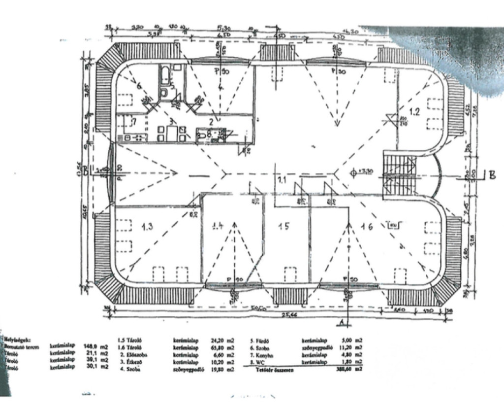
11217 m2
ALAPTERÜLET
0
SZOBASZÁM
nincs megadva
ÉPÍTÉS
nincs megadva
FŰTÉS
  • CSOK igénybe vehető nem
  • Tetőtér beépíthető nem
  • Klíma nem
  • Szigetelt nem
Energetikai besorolás: Nincs meghatározva
A+++
A++
A+
A
B
C
D
E
F
G
H
I

Az ingatlan leírása

Térkép

A hirdető elérhetősége

GDN Ingatlanhálózat - Csombók ELAN

Göbölyös Judit
+36 70 269