Eladó Raktár
Hirdetéskód: 9308610
OTP Ingatlanpont - Takács Zsuzsanna
Felújításhoz személyi kölcsönt keres? Kalkuláljon itt! →541.00 m2
ALAPTERÜLET0
SZOBASZÁMnincs megadva
ÉPÍTÉSnincs megadva
FŰTÉS- CSOK igénybe vehető nem
- Tetőtér beépíthető nem
- Építés éve 2002
- Klíma nem
- Szigetelt nem
A+++
A++
A+
A
B
C
D
E
F
G
H
I
Az ingatlan leírása
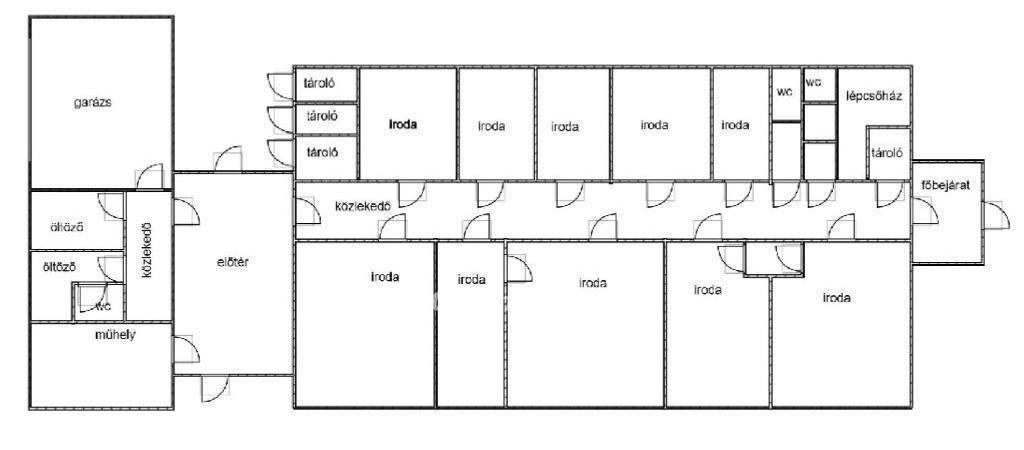
*** Csak az OTP Ingatlanpont kínálatában! *** Diósdon a 7-es főúttól pár percre, csendes, családias környezetben egy 1509 m2-es sík, körbekerített telken, 541 m2-es 2002. évi építésű, újszerű; családi házi jellegű, belső két szintes épület ELADÓ!
Az ingatlan jó műszaki, esztétikai állapotú. Az épület különálló mérőórákkal felszerelt. Az épület hátsó részében egy 28 m2-es fűtött garázs áll rendelkezésre, valamint az épület mögött a telken, 6-8 helyes parkoló helyezkedik el, továbbá a telek előtt az utcán 3 autó is meg tud állni. Két fő épületrészből álló ingatlant kínálunk megvételre az M0 autóút közelségében, mégis csendes helyen. 450 m2-es kétszintes középfolyosós főépületből és 91 m2-es szociális és garázs blokkból áll. 2 kazán látja el az ingatlan fűtését. 3x80 A áram van bekötve.
Két éve nincs használatban, laborként üzemelt. Az ingatlan könnyen más funkcióra is átalakítható, jól hasznosítható. Az ingatlan jelenleg üres.
M318830
Az OTP Ingatlanpont, mint egyetlen közvetlen banki hátterű ingatlanközvetítő társaság teljes körű ügyintézéssel áll az eladók és a vevők rendelkezésére! A kínálatunkból választott ingatlan finanszírozásához minősített fogyasztóbarát, piaci és kedvezményes hitel- és lízingkonstrukciókat kínálunk (lakásvásárlási hitel, CSOK plusz, szabad felhasználású hitel, babaváró hitel, céges hitelek, pályázatok, amennyiben az ügyfél és az ingatlan megfelel a feltételeknek). Az adásvételi szerződés megkötéséhez igény szerint megbízható ügyvédi közreműködést biztosítunk, és segítséget nyújtunk az adásvételhez kapcsolódó egyéb ügyek intézéséhez.
Ha az új ingatlana megvásárlásához a jelenlegi ingatlanát el kell adnia, abban is szívesen segítünk.
Az ingatlan jó műszaki, esztétikai állapotú. Az épület különálló mérőórákkal felszerelt. Az épület hátsó részében egy 28 m2-es fűtött garázs áll rendelkezésre, valamint az épület mögött a telken, 6-8 helyes parkoló helyezkedik el, továbbá a telek előtt az utcán 3 autó is meg tud állni. Két fő épületrészből álló ingatlant kínálunk megvételre az M0 autóút közelségében, mégis csendes helyen. 450 m2-es kétszintes középfolyosós főépületből és 91 m2-es szociális és garázs blokkból áll. 2 kazán látja el az ingatlan fűtését. 3x80 A áram van bekötve.
Két éve nincs használatban, laborként üzemelt. Az ingatlan könnyen más funkcióra is átalakítható, jól hasznosítható. Az ingatlan jelenleg üres.
M318830
Az OTP Ingatlanpont, mint egyetlen közvetlen banki hátterű ingatlanközvetítő társaság teljes körű ügyintézéssel áll az eladók és a vevők rendelkezésére! A kínálatunkból választott ingatlan finanszírozásához minősített fogyasztóbarát, piaci és kedvezményes hitel- és lízingkonstrukciókat kínálunk (lakásvásárlási hitel, CSOK plusz, szabad felhasználású hitel, babaváró hitel, céges hitelek, pályázatok, amennyiben az ügyfél és az ingatlan megfelel a feltételeknek). Az adásvételi szerződés megkötéséhez igény szerint megbízható ügyvédi közreműködést biztosítunk, és segítséget nyújtunk az adásvételhez kapcsolódó egyéb ügyek intézéséhez.
Ha az új ingatlana megvásárlásához a jelenlegi ingatlanát el kell adnia, abban is szívesen segítünk.