Eladó Raktár
Hirdetéskód: 9192802
GDN Ingatlanhálózat - Sashalom
Felújításhoz személyi kölcsönt keres? Kalkuláljon itt! →25600.00 m2
ALAPTERÜLET0
SZOBASZÁMnincs megadva
ÉPÍTÉSnincs megadva
FŰTÉS- CSOK igénybe vehető nem
- Tetőtér beépíthető nem
- Klíma nem
- Szigetelt nem
A+++
A++
A+
A
B
C
D
E
F
G
H
I
Az ingatlan leírása
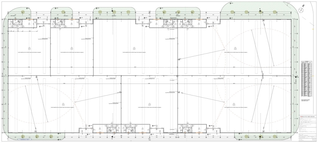
KIVÁLÓ BEFEKTETÉSI LEHETŐSÉG – FEJLESZTÉSI PROJEKT TELJES TERVDOKUMENTÁCIÓVAL!
Budapest XVI. kerületének dinamikusan fejlődő gazdasági és ipari övezetében kínálunk megvételre egy 25.000 m²-es, GKSZ besorolású fejlesztési területet, teljes tervekkel és engedélyezett koncepcióval két modern csarnoképület megvalósítására.
A projekt raktározási és logisztikai funkciókra lett tervezve, összesen 8.000 m² beépített csarnokterülettel, mely két, külön értékesíthető egységre tagolódik: 5700 nm és 2300 nm.
Főbb jellemzők:
25.000 m² összközműves telek. 42.000FT/nm
- Szociális blokkok multi-split klímával felszerelve
- Napelemrendszer előkészítéssel
- Ipari beton padozat, 20 cm vastagságban
- 12 cm hőszigetelt szendvicspanel homlokzat és panelburkolat
- Hőszigetelt műanyag nyílászárók, bukó-nyíló vasalattal, 3 rétegű üvegezéssel
- Antracit színű ipari kapuk (Alutech vagy ezzel egyenértékű)
- Felülvilágító polikarbonát sávok a természetes fényért
- Hörmann ZK típusú belső ajtók
- 4 X 4,5 m-es szekcionált ipari kapuk
- Saját parkolók, egyedi mérőórás közművekkel
- Bővíthető ipari áramkapacitás
Elhelyezkedés: könnyen megközelíthető, fő közlekedési útvonalak közelében
Hasznosítás: logisztika, raktározás, ipari tevékenység
Befektetőknek ideális – a projekt akár részben, akár egészben értékesíthető.
Amennyiben hirdetésem felkeltette érdeklődését, várom hívását a hét bármely napján. ...TOVÁBBI, TÖBBEZRES INGATLAN KÍNÁLAT: - GDN azonosító: 388512
Budapest XVI. kerületének dinamikusan fejlődő gazdasági és ipari övezetében kínálunk megvételre egy 25.000 m²-es, GKSZ besorolású fejlesztési területet, teljes tervekkel és engedélyezett koncepcióval két modern csarnoképület megvalósítására.
A projekt raktározási és logisztikai funkciókra lett tervezve, összesen 8.000 m² beépített csarnokterülettel, mely két, külön értékesíthető egységre tagolódik: 5700 nm és 2300 nm.
Főbb jellemzők:
25.000 m² összközműves telek. 42.000FT/nm
- Szociális blokkok multi-split klímával felszerelve
- Napelemrendszer előkészítéssel
- Ipari beton padozat, 20 cm vastagságban
- 12 cm hőszigetelt szendvicspanel homlokzat és panelburkolat
- Hőszigetelt műanyag nyílászárók, bukó-nyíló vasalattal, 3 rétegű üvegezéssel
- Antracit színű ipari kapuk (Alutech vagy ezzel egyenértékű)
- Felülvilágító polikarbonát sávok a természetes fényért
- Hörmann ZK típusú belső ajtók
- 4 X 4,5 m-es szekcionált ipari kapuk
- Saját parkolók, egyedi mérőórás közművekkel
- Bővíthető ipari áramkapacitás
Elhelyezkedés: könnyen megközelíthető, fő közlekedési útvonalak közelében
Hasznosítás: logisztika, raktározás, ipari tevékenység
Befektetőknek ideális – a projekt akár részben, akár egészben értékesíthető.
Amennyiben hirdetésem felkeltette érdeklődését, várom hívását a hét bármely napján. ...TOVÁBBI, TÖBBEZRES INGATLAN KÍNÁLAT: - GDN azonosító: 388512