Eladó Lakás
Hirdetéskód: 9226107
OTP Ingatlanpont Siófok
136 m2
ALAPTERÜLET4
SZOBASZÁMnincs megadva
ÉPÍTÉSnincs megadva
FŰTÉS- CSOK igénybe vehető nem
- Tetőtér beépíthető nem
- Építés éve 2005
- Klíma nem
- Szigetelt nem
A+++
A++
A+
A
B
C
D
E
F
G
H
I
Az ingatlan leírása
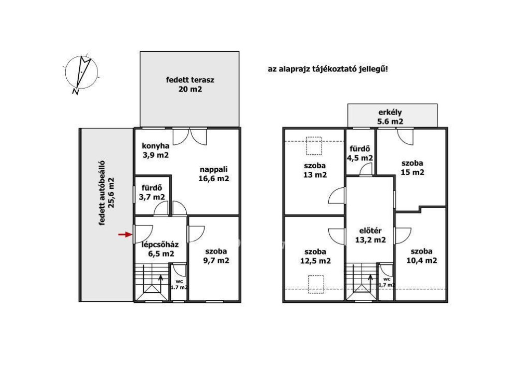
A Balaton déli partján, Zamárdiban 136 m2-es 4 hálószobás ház eladó. A város zöldövezeti részén, 444 m2-en telken fekvő kétszintes ház földszinti helyiségei: amerikai konyhás nappali, fedett terasz, háló, fürdő, wc. Az emeleten 3 háló, fürdőszoba, wc és egy jelenleg tároló/gardrób szobaként funkcionáló helyiség, amiből igény esetén még egy szoba kialakítható. A 25 m2-es fedett autóbeálló beépítésére is van lehetőség. Az emeleten egy szoba erkélyre nyílik, a földszinten az amerikai konyhás nappali pedig terasz kapcsolatos. A szomszédos egységeket dupla 38 cm-es Porotherm tégla választja el, a két egység között légréssel, így az ingatlan teljesen szeparált. A ház 2005-ben épült, azóta többszöri felújításon esett át, kívül-belül jó állapotú. Automata kapunyitás és riasztó vezetékes előkészítése megtörtént. Fűtéséről cirkó gázkazán gondoskodik, radiátoros hőleadással, az emeleten hűtő-fűtő klíma biztosítja a kellemes hőmérsékletet. A lakótér alapterülete 109 m2, a terasz, erkély, autóbeálló 50%-kal került beszámításra.
Családi házas, nyugodt környék. A közelben iskola, orvosi rendelő, élelmiszerbolt. A Balaton- parttól 1,5 km távolságra található az ingatlan.
Lakóingatlan vásárláshoz az OTP bank pénzügyi termékeivel hitel, CSOK ügyintézésben vevőinknek segítséget adunk!
Otthon Start Hitelprogram.
Megtekintésért, további információért kérem hívjon!
Családi házas, nyugodt környék. A közelben iskola, orvosi rendelő, élelmiszerbolt. A Balaton- parttól 1,5 km távolságra található az ingatlan.
Lakóingatlan vásárláshoz az OTP bank pénzügyi termékeivel hitel, CSOK ügyintézésben vevőinknek segítséget adunk!
Otthon Start Hitelprogram.
Megtekintésért, további információért kérem hívjon!