Eladó Lakás
Hirdetéskód: 9258877
GDN Ingatlanhálózat - Csombók ELAN
Felújításhoz személyi kölcsönt keres? Kalkuláljon itt! →90.00 m2
ALAPTERÜLET3
SZOBASZÁMnincs megadva
ÉPÍTÉSnincs megadva
FŰTÉS- CSOK igénybe vehető nem
- Tetőtér beépíthető nem
- Klíma nem
- Szigetelt nem
A+++
A++
A+
A
B
C
D
E
F
G
H
I
Az ingatlan leírása
Prémium lakásokat kínálunk megvételre Zamárdi szívében, a Balaton partjától mindössze 100 m távolságra.
A lakások terasszal, kertkapcsolattal, napozó terasszal, autó beállóval + autótöltési lehetőséggel, tárolóval épülnek.
A házban 8 személyes felvonó működik, az épület akadálymentesített.
Az udvar parkosított.
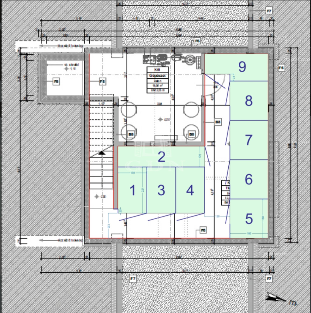
Az ingatlanban 9 db lakás épül.
Földszint 1-es lakás beosztása és vételára:
- Nappali 20,88 nm,
- Konyha+étkező 10,77 nm,
- Gardrób 7,66 nm,
- Szoba 10,92 nm,
- Szoba 10,92 nm,
- Fürdőszoba 4,38 nm,
- WC 1,18 nm,
-------------------------------
Lakás nettó alapterülete: 66,71 nm
+ Terasz 12 nm,
+ Saját kertrész 104 nm,
+ Tároló 3,24 nm,
+ Napozó terasz 10,32 nm,
+ Autó beálló 20,47 nm,
--------------------------------
Összesen: 144.190.000 Ft
Az ingatlan ideális választás mindazok számára, akik modern, energiatakarékos otthont, illetve hosszú távon is értékálló befektetést keresnek a Balaton közvetlen közelében.
Főbb jellemzők:
• Letisztult, modern megjelenés, magas színvonalú kivitelezés,
• A+++ energiaosztály–szinte
" 0"rezsiköltség, fenntartható működés,
• Már csak 6 apartman, különböző méretekben, átgondolt alaprajzokkal,
Műszaki tartalom:
- vasbeton tartószerkezet, külső falak 25 cm SILKA tégla+ 30 cm Multipor szigetelés,
- 3 rétegű fehér nyílászáró + elektromos alumínium redőny+
szúnyogháló ( távolról vezérelhető)
- több ponton záródó bejárati ajtók + elegáns kilincsgarnitúra,
- minden lakás saját főmérővel rendelkezik 1x 32 A kapacitással,
- TV+ LAN csatlakozó, riasztó előkészítés,
- Napelemekkel működő hőszivattyú rendszere biztosítja a hűtést-fűtést,
- fürdőszobákban + elektromos padlófűtés,
( fan-coil), melegvíz ellátást, közös területek, felvonó áramellátását,
elektromos autó töltést,
- egyedi hőmennyiségmérők + programozható szobatermosztátok,
- a lakások előkészítve vannak okosotthon rendszerek teljes skálájára.
- elektromos nagykapu,
- öntöző rendszer.
Birtokbaadás 2 hónap
Irodánk 30 éves szakmai tapasztalattal áll ügyfelei rendelkezésére!
Várom szíves megkeresését! ...TOVÁBBI, TÖBBEZRES INGATLAN KÍNÁLAT: - GDN azonosító: 386482
A lakások terasszal, kertkapcsolattal, napozó terasszal, autó beállóval + autótöltési lehetőséggel, tárolóval épülnek.
A házban 8 személyes felvonó működik, az épület akadálymentesített.
Az udvar parkosított.
Az ingatlanban 9 db lakás épül.
Földszint 1-es lakás beosztása és vételára:
- Nappali 20,88 nm,
- Konyha+étkező 10,77 nm,
- Gardrób 7,66 nm,
- Szoba 10,92 nm,
- Szoba 10,92 nm,
- Fürdőszoba 4,38 nm,
- WC 1,18 nm,
-------------------------------
Lakás nettó alapterülete: 66,71 nm
+ Terasz 12 nm,
+ Saját kertrész 104 nm,
+ Tároló 3,24 nm,
+ Napozó terasz 10,32 nm,
+ Autó beálló 20,47 nm,
--------------------------------
Összesen: 144.190.000 Ft
Az ingatlan ideális választás mindazok számára, akik modern, energiatakarékos otthont, illetve hosszú távon is értékálló befektetést keresnek a Balaton közvetlen közelében.
Főbb jellemzők:
• Letisztult, modern megjelenés, magas színvonalú kivitelezés,
• A+++ energiaosztály–szinte
" 0"rezsiköltség, fenntartható működés,
• Már csak 6 apartman, különböző méretekben, átgondolt alaprajzokkal,
Műszaki tartalom:
- vasbeton tartószerkezet, külső falak 25 cm SILKA tégla+ 30 cm Multipor szigetelés,
- 3 rétegű fehér nyílászáró + elektromos alumínium redőny+
szúnyogháló ( távolról vezérelhető)
- több ponton záródó bejárati ajtók + elegáns kilincsgarnitúra,
- minden lakás saját főmérővel rendelkezik 1x 32 A kapacitással,
- TV+ LAN csatlakozó, riasztó előkészítés,
- Napelemekkel működő hőszivattyú rendszere biztosítja a hűtést-fűtést,
- fürdőszobákban + elektromos padlófűtés,
( fan-coil), melegvíz ellátást, közös területek, felvonó áramellátását,
elektromos autó töltést,
- egyedi hőmennyiségmérők + programozható szobatermosztátok,
- a lakások előkészítve vannak okosotthon rendszerek teljes skálájára.
- elektromos nagykapu,
- öntöző rendszer.
Birtokbaadás 2 hónap
Irodánk 30 éves szakmai tapasztalattal áll ügyfelei rendelkezésére!
Várom szíves megkeresését! ...TOVÁBBI, TÖBBEZRES INGATLAN KÍNÁLAT: - GDN azonosító: 386482