Eladó Lakás
Hirdetéskód: 9185782
GDN Ingatlanhálózat - Csombók ELAN
Ez a hirdetés megfelelhet a FIX 3%-os programnak.
Tudj meg többet a részletekről itt.
47.00 m2
ALAPTERÜLET2
SZOBASZÁMnincs megadva
ÉPÍTÉSnincs megadva
FŰTÉS- CSOK igénybe vehető nem
- Tetőtér beépíthető nem
- Klíma nem
- Szigetelt nem
A+++
A++
A+
A
B
C
D
E
F
G
H
I
Az ingatlan leírása
A+++ Energetikai besorolású ingatlan mely a Otthon Start hitellel megvásárolható!
Prémium lakásokat kínálunk megvételre Zamárdi szívében, a Balaton partjától mindössze 100 m távolságra.
A lakások terasszal, kertkapcsolattal, napozó terasszal, autó beállóval + autótöltési lehetőséggel, tárolóval épülnek.
A házban 8 személyes felvonó működik, az épület akadálymentesített.
Az udvar parkosított.
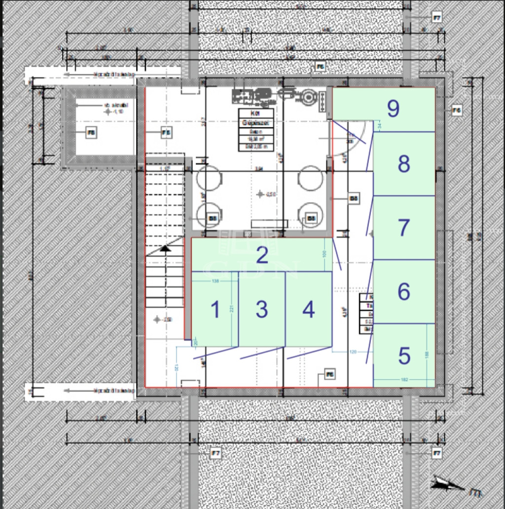
Az ingatlanban 9 db lakás épül.
-A földszint 2-es számú lakás 47 m2-es, teraszos, kertkapcsolatos,
helyiségei: előtér, egy légterű nappali - étkező - konyha, 1 hálószoba,
fürdőszoba WC-vel.
- A földszinti 2-es számú lakás ára 70.032.270 Ft.
- A lakáshoz tartozó további (kötelezően megvásárolandó) tartozékok: 8,55 m2-es terasz, 27 m2-es kizárólagos használatú kertrész, 10,32 m2-es tetőterasz, 16,6 m2-es fedett autóbeálló, 3,24 m2-es pinceszinti tároló. A tartozékok ára összesen 27.043.830 Ft
A nettó 47 nm-es lakás-
+ Terasz 8,55 nm,
+ Saját kertrész 22 nm
+ Tároló 3,24 nm,
+ Napozó terasz 10,32 nm,
+ Autó beálló 16,6 nm,
---------------------------------
Összesen: 97.100.000.-Ft
Műszaki tartalom:
- vasbeton tartószerkezet, külső falak 25 cm SILKA tégla+ 30 cm Multipor szigetelés, belső válaszfalak 12 cm,
- 3 rétegű fehér nyílászáró + elektromos alumínium redőny+
szunyogháló ( távolról vezérelhető)
- többponton záródó bejárati ajtók + elegáns kilincsgarnitúra,
- minden lakás saját főmérővel rendelkezik 1x 32 A kapacitással,
- TV+ LAN csatlakozó, riasztó előkészítés,
- Napelemekkel működő hőszivattyú rendszere biztosítja a hűtést-fűtést
( fan-coil), melegvíz ellátást, közös területek, felvonó áramellátását,
elektromos autó töltést,
- egyedi hőmennyiségmérők + programozható szobatermosztátok,
- a lakások előkészítve vannak okosotthon rendszerek teljes skálájára.
Az ingatlan energetikai besorolása A+++, így nem csak nulla lesz a lakás rezsije de még pénzt is termel a tulajdonosának.
Birtokbaadás: 1-2 hónap
Amivel segítjük az Ön ingatlanvásárlását:
- ingyenes hitelügyintézés,
- jogi háttér,
- földhivatali ügyintézés,
- energetikai tanúsítvány,
- a vevő számára az ingatlanközvetítés ingyenes.
Irodánk 30 éves szakmai tapasztalattal áll ügyfelei rendelkezésére!
Várom szíves megkeresését! ...TOVÁBBI, TÖBBEZRES INGATLAN KÍNÁLAT: - GDN azonosító: 386484
Prémium lakásokat kínálunk megvételre Zamárdi szívében, a Balaton partjától mindössze 100 m távolságra.
A lakások terasszal, kertkapcsolattal, napozó terasszal, autó beállóval + autótöltési lehetőséggel, tárolóval épülnek.
A házban 8 személyes felvonó működik, az épület akadálymentesített.
Az udvar parkosított.
Az ingatlanban 9 db lakás épül.
-A földszint 2-es számú lakás 47 m2-es, teraszos, kertkapcsolatos,
helyiségei: előtér, egy légterű nappali - étkező - konyha, 1 hálószoba,
fürdőszoba WC-vel.
- A földszinti 2-es számú lakás ára 70.032.270 Ft.
- A lakáshoz tartozó további (kötelezően megvásárolandó) tartozékok: 8,55 m2-es terasz, 27 m2-es kizárólagos használatú kertrész, 10,32 m2-es tetőterasz, 16,6 m2-es fedett autóbeálló, 3,24 m2-es pinceszinti tároló. A tartozékok ára összesen 27.043.830 Ft
A nettó 47 nm-es lakás-
+ Terasz 8,55 nm,
+ Saját kertrész 22 nm
+ Tároló 3,24 nm,
+ Napozó terasz 10,32 nm,
+ Autó beálló 16,6 nm,
---------------------------------
Összesen: 97.100.000.-Ft
Műszaki tartalom:
- vasbeton tartószerkezet, külső falak 25 cm SILKA tégla+ 30 cm Multipor szigetelés, belső válaszfalak 12 cm,
- 3 rétegű fehér nyílászáró + elektromos alumínium redőny+
szunyogháló ( távolról vezérelhető)
- többponton záródó bejárati ajtók + elegáns kilincsgarnitúra,
- minden lakás saját főmérővel rendelkezik 1x 32 A kapacitással,
- TV+ LAN csatlakozó, riasztó előkészítés,
- Napelemekkel működő hőszivattyú rendszere biztosítja a hűtést-fűtést
( fan-coil), melegvíz ellátást, közös területek, felvonó áramellátását,
elektromos autó töltést,
- egyedi hőmennyiségmérők + programozható szobatermosztátok,
- a lakások előkészítve vannak okosotthon rendszerek teljes skálájára.
Az ingatlan energetikai besorolása A+++, így nem csak nulla lesz a lakás rezsije de még pénzt is termel a tulajdonosának.
Birtokbaadás: 1-2 hónap
Amivel segítjük az Ön ingatlanvásárlását:
- ingyenes hitelügyintézés,
- jogi háttér,
- földhivatali ügyintézés,
- energetikai tanúsítvány,
- a vevő számára az ingatlanközvetítés ingyenes.
Irodánk 30 éves szakmai tapasztalattal áll ügyfelei rendelkezésére!
Várom szíves megkeresését! ...TOVÁBBI, TÖBBEZRES INGATLAN KÍNÁLAT: - GDN azonosító: 386484