Eladó Lakás
Hirdetéskód: 9157995
Dream-Ing Ingatlaniroda
68 m2
ALAPTERÜLET3
SZOBASZÁMTégla
ÉPÍTÉSGáz (konvektor)
FŰTÉS- CSOK igénybe vehető igen
- Belső szintek 2
- Tetőtér beépíthető nem
- Kilátás Kertre néző
- Tájolás Nyugat
- Ingatlan komfort Összkomfortos
- Parkolási lehetőség Önálló garázs
- Építés éve 1959
- Fűtés Gáz (konvektor)
- Építőanyag Tégla
- Erkély, terasz Erkély
- Klíma nem
- Szigetelt nem
A+++
A++
A+
A
B
C
D
E
F
G
H
I
Az ingatlan leírása
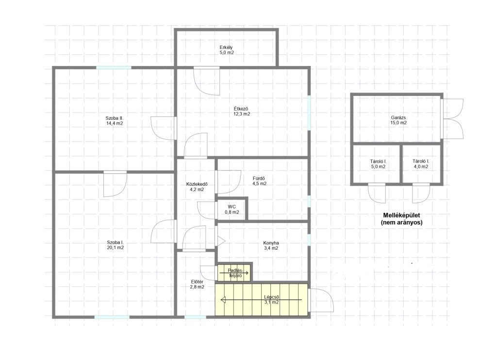
Veszprém belvárosában, első emeleti erkélyes, felújítandó négyes társasházi lakás kis kertrésszel, garázzsal eladó, melynek főbb paraméterei:
- 1959-ben épült téglából,
- 68nm-es, három szobás
- fűtése gáz-konvektoros, fürdőben elektromos, törölközőszárítós radiátor lett kialakítva,
- az elmúlt évek felújítása során, a tető cserép héjazatot kaptt,
- a nyílászárókat háromrétegű hő-és hangszigeteltre cserélték és redőnnyel látták el,
- fürdőszoba és Wc mind esztétikailag, mind műszakilag megújult (vízvezetékek cseréje is megtörtént)
- a konyhába új bútor és gáztűzhely került
- a melegvizet új átfolyós gázbojler biztosítja
- a nappali Ny-i, a másik két szoba K-i tájolású.
- kertrész kb. 200nm, mely lehetőséget ad pihenésre, kertészkedésre, gyerekeknek játszásra
- a garázshoz tarttozik két tároló, melyek alkalmasak kertieszközök, kerékpárok tárolására
- a telken két autóval is megoldható a parkolás
Elhelyezkedésének köszönhetően kiváló lehetőség irodának vagy rendelőnek is!
Könnyen megközelíthető tömegközlekedéssel, autóval ill. a parkolás is megoldott a ház közvet közelében.
Iá: 63.000.000 Ft
Amennyiben felkeltette érdeklődését az ingatlan, forduljon hozzám bizalommal további kérdéseivel!
Érd.:
- 1959-ben épült téglából,
- 68nm-es, három szobás
- fűtése gáz-konvektoros, fürdőben elektromos, törölközőszárítós radiátor lett kialakítva,
- az elmúlt évek felújítása során, a tető cserép héjazatot kaptt,
- a nyílászárókat háromrétegű hő-és hangszigeteltre cserélték és redőnnyel látták el,
- fürdőszoba és Wc mind esztétikailag, mind műszakilag megújult (vízvezetékek cseréje is megtörtént)
- a konyhába új bútor és gáztűzhely került
- a melegvizet új átfolyós gázbojler biztosítja
- a nappali Ny-i, a másik két szoba K-i tájolású.
- kertrész kb. 200nm, mely lehetőséget ad pihenésre, kertészkedésre, gyerekeknek játszásra
- a garázshoz tarttozik két tároló, melyek alkalmasak kertieszközök, kerékpárok tárolására
- a telken két autóval is megoldható a parkolás
Elhelyezkedésének köszönhetően kiváló lehetőség irodának vagy rendelőnek is!
Könnyen megközelíthető tömegközlekedéssel, autóval ill. a parkolás is megoldott a ház közvet közelében.
Iá: 63.000.000 Ft
Amennyiben felkeltette érdeklődését az ingatlan, forduljon hozzám bizalommal további kérdéseivel!
Érd.: