Eladó Lakás
Hirdetéskód: 9260648
Kompakt Ingatlan Kft
Felújításhoz személyi kölcsönt keres? Kalkuláljon itt! →
Ez a hirdetés megfelelhet a FIX 3%-os programnak.
Tudj meg többet a részletekről itt.
42.00 m2
ALAPTERÜLET2
SZOBASZÁMTégla
ÉPÍTÉSEgyéb fűtés
FŰTÉS- CSOK igénybe vehető nem
- Belső szintek 4
- Tetőtér beépíthető nem
- Ingatlan komfort Összkomfortos
- Építés éve 2026
- Fűtés Egyéb fűtés
- Építőanyag Tégla
- Erkély, terasz Terasz
- Klíma nem
- Szigetelt nem
A+++
A++
A+
A
B
C
D
E
F
G
H
I
Az ingatlan leírása
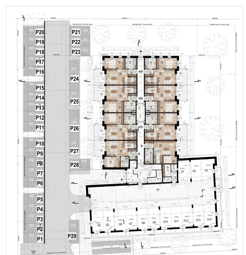
Veszprém dinamikusan fejlődő, csendes kertvárosi részén, kiváló infrastruktúrával és könnyű megközelíthetőséggel kínálunk eladásra újépítésű lakásokat. Az ingatlan egy földszint + 3 emeletből álló, összesen 43 lakásos társasház, korszerű energetikai megoldásokkal, prémium minőségben épül.
A modern, liftes társasház kényelmes életkörnyezetet biztosít leendő lakói számára. 29-75 m2 alapterületű, napfényes, praktikus elrendezésű lakások kerültek kialakításra, így mindenki megtalálhatja az elképzeléseinek és igényeinek megfelelő otthont.
Az építkezés folyamatban van, várhatóan 2027. IV. negyedévében kerül befejezésre.
A társasházban teremgarázs és kültéri parkolók állnak rendelkezésre, ezekből opcionálisan lehet választani. Ezen kívül privát tároló megvásárlására is van lehetőség. A földszinti lakásokhoz saját kert és terasz, az emeletiekhez pedig erkély tartozik.
Az ingatlan fűtését központi hőszivattyú biztosítja, padlófűtéssel, egyedi hőmennyiségmérővel.
A BL001-es lakás, földszinti, 42,4 m2 alapterületű, amihez 8,76 m2-es terasz tartozik.
Elosztását tekintve: előtér, nappali-konyha-étkező, 1 szoba, fürdőszoba.
A lakás fűtéskész vételára bruttó 47.990.000 Ft, kérhető a kulcsrakész befejezés, így az ára bruttó 54.990.000 Ft.
Parkoló ára: 2.800.000 Ft.
Garázs ára: 7.800.000 Ft - 8.500.000 Ft. A lakásokhoz 1 db parkoló vagy 1 db garázs megvásárlása kötelező.
Lehetőség van tároló vásárlására is, ára: 1.800.000 Ft – 2.200.000 Ft/db
A további lakástípusokat honlapunkon is megtalálja.
Használja ki az illetékmentességet és a 3 %-os Otthon Start programot!
Irodánk díjmentes pénzügyi tanácsadással áll ügyfelei rendelkezésére. Bankfüggetlen közvetítőként megtaláljuk az Ön számára legkedvezőbb pénzügyi megoldásokat és támogatjuk az ügylet teljeskörű lebonyolításában.
Bővebb információkért hívjon, akár hétvégén is!
A modern, liftes társasház kényelmes életkörnyezetet biztosít leendő lakói számára. 29-75 m2 alapterületű, napfényes, praktikus elrendezésű lakások kerültek kialakításra, így mindenki megtalálhatja az elképzeléseinek és igényeinek megfelelő otthont.
Az építkezés folyamatban van, várhatóan 2027. IV. negyedévében kerül befejezésre.
A társasházban teremgarázs és kültéri parkolók állnak rendelkezésre, ezekből opcionálisan lehet választani. Ezen kívül privát tároló megvásárlására is van lehetőség. A földszinti lakásokhoz saját kert és terasz, az emeletiekhez pedig erkély tartozik.
Az ingatlan fűtését központi hőszivattyú biztosítja, padlófűtéssel, egyedi hőmennyiségmérővel.
A BL001-es lakás, földszinti, 42,4 m2 alapterületű, amihez 8,76 m2-es terasz tartozik.
Elosztását tekintve: előtér, nappali-konyha-étkező, 1 szoba, fürdőszoba.
A lakás fűtéskész vételára bruttó 47.990.000 Ft, kérhető a kulcsrakész befejezés, így az ára bruttó 54.990.000 Ft.
Parkoló ára: 2.800.000 Ft.
Garázs ára: 7.800.000 Ft - 8.500.000 Ft. A lakásokhoz 1 db parkoló vagy 1 db garázs megvásárlása kötelező.
Lehetőség van tároló vásárlására is, ára: 1.800.000 Ft – 2.200.000 Ft/db
A további lakástípusokat honlapunkon is megtalálja.
Használja ki az illetékmentességet és a 3 %-os Otthon Start programot!
Irodánk díjmentes pénzügyi tanácsadással áll ügyfelei rendelkezésére. Bankfüggetlen közvetítőként megtaláljuk az Ön számára legkedvezőbb pénzügyi megoldásokat és támogatjuk az ügylet teljeskörű lebonyolításában.
Bővebb információkért hívjon, akár hétvégén is!