Eladó Lakás
Hirdetéskód: 9299984
Magyar Ingatlanközvetítők Országos Szövetsége
Felújításhoz személyi kölcsönt keres? Kalkuláljon itt! →
Ez a hirdetés megfelelhet a FIX 3%-os programnak.
Tudj meg többet a részletekről itt.
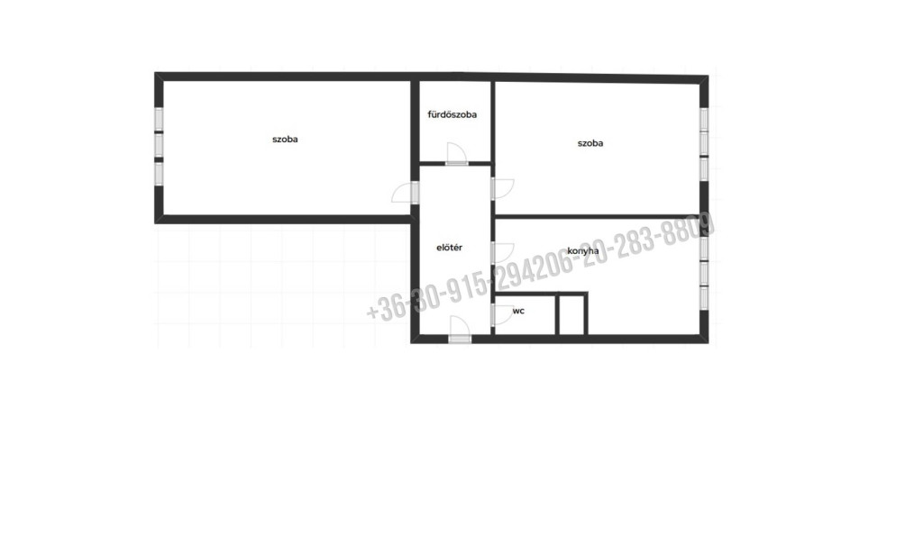
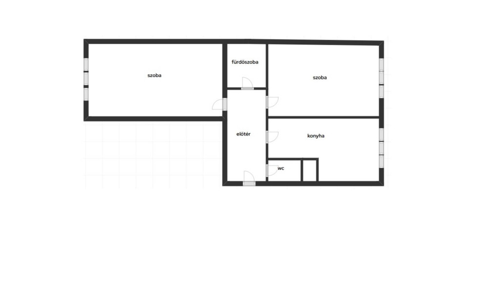
57.00 m2
ALAPTERÜLET2
SZOBASZÁMnincs megadva
ÉPÍTÉSTávfűtés
FŰTÉS- CSOK igénybe vehető nem
- Tetőtér beépíthető nem
- Építés éve 1980
- Fűtés Távfűtés
- Klíma nem
- Szigetelt nem
A+++
A++
A+
A
B
C
D
E
F
G
H
I
Az ingatlan leírása
Eladó Vácon, a Nagymező utcában egy 57 m²-es, első emeleti lakás.
A lakás jó elosztású, világos terekkel rendelkezik, az elmúlt időszakban részben esztétikai felújításon esett át, így rendezett állapotban várja új tulajdonosát. A lakásban 2 db Daikin klíma és 1×16 A elektromos kapacitás áll rendelkezésre, a mindennapi használat során minden berendezés megfelelően működik, a klíma használata sem okoz problémát.
A fűtés távfűtéses rendszerrel megoldott, egyedi mérő nélkül.
Az első emeleti elhelyezkedés kényelmes, ugyanakkor fontos megjegyezni, hogy a lakás nem rendelkezik erkéllyel.
A környék infrastruktúrája kiváló: a közelben üzletek, szolgáltatások és intézmények is megtalálhatók. A tömegközlekedés nagyon kedvező, a vasútállomás és a buszmegállók könnyen elérhetők, így Budapest irányába is gyors és kényelmes a közlekedés.
Az utcában a parkolás ingyenes, ami a környéken külön előnyt jelent.
További információért vagy megtekintésért hívjon bizalommal!
Néhány adat a megbízó által közölt információ alapján került feltüntetésre, így a tévedés jogát fenntartjuk!
Egyéb információért hívjon bizalommal.
Amiben segítjük Önöket:
- hitel ügyintézés
- CSOK ügyintézés
- energetikai tanúsítvány
- földhivatali háttér
- földmérés
- értékbecslés
- ingyenes ajánlatküldés országos rendszerből!
A lakás jó elosztású, világos terekkel rendelkezik, az elmúlt időszakban részben esztétikai felújításon esett át, így rendezett állapotban várja új tulajdonosát. A lakásban 2 db Daikin klíma és 1×16 A elektromos kapacitás áll rendelkezésre, a mindennapi használat során minden berendezés megfelelően működik, a klíma használata sem okoz problémát.
A fűtés távfűtéses rendszerrel megoldott, egyedi mérő nélkül.
Az első emeleti elhelyezkedés kényelmes, ugyanakkor fontos megjegyezni, hogy a lakás nem rendelkezik erkéllyel.
A környék infrastruktúrája kiváló: a közelben üzletek, szolgáltatások és intézmények is megtalálhatók. A tömegközlekedés nagyon kedvező, a vasútállomás és a buszmegállók könnyen elérhetők, így Budapest irányába is gyors és kényelmes a közlekedés.
Az utcában a parkolás ingyenes, ami a környéken külön előnyt jelent.
További információért vagy megtekintésért hívjon bizalommal!
Néhány adat a megbízó által közölt információ alapján került feltüntetésre, így a tévedés jogát fenntartjuk!
Egyéb információért hívjon bizalommal.
Amiben segítjük Önöket:
- hitel ügyintézés
- CSOK ügyintézés
- energetikai tanúsítvány
- földhivatali háttér
- földmérés
- értékbecslés
- ingyenes ajánlatküldés országos rendszerből!