Eladó Lakás
Hirdetéskód: 9301881

Duna House Csillaghegy

Felújításhoz személyi kölcsönt keres? Kalkuláljon itt! →
200.00 m2
ALAPTERÜLET
4
SZOBASZÁM
nincs megadva
ÉPÍTÉS
nincs megadva
FŰTÉS
  • CSOK igénybe vehető nem
  • Tetőtér beépíthető nem
  • Építés éve 2006
  • Klíma nem
  • Szigetelt nem
Energetikai besorolás: Nincs meghatározva
A+++
A++
A+
A
B
C
D
E
F
G
H
I

Az MBH Bank személyi kölcsön ajánlata

Fizetett hirdetés
1 millió Ft
6 évre
20 585 Ft/hó
THM: 14.5%
Részletek →
2 millió Ft
6 évre
41 169 Ft/hó
THM: 14.5%
Részletek →
3 millió Ft
6 évre
61 754 Ft/hó
THM: 14.5%
Részletek →

A tájékoztatás nem teljes körű és nem minősül ajánlattételnek.

Az ingatlan leírása

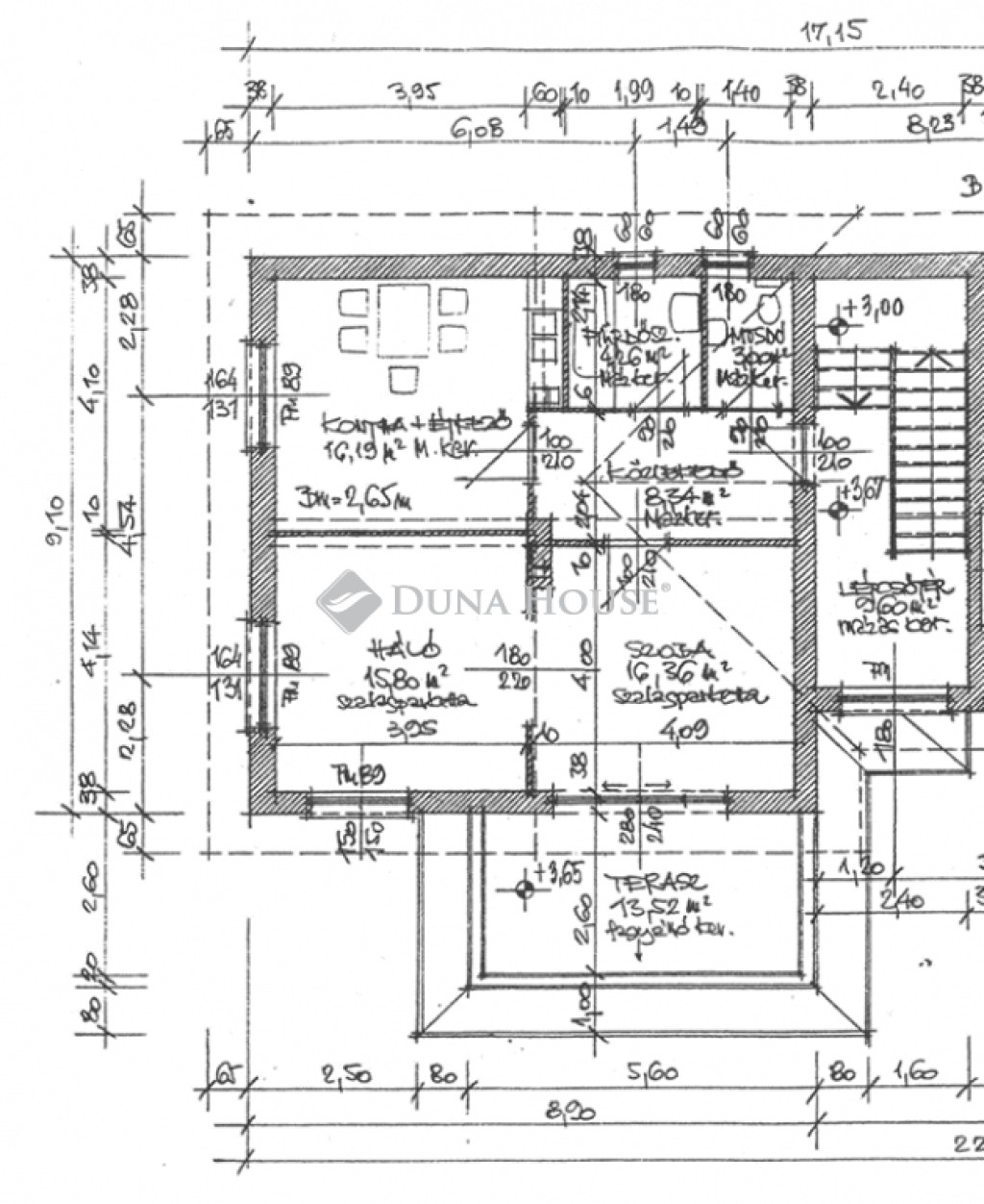
**Eladó egy 200 m²-es, saját kertrésszel, felszíni beállóval, garázzsal, pincével rendelkező, téglaépítésű kétlakásos társasházrész Vácon. **A 2006-ban épült, kétszintes, napfényes lakás 170.000.000 forintért kerül értékesítésre. Az ingatlan kiváló ár-érték arányt képvisel. Ideális választás lehet azok számára, akik egy csendes, kertvárosi környezetben szeretnének élni. Az ingatlan alkalmas 2 generáció összeköltözésére. A két külön bejáratú lakás mégis saját életteret biztosít. A ház tágas, napfényes terekkel rendelkezik, amelyek otthonossá teszik minden pillanatát. A fűtést gázcirkó biztosítja, így a téli hónapokban is melegebb és kedvezőbb a fenntartása. A házhoz egy nagy, fedett terasz is tartozik. A kertre nyíló panoráma különleges hangulatot kölcsönöz az ingatlannak, a béke és nyugalom szigetét kínálva a város szívében. A telek minden közművel rendelkezik. A házhoz garázs is tartozik az autó biztonságos tárolásáért.Az ingatlan padlástérrel is bír, ami adott esetben további beépítési lehetőséget jelent, így bármikor növelheti az élettér méretét. A téglaépítésű szerkezet hosszú távú stabilitást és kiváló hőszigetelést biztosít.Vác városa a Duna partján terül el, kilátással a festői Naszály-hegyre. A város közelében számos kirándulóhely, bicikliút és vízi sportolási lehetőség található, így nem csak a helyiek, hanem a turisták körében is népszerű. Vác tökéletes helyszín azok számára, akik a természet közelségét és a városi élet kényelmeit is fontosnak tartják.A galéria végén látványterv alapján készült fotó található az egyik szobáról.

Irányár: 1Ft

Térkép

A hirdető elérhetősége

Duna House Csillaghegy

Gujdár Zsuzsa
+36 30 425