Eladó Lakás
Hirdetéskód: 9248535
Fővállalkozó Balla és Balla Kft
Felújításhoz személyi kölcsönt keres? Kalkuláljon itt! →110.00 m2
ALAPTERÜLET3
SZOBASZÁMnincs megadva
ÉPÍTÉSEgyéb fűtés
FŰTÉS- CSOK igénybe vehető nem
- Tetőtér beépíthető nem
- Építés éve 2026
- Fűtés Egyéb fűtés
- Klíma nem
- Szigetelt nem
A+++
A++
A+
A
B
C
D
E
F
G
H
I
Az ingatlan leírása
Törökbálinton, panorámás domboldalon, prémium alapanyagokból épülő 2 lakásos ház mindkét lakása eladó!
Várható átadás: 2026. szeptember 1.
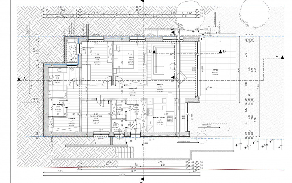
A földszinti lakás: 110 nm alapterületű, 2 szoba, 2 gardrób, fürdő, wc, háztartási helyiség, nappali-konyha-étkező, nagy terasz, közvetlen kertkapcsolattal, az alaprajz szerint. Ára: 155 M Ft.
Az emeleti lakás: 65 nm alapterületű, 2 szoba, gardrób, fürdő, háztartási helyiség, nappali-konyha-étkező, 2 nagy terasszal és hátsó kertkapcsolattal. A kisebb lakás padlástere beépíthető a mérete miatt! Ára: 135 M Ft.
Az ingatlanhoz egy kétállásos támfalgarázs is épül, melynek beállóhelyei opcionálisan megvásárolhatóak bármelyik lakáshoz. A garázs ára: 20 M Ft. (beállónként 10 M Ft)
Az ingatlan kiváló minőségű alapanyagok felhasználásával épül, korszerű technológiai megoldásokkal.
A falazat Porotherm 30 N+F téglából készül, melyet 15 cm vastag homlokzati grafitos hőszigetelés egészít ki a kimagasló hő- és hangszigetelés érdekében.
A fűtés: monoblokkos hőszívattyú 10 kw HAJDU HAPAW10, padló és mennyezet hűtés-fűtéssel.
Az épület 3 rétegű üvegezésű fa nyílászárókkal épül, mely a legmagasabb szintű energiahatékonyságot és zajcsökkentést garantálja. Igény szerint elektromos redőny is rendelhető.
Az Anna-hegy egy igazi csendes, családias városrész. Közel az erdő, a tömegközlekedés megoldott, akár Budapestre is. A közelben óvoda és pár perc alatt elérhető Törökbálint városközpontja.
Várható átadás: 2026. szeptember 1.
A földszinti lakás: 110 nm alapterületű, 2 szoba, 2 gardrób, fürdő, wc, háztartási helyiség, nappali-konyha-étkező, nagy terasz, közvetlen kertkapcsolattal, az alaprajz szerint. Ára: 155 M Ft.
Az emeleti lakás: 65 nm alapterületű, 2 szoba, gardrób, fürdő, háztartási helyiség, nappali-konyha-étkező, 2 nagy terasszal és hátsó kertkapcsolattal. A kisebb lakás padlástere beépíthető a mérete miatt! Ára: 135 M Ft.
Az ingatlanhoz egy kétállásos támfalgarázs is épül, melynek beállóhelyei opcionálisan megvásárolhatóak bármelyik lakáshoz. A garázs ára: 20 M Ft. (beállónként 10 M Ft)
Az ingatlan kiváló minőségű alapanyagok felhasználásával épül, korszerű technológiai megoldásokkal.
A falazat Porotherm 30 N+F téglából készül, melyet 15 cm vastag homlokzati grafitos hőszigetelés egészít ki a kimagasló hő- és hangszigetelés érdekében.
A fűtés: monoblokkos hőszívattyú 10 kw HAJDU HAPAW10, padló és mennyezet hűtés-fűtéssel.
Az épület 3 rétegű üvegezésű fa nyílászárókkal épül, mely a legmagasabb szintű energiahatékonyságot és zajcsökkentést garantálja. Igény szerint elektromos redőny is rendelhető.
Az Anna-hegy egy igazi csendes, családias városrész. Közel az erdő, a tömegközlekedés megoldott, akár Budapestre is. A közelben óvoda és pár perc alatt elérhető Törökbálint városközpontja.