Eladó Lakás
Hirdetéskód: 9312132

Miskolc - OTP Ingatlanpont Iroda

Felújításhoz személyi kölcsönt keres? Kalkuláljon itt! →
FIX 3% Program

Ez a hirdetés megfelelhet a FIX 3%-os programnak.
Tudj meg többet a részletekről itt.

49.00 m2
ALAPTERÜLET
2
SZOBASZÁM
nincs megadva
ÉPÍTÉS
Távfűtés egyedi méréssel
FŰTÉS
  • CSOK igénybe vehető nem
  • Tetőtér beépíthető nem
  • Építés éve 1975
  • Fűtés Távfűtés egyedi méréssel
  • Klíma nem
  • Szigetelt nem
Energetikai besorolás: Nincs meghatározva
A+++
A++
A+
A
B
C
D
E
F
G
H
I

Az MBH Bank személyi kölcsön ajánlata

Fizetett hirdetés
1 millió Ft
6 évre
20 585 Ft/hó
THM: 14.5%
Részletek →
2 millió Ft
6 évre
41 169 Ft/hó
THM: 14.5%
Részletek →
3 millió Ft
6 évre
61 754 Ft/hó
THM: 14.5%
Részletek →

A tájékoztatás nem teljes körű és nem minősül ajánlattételnek.

Az ingatlan leírása

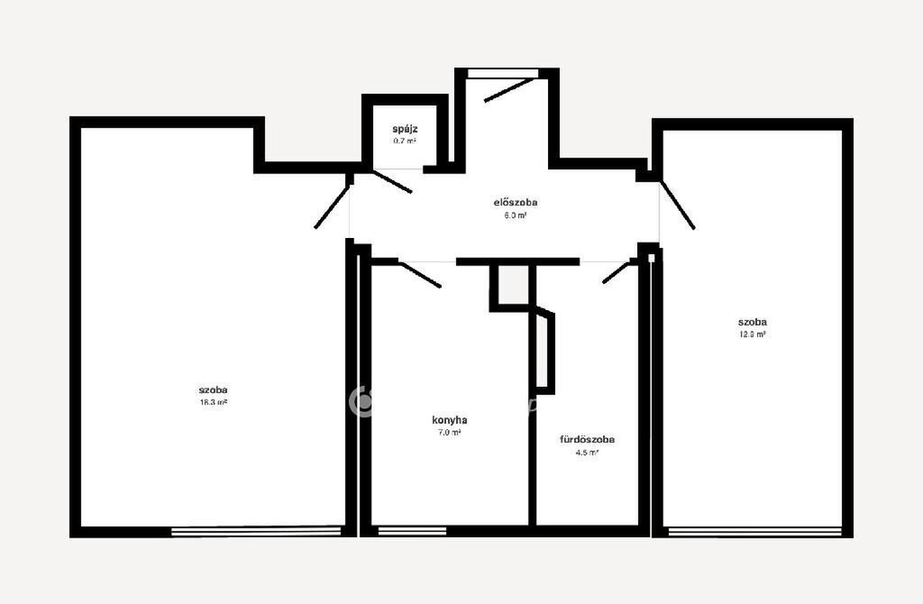
Tiszaújváros egyik legkedveltebb és legnyugodtabb részén a Rózsa utcában az idősek otthona közvetlen szomszédságában eladó egy harmadik emeleti, 49 négyzetméteres két szobás jó állapotú és azonnal költözhető lakás, amely tökéletes választás saját otthonnak vagy befektetésnek egyaránt, az ingatlan egyik legnagyobb előnye a rendkívül praktikus elosztás hiszen a két szoba külön nyílik, biztosítva ezzel a lakók zavartalan magánszféráját, a kényelmet fokozza a modern műanyag nyílászárók megléte és az esztétikus laminált parketta burkolat, a helyiségek tágasak a nagy konyha és a tágas fürdőszoba mellett egy külön spájz is helyet kapott a tárolás megkönnyítésére, a lakás távfűtéses kulturált állapotú és tehermentes így kifizetés után rögtön birtokba vehető, a közvetlen környezet kiváló infrastruktúrával rendelkezik, pár perces sétával elérhető a Spar szupermarket gyógyszertár több orvosi rendelő és iskola is, miközben a parkolás közvetlenül a ház előtt ingyenesen és kényelmesen megoldható. A lakáshoz saját pince is tartozik. Ez a világos és rendezett otthon várja új tulajdonosát a város egyik legzöldebb és legélhetőbb utcájában, ahol minden fontos szolgáltatás karnyújtásnyira van. Jöjjön el garantáltan nem fog csalódni! Érdeklődését és hívását a hét minden napján szívesen fogadom: hétfőtől szombatig 7:00 és 21:00 óra között, vasárnap pedig 8:00 és 20:00 óra között várom megtisztelő megkeresését.

OTP Banki hátterünknek köszönhetően finanszírozási igényekben (pl. Otthon Start Hitelprogram , Babaváró, Falusi CSOK, CSOK Plusz, Lakáshitel, Személyi kölcsön stb.), illetve biztosítások tekintetében is díjmentesen, soron kívüli ügyintézéssel segítem ügyfeleim! Kérem tekintse meg, virtuális sétámat is. Hívása során hivatkozzon az M323773 referenciaszámra!

Térkép

Ingatlan adásvétel ügyvédi díja
150 000 Ft
a hirdetésben szereplő ár alapján
  • A vételár 0,45%-a
  • Szerződéscsomag teljeskörű képviselettel
  • Ingyenes tulajdoni lap ellenőrzés
  • Az ÁFA-t már tartalmazza
Érdekel az ajánlat →
A tájékoztatás nem teljes körű és nem minősül ajánlattételnek. Minimum díj: 150 000 Ft, maximum díj: 600 000 Ft. A díj kizárólag lakóingatlan adásvételére vonatkozik.

A hirdető elérhetősége

Miskolc - OTP Ingatlanpont Iroda

Dandásné Fábián Klaudia
+36 30 340