Eladó Lakás
Hirdetéskód: 9300142
Zalaegerszeg Kossuth Lajos utca 32 - OTP Ingatlanpont Iroda
Felújításhoz személyi kölcsönt keres? Kalkuláljon itt! →90.00 m2
ALAPTERÜLET1
SZOBASZÁMnincs megadva
ÉPÍTÉSnincs megadva
FŰTÉS- CSOK igénybe vehető nem
- Tetőtér beépíthető nem
- Építés éve 2020
- Klíma nem
- Szigetelt nem
A+++
A++
A+
A
B
C
D
E
F
G
H
I
Az ingatlan leírása
Otthon, ahol a családi élet nem szorul keretek közé!
Van az a pont, amikor már nem kompromisszumot keresel, hanem minőséget.
Amikor a tér nem luxus, hanem természetes közeg.
Zalaegerszeg belvárosától mindössze 10 percre található ez a tulajdoni lap szerint lakás megjelölésű, funkcióját tekintve azonban önálló, családi ház.
A 2020-ban épült, kiváló állapotú lakás nemcsak méretében erős, hanem ár/érték arányban is kiemelkedő a környéken. Itt nem egy felújítandó, kompromisszumos ingatlant vásárol, hanem modern gépészettel, korszerű fűtéssel és klimatizált helyiségekkel rendelkező, azonnal költözhető otthont.
Szélső elhelyezkedésének köszönhetően itt valóban több a privát tér, kevesebb a zaj, a szomszéd, nagyobb intimitás, zavartalanabb élettér. A rendezett, kulturált lakópark stabilitást és biztonságérzetet ad.
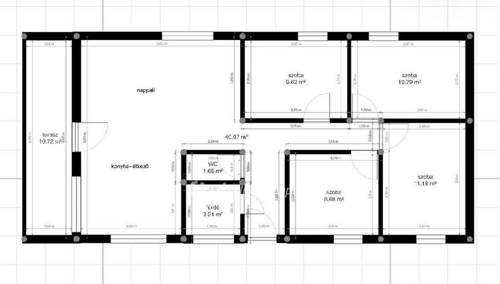
A nappali a családi élet központja lehet, a külön nyíló szobák pedig valódi funkcióval tölthetők meg: gyerekszoba, dolgozó, vendégszoba, gardrób ? nem kell választani, mindennek jut hely. A terasz az élettér természetes meghosszabbítása ? privát reggelik, elegáns nyári vacsorák, csendes esti borozás helyszíne. A kezelhető méretű udvar pont annyi szabadságot ad, amennyi örömöt, a nélkül, hogy hétvégi teherré válna. A parkolás kényelmesen megoldott ? két személygépkocsi számára - egy zárt és egy nyitott beállóval.
A korszerű hőszivattyús rendszer és a klimatizált helyiségek nemcsak komfortot jelentenek, hanem tudatos, hosszú távon is fenntartható működést. Ez ma már nem extra, hanem tudatos döntés.
Zalaegerszeg közelsége miatt elérhető marad minden infrastruktúra, miközben nyugodt, csendes, zöld környezetbe térhetünk haza.
Kinek ideális?
- nagycsaládosoknak, akik nem akarnak kertvárosi kompromisszumot,
- home office-ban dolgozóknak, akiknek fontos a szeparált tér,
- tudatos vásárlóknak, akik értékelik az újépítés közeli állapotot,
- azoknak, akik fontosnak tartják az energiahatékonyságot
Ha olyan otthont keres, ahol a családnak nem kell alkalmazkodni a térhez, mert a tér alkalmazkodik a családhoz ?akkor ezt érdemes személyesen is megnézni. Ha fontos Önnek a modern műszaki tartalom, a csendes környezet és a rendezett lakóközösség, ez az ingatlan kiemelkedő választás.
Van az a pont, amikor már nem kompromisszumot keresel, hanem minőséget.
Amikor a tér nem luxus, hanem természetes közeg.
Zalaegerszeg belvárosától mindössze 10 percre található ez a tulajdoni lap szerint lakás megjelölésű, funkcióját tekintve azonban önálló, családi ház.
A 2020-ban épült, kiváló állapotú lakás nemcsak méretében erős, hanem ár/érték arányban is kiemelkedő a környéken. Itt nem egy felújítandó, kompromisszumos ingatlant vásárol, hanem modern gépészettel, korszerű fűtéssel és klimatizált helyiségekkel rendelkező, azonnal költözhető otthont.
Szélső elhelyezkedésének köszönhetően itt valóban több a privát tér, kevesebb a zaj, a szomszéd, nagyobb intimitás, zavartalanabb élettér. A rendezett, kulturált lakópark stabilitást és biztonságérzetet ad.
A nappali a családi élet központja lehet, a külön nyíló szobák pedig valódi funkcióval tölthetők meg: gyerekszoba, dolgozó, vendégszoba, gardrób ? nem kell választani, mindennek jut hely. A terasz az élettér természetes meghosszabbítása ? privát reggelik, elegáns nyári vacsorák, csendes esti borozás helyszíne. A kezelhető méretű udvar pont annyi szabadságot ad, amennyi örömöt, a nélkül, hogy hétvégi teherré válna. A parkolás kényelmesen megoldott ? két személygépkocsi számára - egy zárt és egy nyitott beállóval.
A korszerű hőszivattyús rendszer és a klimatizált helyiségek nemcsak komfortot jelentenek, hanem tudatos, hosszú távon is fenntartható működést. Ez ma már nem extra, hanem tudatos döntés.
Zalaegerszeg közelsége miatt elérhető marad minden infrastruktúra, miközben nyugodt, csendes, zöld környezetbe térhetünk haza.
Kinek ideális?
- nagycsaládosoknak, akik nem akarnak kertvárosi kompromisszumot,
- home office-ban dolgozóknak, akiknek fontos a szeparált tér,
- tudatos vásárlóknak, akik értékelik az újépítés közeli állapotot,
- azoknak, akik fontosnak tartják az energiahatékonyságot
Ha olyan otthont keres, ahol a családnak nem kell alkalmazkodni a térhez, mert a tér alkalmazkodik a családhoz ?akkor ezt érdemes személyesen is megnézni. Ha fontos Önnek a modern műszaki tartalom, a csendes környezet és a rendezett lakóközösség, ez az ingatlan kiemelkedő választás.