Eladó Lakás
Hirdetéskód: 9329303
Debrecen Kürtös utca 8 - OTP Ingatlanpont Iroda
Felújításhoz személyi kölcsönt keres? Kalkuláljon itt! →
Ez a hirdetés megfelelhet a FIX 3%-os programnak.
Tudj meg többet a részletekről itt.
62.00 m2
ALAPTERÜLET2
SZOBASZÁMnincs megadva
ÉPÍTÉSGáz (cirkó)
FŰTÉS- CSOK igénybe vehető nem
- Tetőtér beépíthető nem
- Építés éve 2026
- Fűtés Gáz (cirkó)
- Klíma nem
- Szigetelt nem
A+++
A++
A+
A
B
C
D
E
F
G
H
I
Az ingatlan leírása
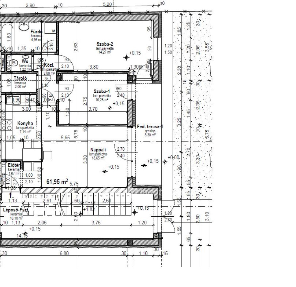
Téglás központjában eladó egy 14 lakásos társasházban új építésű, földszintes 62 m2-es, 2 szobás társasházi lakás.
A lakáshoz saját 20 m2-es kert tartozik, ebből nyílik a lakás bejárata is.
A kiskert remek lehetőséget ad a pihenésre vagy egy kis zöldövezet kialakítására.
Az ingatlan kiváló elhelyezkedésű, a város központjában található, igy kereskedelmi egységek, óvoda, iskola, rendelő mind megtalálhatók a közvetlen közelében.
Új építésű lakás révén, a korszerű építési megoldásoknak köszönhetően alacsony fenntartási költségű, modern otthona lehet új tulajdonosának.
A tervezett műszaki átadás 2027 márciusára várható.
Kiváló választás mindazoknak akik egy Debrecenhez közeli élhető kisvárosban szeretnének teljesen új, modern otthonban élni vagy befektetés céljából is.
Főbb paraméterek:
- 62 m2-es földszinti lakás, saját 20 kerttel
- elosztás: előtér, amerikai konyhás nappali, 2 hálószoba, fürdőszoba elszeparált WC-vel, tároló
- 30 cm tégla falazat + 15 cm hőszigetelés
- hanggátló falak a lakások között
- A+ energetikai besorolás
- kondenzációs gázkazán padló fűtéssel
- törölközőszárító radiátor a fürdőszobában
- 3,5 kW hűtő-fűtő klíma
- 3 rétegű műanyag nyílászárók, redőnnyel ellátva
- burkolatok: laminált parketta és greslap (igény szerint választhatóak)
Az ingatlanhoz energetikai tanúsítvány még nem áll rendelkezésre, felépítést követően A+ besorolás várható.
További információért hívjon bizalommal, akár hétvégén is. Megtekintésre telefonos egyeztetés alapján van lehetőség.
Kedvezményes kamatozású lakásvásárlási és felújítási hitelek, BABAVÁRÓ, CSOK, 3%-OS KAMATOZÁSÚ HITEL az OTP hátterével irodánkban.
A lakáshoz saját 20 m2-es kert tartozik, ebből nyílik a lakás bejárata is.
A kiskert remek lehetőséget ad a pihenésre vagy egy kis zöldövezet kialakítására.
Az ingatlan kiváló elhelyezkedésű, a város központjában található, igy kereskedelmi egységek, óvoda, iskola, rendelő mind megtalálhatók a közvetlen közelében.
Új építésű lakás révén, a korszerű építési megoldásoknak köszönhetően alacsony fenntartási költségű, modern otthona lehet új tulajdonosának.
A tervezett műszaki átadás 2027 márciusára várható.
Kiváló választás mindazoknak akik egy Debrecenhez közeli élhető kisvárosban szeretnének teljesen új, modern otthonban élni vagy befektetés céljából is.
Főbb paraméterek:
- 62 m2-es földszinti lakás, saját 20 kerttel
- elosztás: előtér, amerikai konyhás nappali, 2 hálószoba, fürdőszoba elszeparált WC-vel, tároló
- 30 cm tégla falazat + 15 cm hőszigetelés
- hanggátló falak a lakások között
- A+ energetikai besorolás
- kondenzációs gázkazán padló fűtéssel
- törölközőszárító radiátor a fürdőszobában
- 3,5 kW hűtő-fűtő klíma
- 3 rétegű műanyag nyílászárók, redőnnyel ellátva
- burkolatok: laminált parketta és greslap (igény szerint választhatóak)
Az ingatlanhoz energetikai tanúsítvány még nem áll rendelkezésre, felépítést követően A+ besorolás várható.
További információért hívjon bizalommal, akár hétvégén is. Megtekintésre telefonos egyeztetés alapján van lehetőség.
Kedvezményes kamatozású lakásvásárlási és felújítási hitelek, BABAVÁRÓ, CSOK, 3%-OS KAMATOZÁSÚ HITEL az OTP hátterével irodánkban.