Eladó Lakás
Hirdetéskód: 9285801

Komplex Ingatlan

Felújításhoz személyi kölcsönt keres? Kalkuláljon itt! →
FIX 3% Program

Ez a hirdetés megfelelhet a FIX 3%-os programnak.
Tudj meg többet a részletekről itt.

77.00 m2
ALAPTERÜLET
4
SZOBASZÁM
nincs megadva
ÉPÍTÉS
Távfűtés
FŰTÉS
  • CSOK igénybe vehető nem
  • Belső szintek 4
  • Tetőtér beépíthető nem
  • Építés éve 1960
  • Fűtés Távfűtés
  • Klíma nem
  • Szigetelt nem
Energetikai besorolás: Nincs meghatározva
A+++
A++
A+
A
B
C
D
E
F
G
H
I

Az MBH Bank személyi kölcsön ajánlata

Fizetett hirdetés
1 millió Ft
6 évre
20 585 Ft/hó
THM: 14.5%
Részletek →
2 millió Ft
6 évre
41 169 Ft/hó
THM: 14.5%
Részletek →
3 millió Ft
6 évre
61 754 Ft/hó
THM: 14.5%
Részletek →

A tájékoztatás nem teljes körű és nem minősül ajánlattételnek.

Az ingatlan leírása

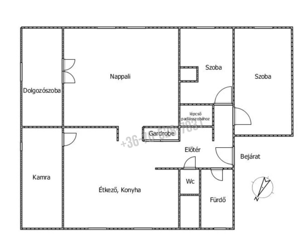
Eladó Tatabánya Újvárosban egy nagyon tágas, világos, tetőtéri, 77 m2-es otthon a 4. emeleten.
A lakás nagyon különleges elrendezésű, tágas nappalival, és élhető szép konyha- étkezővel rendelkezik. Az ingatlan jó minőségű fa, és modern műanyag ablakokkal is felszerelt.
Az otthon összeköttetésben van egy padlásszobával is amihez egyedülálló haszonélvezeti joggal rendelkezik.
Összessen így 4 szoba+2 fél szoba is rendelkezésre áll az új tulajdonos számára. Minden helyiségben kíváló minőségű burkolatok lettek felhelyezve.
Az ingatlan közelében minden megtalálható, ami a kényelmes mindennapi élethez szükséges.
Nézzük meg együtt ezt a különleges lakást, időpont egyeztetés végett keressen akár hétvégén, vagy az esti órákban is! Bankfüggetlen pénzügyi szakembereinkkel intézzük az esetleges hiteligényét!

Térkép

Ingatlan adásvétel ügyvédi díja
324 000 Ft
a hirdetésben szereplő ár alapján
  • A vételár 0,45%-a
  • Szerződéscsomag teljeskörű képviselettel
  • Ingyenes tulajdoni lap ellenőrzés
  • Az ÁFA-t már tartalmazza
Érdekel az ajánlat →
A tájékoztatás nem teljes körű és nem minősül ajánlattételnek. Minimum díj: 150 000 Ft, maximum díj: 600 000 Ft. A díj kizárólag lakóingatlan adásvételére vonatkozik.

A hirdető elérhetősége

Komplex Ingatlan

Papp László
+36 70 528