Eladó Lakás
Hirdetéskód: 9319496
Komplex Ingatlan
Felújításhoz személyi kölcsönt keres? Kalkuláljon itt! →
Ez a hirdetés megfelelhet a FIX 3%-os programnak.
Tudj meg többet a részletekről itt.
58.00 m2
ALAPTERÜLET3
SZOBASZÁMnincs megadva
ÉPÍTÉSGeotermikus
FŰTÉS- CSOK igénybe vehető nem
- Belső szintek 2
- Tetőtér beépíthető nem
- Építés éve 2026
- Fűtés Geotermikus
- Klíma nem
- Szigetelt nem
A+++
A++
A+
A
B
C
D
E
F
G
H
I
Az ingatlan leírása
Már csak 3 ingatlan elérhető (az egyik földszinti elkelt ) !
Tatán a Császár-kertben frissen induló projektben, kínálunk eladásra földszinti-kertkapcsolatos, illetve 1 emeleti lakásokat.
Tata városa régi hagyományokkal bír, nyugodtan nevezhetjük Komárom-Esztergom Vármegye kis ékszerdobozának is! A Tatai-Öreg-tó tőszomszédságában a Remeteség városrészében találjuk a Császár-kert lakóparkot, amely a város egyik csendes, kertvárosias jellegű, külső városrésze, az M1-es autópálya lehajtójához közel.
A lakópark az elmúlt 7-8 évben folyamatosan bontogatta szárnyait, mára nincs üres, eladó telek már. Csendes, nyugodt, barátias lakóközösség jellemzi. A természetközeliség szinte tapintható, sorompóval védett.
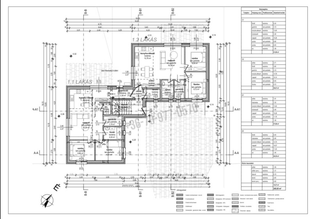
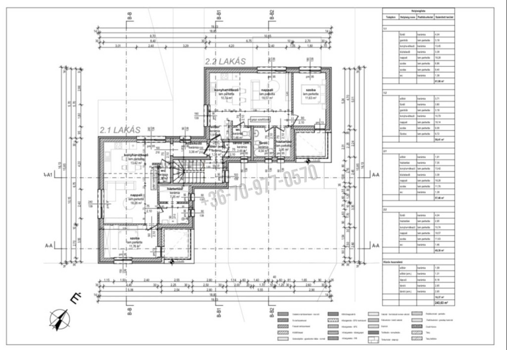
Ahogy a fotókból is kitűnik 2db földszinti kertkapcsolatos és 2 db emeleti lakás kerül kialakításra. Ez a hirdetés a földszinti, kertkapcsolatos, 1/2-es lakás elemeit taglalja, de természetesen a többi, még elérhető ingatlanra is vonatkozik!
1/1-es lakás, földszint:
61,98 m2, 200 m2 kert 79,99 M Ft.- /ELKELT/
1/2-es lakás, földszint:
58,41 m2, 200 m2 kert 74,99 M Ft.- /ELÉRHETŐ/
2/1-es lakás, emelet:
57,48 m2, erkélyes 73,99 M Ft.- /ELÉRHETŐ/
2/2-es lakás: emelet:
49,39 m2, erkélyes 63.99 M Ft.- /ELÉRHETŐ/
Modern nyílászárók, 3 rétegű üvegezéssel, hőszivattyús fűtésrendszer, energiatakarékos padló és mennyezet fűtéssel és hűtéssel, ami egyenletes hőmérsékletet biztosít az egész lakásban. Választható prémium burkolatok kerámia a vizes helyiségekben és laminált parketta a hálószobákban. Az ingatlanokhoz autóbeálló is tartozik.
Várható beköltözés 2027 márciusában
A beruházó-kivitelező cég leinformálható, számos befejezett jól működő projekt fűződik a nevéhez!
További részletes információt, a műszaki leírást, a fizetési ütemezést, egy személyes találkozó keretében, ( akár a cég képviselőjével együtt is ) irodánkban vagy a helyszínen megbeszéljük.
Esetleges hiteligényét, gyorsan, pontosan intézzük! Az Otthon Start hitel ügyintézése is igénybe vehető!
Köszönöm, hogy megtekintette a hirdetést!
S.L.
Tatán a Császár-kertben frissen induló projektben, kínálunk eladásra földszinti-kertkapcsolatos, illetve 1 emeleti lakásokat.
Tata városa régi hagyományokkal bír, nyugodtan nevezhetjük Komárom-Esztergom Vármegye kis ékszerdobozának is! A Tatai-Öreg-tó tőszomszédságában a Remeteség városrészében találjuk a Császár-kert lakóparkot, amely a város egyik csendes, kertvárosias jellegű, külső városrésze, az M1-es autópálya lehajtójához közel.
A lakópark az elmúlt 7-8 évben folyamatosan bontogatta szárnyait, mára nincs üres, eladó telek már. Csendes, nyugodt, barátias lakóközösség jellemzi. A természetközeliség szinte tapintható, sorompóval védett.
Ahogy a fotókból is kitűnik 2db földszinti kertkapcsolatos és 2 db emeleti lakás kerül kialakításra. Ez a hirdetés a földszinti, kertkapcsolatos, 1/2-es lakás elemeit taglalja, de természetesen a többi, még elérhető ingatlanra is vonatkozik!
1/1-es lakás, földszint:
61,98 m2, 200 m2 kert 79,99 M Ft.- /ELKELT/
1/2-es lakás, földszint:
58,41 m2, 200 m2 kert 74,99 M Ft.- /ELÉRHETŐ/
2/1-es lakás, emelet:
57,48 m2, erkélyes 73,99 M Ft.- /ELÉRHETŐ/
2/2-es lakás: emelet:
49,39 m2, erkélyes 63.99 M Ft.- /ELÉRHETŐ/
Modern nyílászárók, 3 rétegű üvegezéssel, hőszivattyús fűtésrendszer, energiatakarékos padló és mennyezet fűtéssel és hűtéssel, ami egyenletes hőmérsékletet biztosít az egész lakásban. Választható prémium burkolatok kerámia a vizes helyiségekben és laminált parketta a hálószobákban. Az ingatlanokhoz autóbeálló is tartozik.
Várható beköltözés 2027 márciusában
A beruházó-kivitelező cég leinformálható, számos befejezett jól működő projekt fűződik a nevéhez!
További részletes információt, a műszaki leírást, a fizetési ütemezést, egy személyes találkozó keretében, ( akár a cég képviselőjével együtt is ) irodánkban vagy a helyszínen megbeszéljük.
Esetleges hiteligényét, gyorsan, pontosan intézzük! Az Otthon Start hitel ügyintézése is igénybe vehető!
Köszönöm, hogy megtekintette a hirdetést!
S.L.