Eladó Lakás
Hirdetéskód: 9271849

5100 Jászberény Szentháromság tér 2. - OTP Ingatlanpont Iroda

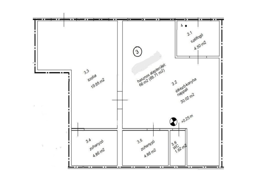
66.00 m2
ALAPTERÜLET
2
SZOBASZÁM
nincs megadva
ÉPÍTÉS
nincs megadva
FŰTÉS
  • CSOK igénybe vehető nem
  • Tetőtér beépíthető nem
  • Építés éve 2016
  • Klíma nem
  • Szigetelt nem
Energetikai besorolás: Nincs meghatározva
A+++
A++
A+
A
B
C
D
E
F
G
H
I

Az ingatlan leírása

Eladó Pest vármegyében Tápiószelén a vasútállomás közelében egy 66 nm-e földszinti 2szobás felújított lakást. Fűtése házközponti gázcírkó padlófűtés, nyáron egy nagyteljesítményű inverteres klíma teszi hűvössé az ingatlant. Amerikai konyha+nappalis lakásban plusz 1 szoba található. A villany és a víz fogyasztás egyedi mérőórás a fűtés hőmennyiségmérős. A település elhelyezkedése ideális a keleti pályaudvar vonalán gyors közlekedés biztosított a főváros vagy Szolnok irányában. A közponban minden infrastruktúra megtalálható oktatás, egészségügy, diszkont áruházak különböző üzletek . Az ingatlan elsősorban kp-ra eladó, ügyvédi háttérrel rendelkezem! Jöjjön nézzük meg együtt!

Térkép

A hirdető elérhetősége

5100 Jászberény Szentháromság tér 2. - OTP Ingatlanpont Iroda

Kis Katalin
+36 20 332