Eladó Lakás
Hirdetéskód: 9312783

GDN Ingatlanhálózat - Home&Feeling

Felújításhoz személyi kölcsönt keres? Kalkuláljon itt! →
FIX 3% Program

Ez a hirdetés megfelelhet a FIX 3%-os programnak.
Tudj meg többet a részletekről itt.

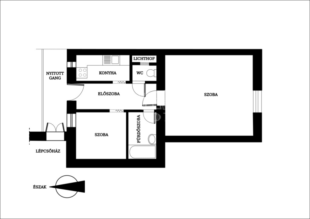
42.00 m2
ALAPTERÜLET
2
SZOBASZÁM
nincs megadva
ÉPÍTÉS
Gáz (konvektor)
FŰTÉS
  • CSOK igénybe vehető nem
  • Tetőtér beépíthető nem
  • Fűtés Gáz (konvektor)
  • Klíma nem
  • Szigetelt nem
Energetikai besorolás: Nincs meghatározva
A+++
A++
A+
A
B
C
D
E
F
G
H
I

Az MBH Bank személyi kölcsön ajánlata

Fizetett hirdetés
1 millió Ft
6 évre
20 585 Ft/hó
THM: 14.5%
Részletek →
2 millió Ft
6 évre
41 169 Ft/hó
THM: 14.5%
Részletek →
3 millió Ft
6 évre
61 754 Ft/hó
THM: 14.5%
Részletek →

A tájékoztatás nem teljes körű és nem minősül ajánlattételnek.

Az ingatlan leírása

Szombathelyen a Szent László király utcában 42 m2-es magasföldszinti lakás eladó. Az ingatlant 2016-ban felújították. A külső nyílászárók fokozottan hang-és hőszigeteltek, redőnyökkel felszereltek. A fa kivitelű ablakok és a bejárati ajtó cseresznye színű pácot kapott. A lakás fűtéséről gázkonvektorok gondoskodnak. A melegvizet villanybojler szolgáltatja. A felújítás során a villanyhálózatot 32 A -re bővítették. Fürdőszoba teljes felújításon esett át. Nappalijában jó állapotú eredeti fa parketta található. Az előszoba, hálószoba új laminált padlóval burkolt.
A lakás nyitott gangról közelíthető meg. A társasházi ingatlan közös kertje körbekerített. Az ingatlanhoz saját nagy pincetároló tartozik. Igény szerint teljes bútorzattal kerül az új lakó tulajdonába. Lokáció tekintetében remek választás. A közelben minden megtalálható ami a kényelmes lakhatást szolgálja. Előnye, hogy szinte azonnal költözhető. Befektetésnek is kiváló, két felsőoktatási intézmény található a szomszédságában. Az ELTE Savaria Campus és a Soproni Egyetem Savaria Egyetemi központja . Az intézményeknek köszönhetően folyamatos bérbeadási lehetőséget biztosít. ...TOVÁBBI, TÖBBEZRES INGATLAN KÍNÁLAT: - GDN azonosító: 394181

Térkép

Ingatlan adásvétel ügyvédi díja
161 550 Ft
a hirdetésben szereplő ár alapján
  • A vételár 0,45%-a
  • Szerződéscsomag teljeskörű képviselettel
  • Ingyenes tulajdoni lap ellenőrzés
  • Az ÁFA-t már tartalmazza
Érdekel az ajánlat →
A tájékoztatás nem teljes körű és nem minősül ajánlattételnek. Minimum díj: 150 000 Ft, maximum díj: 600 000 Ft. A díj kizárólag lakóingatlan adásvételére vonatkozik.

A hirdető elérhetősége

GDN Ingatlanhálózat - Home&Feeling

Berkéné Szűcs Judit
+36 70 575