Eladó Lakás
Hirdetéskód: 9214898

Született Fészekrakó Ingatlaniroda

FIX 3% Program

Ez a hirdetés megfelelhet a FIX 3%-os programnak.
Tudj meg többet a részletekről itt.

138.00 m2
ALAPTERÜLET
4
SZOBASZÁM
Tégla
ÉPÍTÉS
Gáz (cirkó)
FŰTÉS
  • CSOK igénybe vehető igen
  • Belső szintek 3
  • Kilátás Udvari
  • Parkolási lehetőség Udvari beálló
  • Fűtés Gáz (cirkó)
  • Építőanyag Tégla
  • Erkély, terasz Terasz 10.00m2
  • Kertkapcsolat igen 120.00m2
  • Klíma igen
  • Szigetelt igen
Energetikai besorolás: Nincs meghatározva
A+++
A++
A+
A
B
C
D
E
F
G
H
I

Az ingatlan leírása

Lakás, ahol a részletek számítanak. Design és kényelem tökéletes harmóniája.


Trendin berendezett, modern sorház, ahol a stílusos dekoráció és a praktikus kialakítás találkozik.


Kedvelt városrészen Szombathelyen a Stromfeld lakótelepen keresi igényes gazdáját ez a 138m2-es felújított ingatlan. A bejárat egy hangulatos előkert felől, amely a „Született feleségek” híres Lilaakác közét idézi – csendes, barátságos környezet, ahol jó élni. A minőségi burkolatok – parketta és járólap és a lépcső – modern, mégis időtálló megjelenést biztosítanak. A konyha szintén felújított, korszerű gépekkel. A hőszigetelt nyílászárók redőnnyel és árnyékolóval felszereltek, és a három db klíma mindig kellemes hőfokot biztosít.




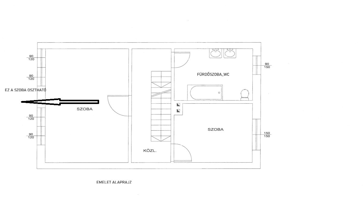
  • Földszint: tágas nappali, konyha-étkező, külön wc, télikert,




  • Emelet: két nagy, (osztható) világos szoba és egy fürdőszoba káddal, zuhanyzóval, wc-vel




  • Tetőtér: hatalmas szoba gardróbbal, háztartási helyiség, zuhanyzó + wc




Fűtéséről 3 éve cserélt, korszerű gázkazán gondoskodik radiátoros hőleadással,ami energiatakarékos és megbízható. Kényelmes otthon, kiváló lokációval, minden karnyújtásnyira.. Az ingatlanhoz tartozik egy fedett gépkocsibeálló, valamint egy bájos, intim terasz, amely tökéletes helyszín a kikapcsolódáshoz. Ez az a ház amibe könnyű beleszeretni. Nézze meg és győződjön meg róla személyesen!

Térkép

A hirdető elérhetősége

Mészáros Dóra e.v.

Mészáros Dóra
+36 30 929