Eladó Lakás
Hirdetéskód: 9196533
GDN Ingatlanhálózat - Home&Feeling
Ez a hirdetés megfelelhet a FIX 3%-os programnak.
Tudj meg többet a részletekről itt.
52.00 m2
ALAPTERÜLET3
SZOBASZÁMnincs megadva
ÉPÍTÉSHázközponti fűtés egyedi méréssel
FŰTÉS- CSOK igénybe vehető nem
- Tetőtér beépíthető nem
- Fűtés Házközponti fűtés egyedi méréssel
- Klíma nem
- Szigetelt nem
A+++
A++
A+
A
B
C
D
E
F
G
H
I
Az ingatlan leírása
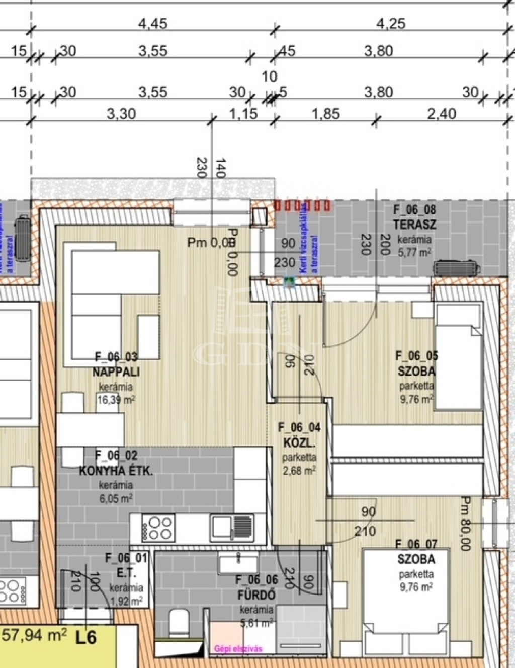
Szombathelyen, jó infrastruktúrával rendelkező Joskar Ola városrészen, modern, 58 lakásos tégla építésű társasházban, magas műszaki tartalommal épülő lakásokat kínálunlk eladásra. Az ingatlanok 36-66 m2 nagyságúak, nappali+1, illetve nappali+2 szobásak, erkélyekkel, teraszokkal. Központi távhős fűtés tervezett, a lakásokban padlófűtéssel egyedi hőmennyiség szabályozással és mérővel.
A használati melegvizet is a távhő központból biztosítják, a fogyasztás
lakásonként egyedi mérővel történik.
Az ingatlanban 1 db 2,5 kw-os hőszivattyús Green vagy azzal egyenértékű típusú klíma kerül felszerelésre. Nyílászárói fokozottan hang-és hőszigeteltek, redőny fogadására alkalmas szemöldökkel. Az épület homlokzatára 15 cm vastag EPS rendszerű szigetelés kerül. A lakásokhoz felszíni parkoló, tároló és garázs is vásárolható. Parkoló 1.8 millió forint, tároló nagyságtól függően 2.2-4.5 millió forint, garázs 10.9 millió forint. Várható átadás 2026 ősze. Ha teljeskörű tájékoztatást szeretne, kérem keressen . Az irodánkban személyes találkozóra van lehetőség. Ha hitere van szüksége, abban is segítünk.
A hirdetésben szereplő lakás : Fsz.6. 52.800.000 Ft. Az ÁFA visszaigényelhető.
Az ingatlan alapterülete 52.17 m2, 6 m2 erkéllyel. ...TOVÁBBI, TÖBBEZRES INGATLAN KÍNÁLAT: - GDN azonosító: 388916
A használati melegvizet is a távhő központból biztosítják, a fogyasztás
lakásonként egyedi mérővel történik.
Az ingatlanban 1 db 2,5 kw-os hőszivattyús Green vagy azzal egyenértékű típusú klíma kerül felszerelésre. Nyílászárói fokozottan hang-és hőszigeteltek, redőny fogadására alkalmas szemöldökkel. Az épület homlokzatára 15 cm vastag EPS rendszerű szigetelés kerül. A lakásokhoz felszíni parkoló, tároló és garázs is vásárolható. Parkoló 1.8 millió forint, tároló nagyságtól függően 2.2-4.5 millió forint, garázs 10.9 millió forint. Várható átadás 2026 ősze. Ha teljeskörű tájékoztatást szeretne, kérem keressen . Az irodánkban személyes találkozóra van lehetőség. Ha hitere van szüksége, abban is segítünk.
A hirdetésben szereplő lakás : Fsz.6. 52.800.000 Ft. Az ÁFA visszaigényelhető.
Az ingatlan alapterülete 52.17 m2, 6 m2 erkéllyel. ...TOVÁBBI, TÖBBEZRES INGATLAN KÍNÁLAT: - GDN azonosító: 388916