Eladó Lakás
Hirdetéskód: 9286655

GDN Ingatlanhálózat - Home&Feeling

Felújításhoz személyi kölcsönt keres? Kalkuláljon itt! →
FIX 3% Program

Ez a hirdetés megfelelhet a FIX 3%-os programnak.
Tudj meg többet a részletekről itt.

101.00 m2
ALAPTERÜLET
3
SZOBASZÁM
nincs megadva
ÉPÍTÉS
Gáz (cirkó)
FŰTÉS
  • CSOK igénybe vehető nem
  • Tetőtér beépíthető nem
  • Fűtés Gáz (cirkó)
  • Klíma nem
  • Szigetelt nem
Energetikai besorolás: Nincs meghatározva
A+++
A++
A+
A
B
C
D
E
F
G
H
I

Az MBH Bank személyi kölcsön ajánlata

Fizetett hirdetés
1 millió Ft
6 évre
20 585 Ft/hó
THM: 14.5%
Részletek →
2 millió Ft
6 évre
41 169 Ft/hó
THM: 14.5%
Részletek →
3 millió Ft
6 évre
61 754 Ft/hó
THM: 14.5%
Részletek →

A tájékoztatás nem teljes körű és nem minősül ajánlattételnek.

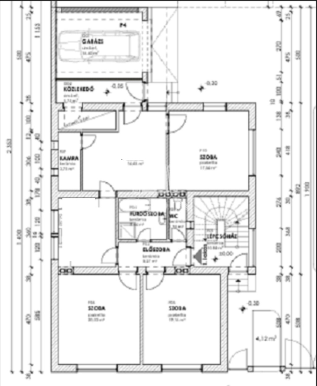
Az ingatlan leírása

Szombathelyen, csendes átmenő forgalomtól mentes utcában felújított 101 m2-es lakás, garázzsal eladó. Az igatlan négy lakásos társasház földszintjén helyezkedik el. A lakásba rendezett, tiszta, zárható lépcsőházon keresztül juthatunk . Rendkívül tágas terek jellemzik. Három nagyméretű szoba, étkező, konyha, kamra, előszoba, fürdő, wc helyiségek alkotják. Az ingatlant 2023-ban műszakilag és esztétikailag is felújították. Nyílászárói fokozottan hang-és hőszigeteltek, redőnyökkel felszereltek. Villany, víz, lefolyó és fűtésrendszer is megújult. Fűtéséről gáz kondenzációs kazán gondoskodik, radiátoros hőleadással. Beltéri ajtók, hideg-meleg burkolatok cseréje is megtörtént. A garázs külön helyrajzi számon szerepel. A garázs ára 4 000 000 Ft. Közös tároló a pincében található(14 m2 ) Az udvart is közösen használják a tulajdonosok. Az ingatlan nagyon jó választás nagy családok részére. Lokáció szempontjából is remek választás. A közelben minden megtalálható ami a kényelmes lakhatást szolgálja. Iskola, óvoda, posta, bevásárló központok, orvosi rendelő, gyógyszertár , mind karnyújtásnyi van. A körgyűrű közelsége is komoly előny. A lakásról készültek fotók a beköltözés előtt is, így átláthatóbb a terek nagysága. Az ingatlan hitelképes , ha szeretné igénybe venni, abban is tudunk segíteni. Ha bővebb tájékoztatást szeretne, kérem keressen , tekintsük meg együtt. ...TOVÁBBI, TÖBBEZRES INGATLAN KÍNÁLAT: - GDN azonosító: 393082

Térkép

Ingatlan adásvétel ügyvédi díja
323 550 Ft
a hirdetésben szereplő ár alapján
  • A vételár 0,45%-a
  • Szerződéscsomag teljeskörű képviselettel
  • Ingyenes tulajdoni lap ellenőrzés
  • Az ÁFA-t már tartalmazza
Érdekel az ajánlat →
A tájékoztatás nem teljes körű és nem minősül ajánlattételnek. Minimum díj: 150 000 Ft, maximum díj: 600 000 Ft. A díj kizárólag lakóingatlan adásvételére vonatkozik.

A hirdető elérhetősége

GDN Ingatlanhálózat - Home&Feeling

Berkéné Szűcs Judit
+36 70 575