Eladó Lakás
Hirdetéskód: 9229102
Szolnok Szapáry utca 23 - OTP Ingatlanpont Iroda
Felújításhoz személyi kölcsönt keres? Kalkuláljon itt! →
Ez a hirdetés megfelelhet a FIX 3%-os programnak.
Tudj meg többet a részletekről itt.
76.00 m2
ALAPTERÜLET2
SZOBASZÁMnincs megadva
ÉPÍTÉSGáz (cirkó)
FŰTÉS- CSOK igénybe vehető nem
- Tetőtér beépíthető nem
- Építés éve 2023
- Fűtés Gáz (cirkó)
- Klíma nem
- Szigetelt nem
A+++
A++
A+
A
B
C
D
E
F
G
H
I
Az ingatlan leírása
Jász-Nagykun Szolnok vármegye, Szolnok településen eladásra kínálunk egy 2023 szeptember óta használatbavételi engedéllyel rendelkező, tehermentes, 1/1 tulajdonú, 3. emeleti lakást egy liftes társasházban. A társasház igényes, összetartó lakóközösséggel rendelkezik.
Nívósan kialakított, prémium lakás, ahonnan pár perc sétával elérhető a belváros központja.
A társasház előtt buszmegálló is található, így tömegközlekedéssel is jól megközelíthető.
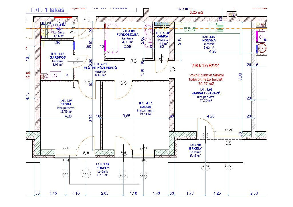
A lakás 70,27 m2, két, egyenként 6.13 illetve 5.45 nm-es erkéllyel rendelkezik, tartozik hozzá egy előtér, amerikai konyhás nappali és étkező, két szoba, gardrób, ízlésesen kialakított fürdőkádas fürdőszoba, önálló WC.
A lakás dél-keleti fekvésű magas benapozott óraszámmal rendelkezik. Minőségi kivitelezésű, a tervezéskor nagyon figyeltek a tökéletes térkihasználásra.
A homlokzati felületeken korszerű, 7 légkamrás műanyag profilú, háromrétegű, hő és hanggátló üvegezésű nyílászárók kerültek beépítésre.
A bejárati ajtó a biztosító társaságok által minősített, több ponton záródó, hanggátló Rolla biztonsági ajtó, a kialakításnak megfelelően fúrásbiztos hengerzár betéttel. A belső ajtók Borovi gyártmányú, HDF hordozó felületre ragasztott, dekor felületű, nyomtatott famintázatúak.
Egyedi fűtési és melegvíz előállítási rendszert alakítottunk ki. Bosch kondenzációs kombi gázkazán biztosítja az ingatlan számára a maximális komfortot, kényelmet és hatékonyságot.
A lakás nyári hűtéséhez klíma előszerelelés került kialakításra.
A korszerű fűtési rendszer, a jó hőszigetelő képességű falak és nyílászárók a tapasztalatok alapján rendkívül alacsony fenntartási költséget eredményeztek.
A lakás azonnal költözhető!
Konyhabútor gépekkel igény esetén 4.500.000.- Ft
A Társasház földszintjén önálló helyrajzi számmal rendelkező garázsok is vásárolhatók. Amennyiben felkeltette érdeklődését ez az ingatlan, ismerje meg egy személyes bejárás során
Ha felkeltettem érdeklődését várom megtisztelő hívását a hét minden napján!
Nívósan kialakított, prémium lakás, ahonnan pár perc sétával elérhető a belváros központja.
A társasház előtt buszmegálló is található, így tömegközlekedéssel is jól megközelíthető.
A lakás 70,27 m2, két, egyenként 6.13 illetve 5.45 nm-es erkéllyel rendelkezik, tartozik hozzá egy előtér, amerikai konyhás nappali és étkező, két szoba, gardrób, ízlésesen kialakított fürdőkádas fürdőszoba, önálló WC.
A lakás dél-keleti fekvésű magas benapozott óraszámmal rendelkezik. Minőségi kivitelezésű, a tervezéskor nagyon figyeltek a tökéletes térkihasználásra.
A homlokzati felületeken korszerű, 7 légkamrás műanyag profilú, háromrétegű, hő és hanggátló üvegezésű nyílászárók kerültek beépítésre.
A bejárati ajtó a biztosító társaságok által minősített, több ponton záródó, hanggátló Rolla biztonsági ajtó, a kialakításnak megfelelően fúrásbiztos hengerzár betéttel. A belső ajtók Borovi gyártmányú, HDF hordozó felületre ragasztott, dekor felületű, nyomtatott famintázatúak.
Egyedi fűtési és melegvíz előállítási rendszert alakítottunk ki. Bosch kondenzációs kombi gázkazán biztosítja az ingatlan számára a maximális komfortot, kényelmet és hatékonyságot.
A lakás nyári hűtéséhez klíma előszerelelés került kialakításra.
A korszerű fűtési rendszer, a jó hőszigetelő képességű falak és nyílászárók a tapasztalatok alapján rendkívül alacsony fenntartási költséget eredményeztek.
A lakás azonnal költözhető!
Konyhabútor gépekkel igény esetén 4.500.000.- Ft
A Társasház földszintjén önálló helyrajzi számmal rendelkező garázsok is vásárolhatók. Amennyiben felkeltette érdeklődését ez az ingatlan, ismerje meg egy személyes bejárás során
Ha felkeltettem érdeklődését várom megtisztelő hívását a hét minden napján!