Eladó Lakás
Hirdetéskód: 9256929

Dunaharaszti, Dózsa György út 45. (OTPIP)

Felújításhoz személyi kölcsönt keres? Kalkuláljon itt! →
FIX 3% Program

Ez a hirdetés megfelelhet a FIX 3%-os programnak.
Tudj meg többet a részletekről itt.

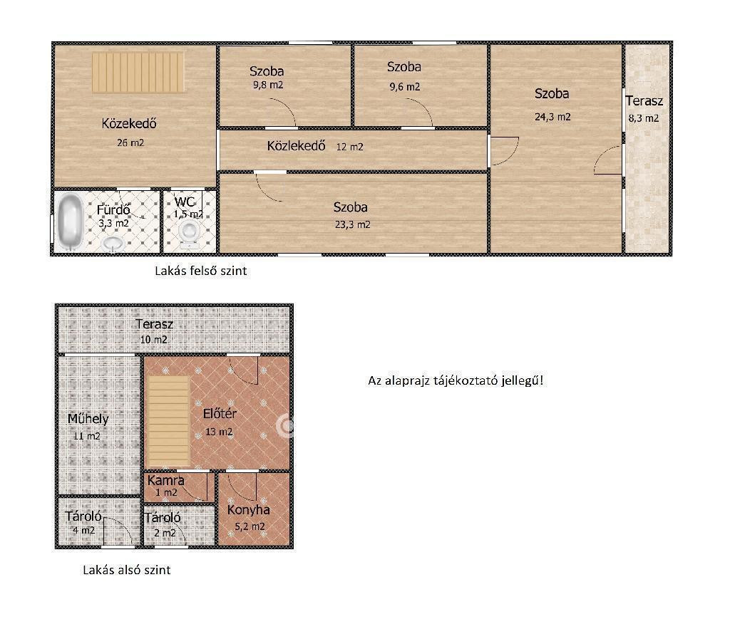
120.00 m2
ALAPTERÜLET
4
SZOBASZÁM
nincs megadva
ÉPÍTÉS
nincs megadva
FŰTÉS
  • CSOK igénybe vehető nem
  • Tetőtér beépíthető nem
  • Építés éve 2000
  • Klíma nem
  • Szigetelt nem
Energetikai besorolás: Nincs meghatározva
A+++
A++
A+
A
B
C
D
E
F
G
H
I

Az MBH Bank személyi kölcsön ajánlata

Fizetett hirdetés
1 millió Ft
6 évre
20 585 Ft/hó
THM: 14.5%
Részletek →
2 millió Ft
6 évre
41 169 Ft/hó
THM: 14.5%
Részletek →
3 millió Ft
6 évre
61 754 Ft/hó
THM: 14.5%
Részletek →

A tájékoztatás nem teljes körű és nem minősül ajánlattételnek.

Az ingatlan leírása

Különálló lakás saját kerttel Szigethalom központi részén felújított, világos otthon HÉV közelében Szigethalom egyik jól megközelíthető, központi részén eladó egy tágas, világos, külön bejáratú lakás egy régen családi házként épült ingatlan emeleti részén. A teljes ingatlan eredetileg egy nagy ház volt, ma társasházi szerződéssel megosztva, jogilag rendezett formában két külön lakásként működik az egyik a földszinten, a másik (az eladásra kínált) az emeleten, melyet külön külső lépcsőn keresztül lehet megközelíteni. A bruttó 165 nm-es alapterületből 120 nm lett igényesen felújítva három évvel ezelőtt, ami a lakótér. A fennmaradó rész a földszinten található, jelenleg mosókonyhaként és műhelyként használható, viszont ez a terület még nem esett át felújításon ugyanakkor remek lehetőséget kínál a későbbiekben például hobbitér, tároló vagy akár iroda kialakítására. A lakásban négy külön nyíló, tágas szoba található, napfényes terek, jó elosztás, kellemes hangulat jellemzi. A felújítás során modern burkolatok, új nyílászárók és korszerű elektromos hálózat is kiépítésre került, így valóban költözhető állapotban van. Az ingatlanhoz 280 négyzetméteres, kizárólagos használatú saját kert tartozik, amely ritkaság ilyen elhelyezkedés mellett. Itt jut hely pihenésnek, kertészkedésnek, vagy akár családi, baráti összejöveteleknek is. Bár az utca forgalmasabb, a HÉV-megálló néhány perc sétával elérhető, így a főváros gyorsan megközelíthető akár autó nélkül is. A közelben minden fontos szolgáltatás megtalálható iskola, óvoda, bevásárlási lehetőségek és egészségügyi ellátás. A lakás saját helyrajzi számmal rendelkezik, valamennyi közmű külön mérőórán keresztül történik, tehát valóban önálló otthonról beszélhetünk. Ez a lakás tökéletes választás lehet azoknak, akik szeretnének városi közelségben élni, de nem akarnak lemondani a kert nyújtotta szabadságról és egy valóban különálló, saját tulajdonú lakás kényelméről.M320645

Térkép

A hirdető elérhetősége

Dunaharaszti, Dózsa György út 45. (OTPIP)

Grünwald Norbert
+36 70 744