Eladó Lakás
Hirdetéskód: 9309390

-

Felújításhoz személyi kölcsönt keres? Kalkuláljon itt! →
FIX 3% Program

Ez a hirdetés megfelelhet a FIX 3%-os programnak.
Tudj meg többet a részletekről itt.

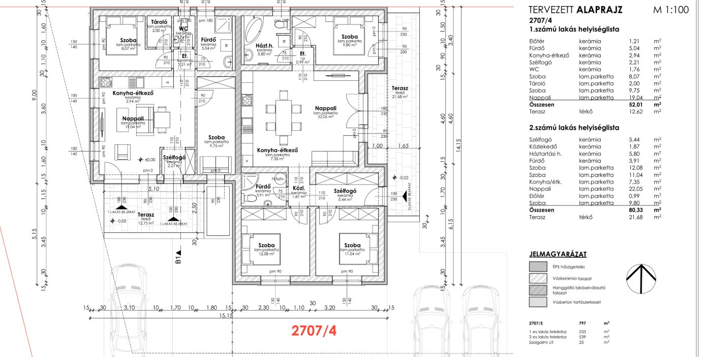
59.00 m2
ALAPTERÜLET
1
SZOBASZÁM
Tégla
ÉPÍTÉS
Hőszivattyú
FŰTÉS
  • Belső szintek 1
  • Kilátás Kertre néző
  • Parkolási lehetőség Udvari beálló
  • Építés éve 2026
  • Fűtés Hőszivattyú
  • Építőanyag Tégla
  • Erkély, terasz Terasz 12.00m2
  • Kertkapcsolat igen 245.00m2
  • Szigetelt igen
Energetikai besorolás: Nincs meghatározva
A+++
A++
A+
A
B
C
D
E
F
G
H
I

Az MBH Bank személyi kölcsön ajánlata

Fizetett hirdetés
1 millió Ft
6 évre
20 585 Ft/hó
THM: 14.5%
Részletek →
2 millió Ft
6 évre
41 169 Ft/hó
THM: 14.5%
Részletek →
3 millió Ft
6 évre
61 754 Ft/hó
THM: 14.5%
Részletek →

A tájékoztatás nem teljes körű és nem minősül ajánlattételnek.

Az ingatlan leírása

A Hársas tó szomszédságában, az osztrák határ mellett...

Szentgotthárd közelében, az Őrség varázslatos környezetében kínálunk megvételre modern, stílusos kialakítású új építésű nappali+2 szobás ikerházakat, 245m2-es telekkel. A letisztult megjelenés és a praktikus elrendezés ideális választást nyújt mindazok számára, akik nyugodt, zöld környezetben keresnek korszerű otthont. Az ingatlanok energiatakarékos megoldásokkal, többek között hőszivattyú padlófűtési rendszerrel készülnek, így hosszú távon is gazdaságosan fenntarthatók. A minőségi kivitelezés kényelmes, élhető lakókörnyezetet biztosítanak. A házak saját telekkel rendelkeznek, parkolási lehetőség biztosított 2 autó számára, így a mindennapok kényelme adott. Mindez kiváló ár-érték arány mellett érhető el, akár saját otthonnak, akár befektetésnek is.

Térkép

Ingatlan adásvétel ügyvédi díja
229 050 Ft
a hirdetésben szereplő ár alapján
  • A vételár 0,45%-a
  • Szerződéscsomag teljeskörű képviselettel
  • Ingyenes tulajdoni lap ellenőrzés
  • Az ÁFA-t már tartalmazza
Érdekel az ajánlat →
A tájékoztatás nem teljes körű és nem minősül ajánlattételnek. Minimum díj: 150 000 Ft, maximum díj: 600 000 Ft. A díj kizárólag lakóingatlan adásvételére vonatkozik.

A hirdető elérhetősége

Mészáros Dóra e.v.

06 30 929