Eladó Lakás
Hirdetéskód: 9193432

Született Fészekrakó Ingatlaniroda

FIX 3% Program

Ez a hirdetés megfelelhet a FIX 3%-os programnak.
Tudj meg többet a részletekről itt.

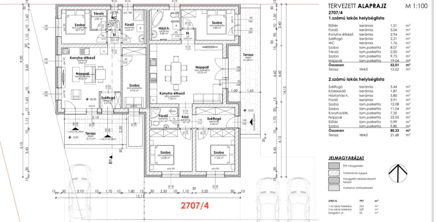
59.00 m2
ALAPTERÜLET
1
SZOBASZÁM
Tégla
ÉPÍTÉS
Hőszivattyú
FŰTÉS
  • Belső szintek 1
  • Kilátás Udvari
  • Parkolási lehetőség Udvari beálló
  • Építés éve 2026
  • Fűtés Hőszivattyú
  • Építőanyag Tégla
  • Erkély, terasz Terasz 12.00m2
  • Kertkapcsolat igen 245.00m2
  • Szigetelt igen
  • Bútorozott nem
Energetikai besorolás: Nincs meghatározva
A+++
A++
A+
A
B
C
D
E
F
G
H
I

Az ingatlan leírása

Fedezze fel az új építésű ingatlanok széles választékát, ahol a modern design és az energiatakarékos megoldások ötvöződnek! Legyen szó kisebb, praktikus családi házakról, tágasabb, nagyobb otthonokról vagy akár kényelmes ikerházakról, mindegyik ingatlan a korszerű technológiákra épít, amelyek hosszú távon segítenek csökkenteni az energiafogyasztást. Az új építésű otthonok nemcsak esztétikailag vonzóak, de a fenntarthatóságra és a gazdaságos működésre is nagy hangsúlyt fektetnek, így biztosítva, hogy minden évszakban a lehető legoptimálisabb komfortot élvezhesse. Az új építésű nappali+2szobás nettó 52m2-es (bruttó 59m2-es) ikerházhoz tartozik 245m2-es telek és 2 db autóbeálló. Akár befektetésnek veszi meg, olyan lesz, amilyet megálmodott. Jó fekvésű ingatlan minden napszakban garantálja a világos tereket. Burkolatok, szaniterek szabadon választhatóak, az építkezés korai szakaszában a belső falak is mozgathatóak, tehát kompromisszum nélkül, az Ön ízlésének megfelelő kialakításban gondolkodhat. Várható kezdés 2026. év tavasz. A modern gépészetnek és a kellő vastagságú, megfelelő rétegrendű építési módnak köszönhetően egy kis energia igényű ingatlanra tehet szert,fűtése hőszivattyú, padlófűtéssel. Az ár kulcsrakészen, telekkel együtt értendő.

Bővebb információkért, kérem keressen az elérhetőségeimen!

Térkép

A hirdető elérhetősége

Mészáros Dóra e.v.

Mészáros Dóra
+36 30 929