Eladó Lakás
Hirdetéskód: 9310233
OTP Ingatlanpont Csongrád
Felújításhoz személyi kölcsönt keres? Kalkuláljon itt! →
Ez a hirdetés megfelelhet a FIX 3%-os programnak.
Tudj meg többet a részletekről itt.
126.00 m2
ALAPTERÜLET2
SZOBASZÁMnincs megadva
ÉPÍTÉSGáz (cirkó)
FŰTÉS- CSOK igénybe vehető nem
- Tetőtér beépíthető nem
- Építés éve 1900
- Fűtés Gáz (cirkó)
- Klíma nem
- Szigetelt nem
A+++
A++
A+
A
B
C
D
E
F
G
H
I
Az ingatlan leírása
Otthon, ahol a múlt eleganciája és a jelen kényelme találkozik!
Szentes szívében, a Kurca közelségében kínálunk eladásra egy igazán különleges, ritka hangulatú polgári otthont, amelyben a klasszikus elegancia és a vintage stílus harmonikusan fonódik össze. Ez a 126 m2-es lakás nem csupán egy ingatlan, hanem egy hely, ahol történetek születnek, ahol minden reggel és este különleges hangulatban telik.
A tágas, fényben úszó terek azonnal magukkal ragadják az embert. A 3,5 méteres belmagasság még inkább kiemeli a polgári stílus időtálló szépségét, miközben a gondosan megtervezett elrendezés a mindennapi kényelmet szolgálja. A nappali melegét egy hangulatos kandalló teszi teljessé, ahol egy hosszú nap után igazán jó megpihenni.
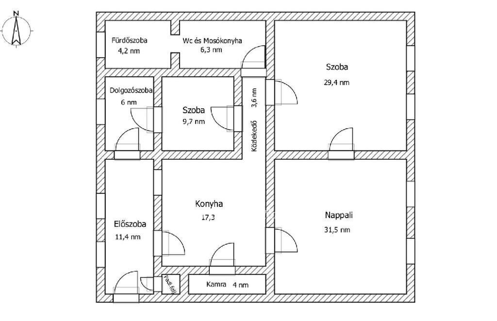
Az otthon része egy nappali egy hálószoba és két félszoba, egy tágas konyha kamrával, fürdőszoba, valamint egy praktikus mosókonyha WC-vel. Minden adott a kényelmes élethez. A hozzá tartozó, mintegy kb. 550 nm-es udvar igazi kis oázis a város közepén. A gyönyörű kerti tó mellett elfogyasztott reggeli kávé vagy egy csendes esti borozás pillanatai teszik igazán különlegessé ezt a helyet. Az udvaron autóbeállási lehetőség is adott, valamint egy fúrt kút is rendelkezésre áll. Az ingatlan teljes körű felújításon esett át, korszerű villanyhálózattal és megbízható műszaki tartalommal. Téglaépítésű, radiátoros központi fűtéssel rendelkezik, fenntartása kedvező. Ez az otthon ideális választás mindazok számára, akik a belváros közelségét keresik, mégis vágynak a nyugalomra és az otthon melegére. Legyen szó családokról vagy párokról. A padlástér beépíthető, így további lehetőségeket rejt magában. Az ingatlan tehermentes, egy tulajdonosé, és akár hitellel is megvásárolható. Birtokbaadás rövid határidővel, akár 3 hónapon belül. Ha egy igazán különleges, lélekkel teli otthont keres Szentesen, érdemes személyesen is megtapasztalni ennek a helynek a varázsát.
Ha érdeklődsz az ingatlan iránt, keress bizalommal, akár hétvégén is! Nézzük meg együtt! Legújabb szolgáltatásként ajánlom minden kedves ügyfelem részére az OTP Bank által közvetített Babaváró, CSOK PLUSZ, Otthon Start Hitelprogram vagy egyéb kölcsönök intézését. Az OTP Ingatlanpont kedvezményes pénzügyi konstrukciókkal áll ügyfelei rendelkezésére! VIP-szolgáltatást nyújtunk az OTP-hiteltermékek ügyintézésében. Jogi és pénzügyi segítséget nyújtanak szakértőink, hogy az adásvétel folyamata gördülékeny legyen. Amennyiben a vételár a kérdés, és úgy gondolja még nincs meg az összeg a leendő új otthonra? Lehet, hogy még is rendelkezésére áll a vételár csak még Ön nem is tudja? Tisztában van valóban az anyagi lehetőségeivel? Az áthidaló megoldásokkal? Esetleg csak az az akadály, hogy nem adta el még a saját ingatlanját? Nem gond, a tulajdonosaink, eladóink szívesen megvárják Önt, segítünk a gyors értékesítésben is. Ne maradjon le a vételről, ha már megtalálta a megfelelő új otthont! Szolgáltatásunk ingyenes, kizárólag sikeres értékesítés esetén van megbízási díj fizetési kötelezettség. A vevők is nálunk vannak és lehet az Ön ingatlanjára várnak?! Tudjon meg többet, hívjon bizalommal! Eladó ingatlanja van? Nincs vevője? Hívjon segítek az értékesítésben! Kedvező hitelajánlatokkal (BABAVÁRÓ hitel, piaci hitel, és szabadfelhasználású hitel) várjuk jelentkezését. Számos konstrukció közül választhatnak. Irodáink Szentes, Petőfi utca 12. (a buszmegálló felől) és Csongrád, Fő utca 54. szám alatt várja a személyes érdeklődőket. ***VÁLASSZUK KI EGYÜTT AZ ÖNNEK LEGMEGFELELŐBB AJÁNLATOT! BANKI SORBAN ÁLLÁS NÉLKÜL! ***
Az energetikai tanúsítvány készítése folyamatban van, amint rendelkezésre áll, úgy azzal a hirdetés frissítésre kerül.
Szentes szívében, a Kurca közelségében kínálunk eladásra egy igazán különleges, ritka hangulatú polgári otthont, amelyben a klasszikus elegancia és a vintage stílus harmonikusan fonódik össze. Ez a 126 m2-es lakás nem csupán egy ingatlan, hanem egy hely, ahol történetek születnek, ahol minden reggel és este különleges hangulatban telik.
A tágas, fényben úszó terek azonnal magukkal ragadják az embert. A 3,5 méteres belmagasság még inkább kiemeli a polgári stílus időtálló szépségét, miközben a gondosan megtervezett elrendezés a mindennapi kényelmet szolgálja. A nappali melegét egy hangulatos kandalló teszi teljessé, ahol egy hosszú nap után igazán jó megpihenni.
Az otthon része egy nappali egy hálószoba és két félszoba, egy tágas konyha kamrával, fürdőszoba, valamint egy praktikus mosókonyha WC-vel. Minden adott a kényelmes élethez. A hozzá tartozó, mintegy kb. 550 nm-es udvar igazi kis oázis a város közepén. A gyönyörű kerti tó mellett elfogyasztott reggeli kávé vagy egy csendes esti borozás pillanatai teszik igazán különlegessé ezt a helyet. Az udvaron autóbeállási lehetőség is adott, valamint egy fúrt kút is rendelkezésre áll. Az ingatlan teljes körű felújításon esett át, korszerű villanyhálózattal és megbízható műszaki tartalommal. Téglaépítésű, radiátoros központi fűtéssel rendelkezik, fenntartása kedvező. Ez az otthon ideális választás mindazok számára, akik a belváros közelségét keresik, mégis vágynak a nyugalomra és az otthon melegére. Legyen szó családokról vagy párokról. A padlástér beépíthető, így további lehetőségeket rejt magában. Az ingatlan tehermentes, egy tulajdonosé, és akár hitellel is megvásárolható. Birtokbaadás rövid határidővel, akár 3 hónapon belül. Ha egy igazán különleges, lélekkel teli otthont keres Szentesen, érdemes személyesen is megtapasztalni ennek a helynek a varázsát.
Ha érdeklődsz az ingatlan iránt, keress bizalommal, akár hétvégén is! Nézzük meg együtt! Legújabb szolgáltatásként ajánlom minden kedves ügyfelem részére az OTP Bank által közvetített Babaváró, CSOK PLUSZ, Otthon Start Hitelprogram vagy egyéb kölcsönök intézését. Az OTP Ingatlanpont kedvezményes pénzügyi konstrukciókkal áll ügyfelei rendelkezésére! VIP-szolgáltatást nyújtunk az OTP-hiteltermékek ügyintézésében. Jogi és pénzügyi segítséget nyújtanak szakértőink, hogy az adásvétel folyamata gördülékeny legyen. Amennyiben a vételár a kérdés, és úgy gondolja még nincs meg az összeg a leendő új otthonra? Lehet, hogy még is rendelkezésére áll a vételár csak még Ön nem is tudja? Tisztában van valóban az anyagi lehetőségeivel? Az áthidaló megoldásokkal? Esetleg csak az az akadály, hogy nem adta el még a saját ingatlanját? Nem gond, a tulajdonosaink, eladóink szívesen megvárják Önt, segítünk a gyors értékesítésben is. Ne maradjon le a vételről, ha már megtalálta a megfelelő új otthont! Szolgáltatásunk ingyenes, kizárólag sikeres értékesítés esetén van megbízási díj fizetési kötelezettség. A vevők is nálunk vannak és lehet az Ön ingatlanjára várnak?! Tudjon meg többet, hívjon bizalommal! Eladó ingatlanja van? Nincs vevője? Hívjon segítek az értékesítésben! Kedvező hitelajánlatokkal (BABAVÁRÓ hitel, piaci hitel, és szabadfelhasználású hitel) várjuk jelentkezését. Számos konstrukció közül választhatnak. Irodáink Szentes, Petőfi utca 12. (a buszmegálló felől) és Csongrád, Fő utca 54. szám alatt várja a személyes érdeklődőket. ***VÁLASSZUK KI EGYÜTT AZ ÖNNEK LEGMEGFELELŐBB AJÁNLATOT! BANKI SORBAN ÁLLÁS NÉLKÜL! ***
Az energetikai tanúsítvány készítése folyamatban van, amint rendelkezésre áll, úgy azzal a hirdetés frissítésre kerül.