Eladó Lakás
Hirdetéskód: 9247211
OTP Ingatlanpont Csongrád
53.00 m2
ALAPTERÜLET1
SZOBASZÁMnincs megadva
ÉPÍTÉSnincs megadva
FŰTÉS- CSOK igénybe vehető nem
- Tetőtér beépíthető nem
- Építés éve 2025
- Klíma nem
- Szigetelt nem
A+++
A++
A+
A
B
C
D
E
F
G
H
I
Az ingatlan leírása
Szentesi, zöldövezeti, energiahatékony újépítésű lakások leköthetők --- az OTP Ingatlanpontnál!
Már csak 4 lakás elérhető!
Modern, elegáns megjelenés, korszerű anyagok és kellemes, zöld környezet jellemzik ezt a projektet.
A parkosított telken két lakóház (földszint, emelet, tetőtér) valamint garázsok kerültek elhelyezésre. Az egyik lakóépületben hat lakás, a másikban nyolc lakás kap helyet. A lakásokba zárt lépcsőházon keresztül juthatunk.
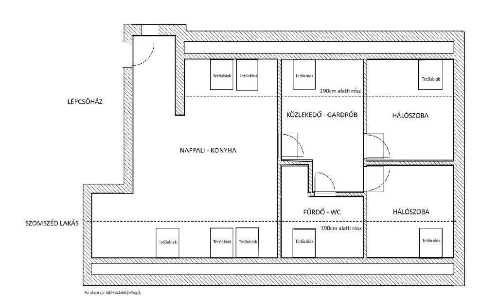
A tetőéri lakások alapterülete 82,8m2, melyből a hasznos (190cm magasság feletti rész) 53,56m2.
A tágas amerikai konyhás nappali mellett 2 hálószoba, közlekedő ? gardrób, valamint fürdőszoba áll rendelkezésre.
A fűtést és a melegvizet hőszivattyú fogja ellátni, padlófűtéssel, lakásonként egyedi mérési lehetőséggel.
Az ár a kulcsrakész állapotra vonatkozik.
A lakásokhoz garázs is vásárolható.
Ha számít Önnek az egyedi, elegáns környezet, valamint az alacsony fenntartási költségek, akkor ne gondolkozzon tovább!
További információért hívjon bizalommal!
Az OTP Ingatlanpont teljes körű ügyintézéssel áll az eladók és vevők rendelkezésére. A kínálatunkból választott ingatlan finanszírozásához kedvezményes hitelkonstrukciót biztosítunk. Az OTP Banknál elérhető Babaváró, falusi CSOK, CSOK Plusz hitel és egyéb kölcsönök intézését díjmentesen vállaljuk. Az adásvételi szerződés megkötéséhez igény szerint ügyvédet biztosítunk. Irodáink Szentes, Petőfi utca 12. a buszmegálló felől, és Csongrád, Fő utca 54. szám alatt várjuk a személyes érdeklődőket. Válasszuk ki együtt az Önnek legmegfelelőbb ajánlatot banki sorban állás nélkül!
Már csak 4 lakás elérhető!
Modern, elegáns megjelenés, korszerű anyagok és kellemes, zöld környezet jellemzik ezt a projektet.
A parkosított telken két lakóház (földszint, emelet, tetőtér) valamint garázsok kerültek elhelyezésre. Az egyik lakóépületben hat lakás, a másikban nyolc lakás kap helyet. A lakásokba zárt lépcsőházon keresztül juthatunk.
A tetőéri lakások alapterülete 82,8m2, melyből a hasznos (190cm magasság feletti rész) 53,56m2.
A tágas amerikai konyhás nappali mellett 2 hálószoba, közlekedő ? gardrób, valamint fürdőszoba áll rendelkezésre.
A fűtést és a melegvizet hőszivattyú fogja ellátni, padlófűtéssel, lakásonként egyedi mérési lehetőséggel.
Az ár a kulcsrakész állapotra vonatkozik.
A lakásokhoz garázs is vásárolható.
Ha számít Önnek az egyedi, elegáns környezet, valamint az alacsony fenntartási költségek, akkor ne gondolkozzon tovább!
További információért hívjon bizalommal!
Az OTP Ingatlanpont teljes körű ügyintézéssel áll az eladók és vevők rendelkezésére. A kínálatunkból választott ingatlan finanszírozásához kedvezményes hitelkonstrukciót biztosítunk. Az OTP Banknál elérhető Babaváró, falusi CSOK, CSOK Plusz hitel és egyéb kölcsönök intézését díjmentesen vállaljuk. Az adásvételi szerződés megkötéséhez igény szerint ügyvédet biztosítunk. Irodáink Szentes, Petőfi utca 12. a buszmegálló felől, és Csongrád, Fő utca 54. szám alatt várjuk a személyes érdeklődőket. Válasszuk ki együtt az Önnek legmegfelelőbb ajánlatot banki sorban állás nélkül!