Eladó Lakás
Hirdetéskód: 9206972

Langmár Bettina

Felújításhoz személyi kölcsönt keres? Kalkuláljon itt! →
FIX 3% Program

Ez a hirdetés megfelelhet a FIX 3%-os programnak.
Tudj meg többet a részletekről itt.

69.00 m2
ALAPTERÜLET
4
SZOBASZÁM
Tégla
ÉPÍTÉS
Padlófűtés
FŰTÉS
  • Kilátás Udvari
  • Parkolási lehetőség Udvari beálló
  • Építés éve 2025
  • Fűtés Padlófűtés
  • Építőanyag Tégla
  • Erkély, terasz Erkély 29.00m2
  • Klíma igen
Energetikai besorolás: Nincs meghatározva
A+++
A++
A+
A
B
C
D
E
F
G
H
I

Az MBH Bank személyi kölcsön ajánlata

Fizetett hirdetés
1 millió Ft
6 évre
20 585 Ft/hó
THM: 14.5%
Részletek →
2 millió Ft
6 évre
41 169 Ft/hó
THM: 14.5%
Részletek →
3 millió Ft
6 évre
61 754 Ft/hó
THM: 14.5%
Részletek →

A tájékoztatás nem teljes körű és nem minősül ajánlattételnek.

Az ingatlan leírása

 


Fedezze fel Székesfehérvár prémium lakóparkját-Királykert Lakóparkot.


Örömmel mutatjuk be Székesfehérvár modern lakóparkját, amely a Szekfű Gyula utca és a Virág Benedek utca találkozásánál épül. Ez a lakópark tökéletes választás azok számára, akik magas minőségű, energiatakarékos otthonra vágynak egy zöld környezetben, közel a történelmi belvároshoz.


Prémium lakások: Minden lakás korszerű, energiatakarékos technológiákkal készül, hogy hosszú távon is kényelmes és fenntartható otthont biztosítson.


Zöld környezet és közösségi terek: A lakópark gondosan kialakított zöld övezetekkel és közösségi terekkel várja a lakókat, ahol a nyugalom és a kikapcsolódás garantált.


Történelmi belváros közelsége: Élvezze Székesfehérvár történelmi belvárosának varázsát, amely gyalogosan is könnyen megközelíthető, és fedezze fel a város kulturális és szórakozási lehetőségeit.


Válassza az otthonok új szintjét Székesfehérvár modern lakóparkjában, ahol a prémium minőség és a modern komfort minden apró részletében megjelenik.


Az épület a legújabb technológiákkal készül, kiemelten energiatakarékos megoldásokkal és fenntartható kialakítással.


Élvezze a tágas, napfényes tereket és a magas színvonalú kialakítást, amelyek garantálják, hogy otthona nemcsak praktikus, hanem esztétikailag is kifogástalan.


 


ELÉRHETŐ INGATLANJAINK:


Földszint:
-B.0.2.: 56,53nm + kertkapcsolat


Második emelet:
-B.2.1.: 53,85nm + 7,29nm + 12,02nm terasz
-B.2.2.: 61,68nm + 3,24nm + 22,71nm terasz
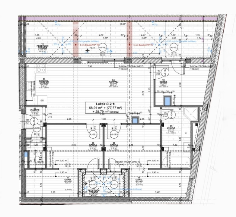
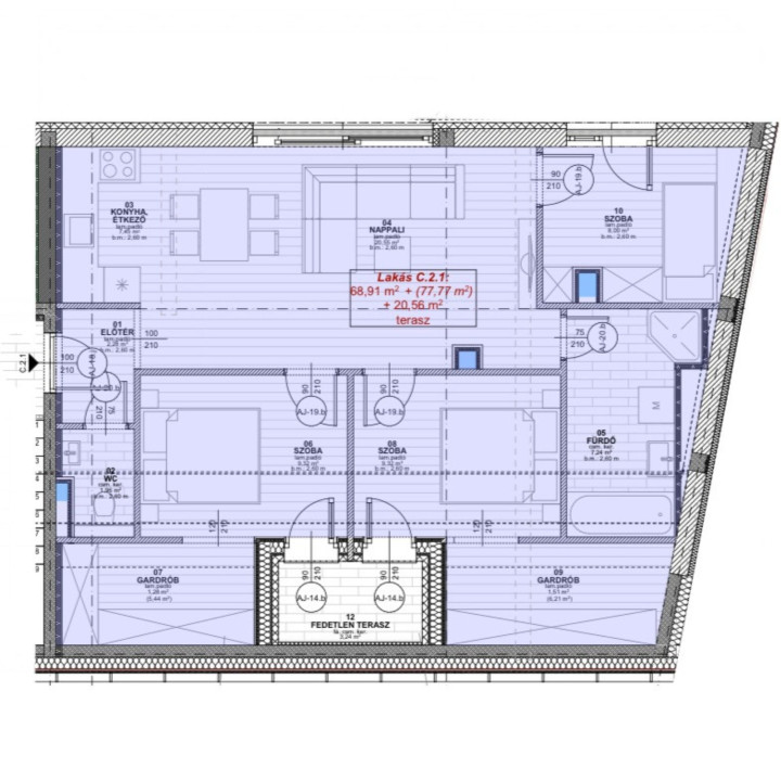
-C.2.1.: 68,91nm + 3,24nm + 25,55nm terasz


 


KIRÁLYKERT LAKÓPARKBAN A C.2.1. LAKÁS BEMUTATÁSA


Leírás


Ez a lakás egy stílusos és tágas ingatlan, amely 68,91 m² hasznos alapterülettel (nettó alapterület 77,77 m2) rendelkezik. ideális választás nagyobb családok számára, vagy azok számára kik szeretik a tágas tereket. A lakáshoz egy 25,55 m²-es fedetlen terasz és egy 3,24 m²-es másik terasz is tartozik. Képzelje el, ahogy a tágas nappaliban ül, mely közvetlen kapcsolatban áll a terasszal. A hatalmas, nyitható üvegajtók szinte eltűnnek, mikor kinyitja őket, és a friss levegő könnyedén áramlik be, megújuló energiát hozva a helyiségbe. A nappali és a terasz közötti átmenet zökkenőmentes, mintha egyetlen nagy nyitott tér lenne, ahol a beltéri és kültéri élet örömei találkoznak. A hálószobákból közvetlenül juthatunk ki a közös teraszra, míg a félszobából pedig a hangulatos másik teraszra. Az amerikai konyhás nappali tökéletes helyszín a mindennapi élethez és a különleges alkalmakhoz egyaránt, ahol mindenki otthon érezheti magát. A fürdőszoba luxusérzetet kelt a kád és a zuhanyzó kombinációjával, így mindig választási lehetősége van a gyors zuhany vagy a pihentető fürdő között. Külön helyiségben található a WC, extra kényelmet biztosítva, ami különösen praktikus a mindennapi életben. A lakás ideális választás azok számára, akik keresnek egy tágas és kényelmes otthont és vágynak a természet közelségére.


 


Helyiségek részletes leírása:


•Előtér (2,28 m²) – Laminált padlóval burkolt előtér, amely kellemesen üdvözli a látogatókat.
•WC (1,96 m²) – Praktikus kerámia burkolatú mellékhelyiség, amely könnyen tisztán tartható.
•Fürdőszoba (7,24 m²) – Elegáns kerámia burkolat, amely kiemeli a helyiség modern stílusát.
•Konyha és étkező (7,45 m²) – Világos, modern konyha-étkező laminált padlóval, ahol a családi étkezések kényelmesen lebonyolíthatók.
•Nappali (20,55 m²) – Tágas nappali laminált padlóval, amely ideális hely a családi összejövetelekhez és a pihenéshez.
•Gardrób (1,28 m² / 5,44 m²) – Praktikus tárolóhely laminált padlóval, amely segíti a rendezett életteret.
•Gardrób (1,51 m² / 6,21 m²) – Praktikus gardrób, amely extra tároló helyet biztosít.
•Szoba 1 (9,32 m²) – Kényelmes méretű hálószoba laminált padlóval, amely tökéletes a pihenéshez.
•Szoba 2 (9,32 m²) – Második hálószoba, szintén laminált padlóval, ideális gyermek vagy vendégszobának.
•Szoba 3 (8,00 m²) – Harmadik hálószoba, szintén laminált padlóval, ideális dolgozószobának vagy gardrób szobának.
•Fedetlen teraszok (3,24 m² + 25,55 m²) – Fagyálló, csúszásmentes kerámia burkolattal ellátott teraszok, ahol élvezheti a friss levegőt és a szabadtéri kikapcsolódást.


 


Amennyiben a három hálószobás kialakítás az Ön számára ideális, a C.2.1. lakás tökéletes választás lehet.


Ugyanakkor, ha inkább a tágas, világos terek vonzzák, a harmadik szoba falazatának elhagyásával egy igazán nagy, amerikai konyhás nappali alakítható ki, amely otthonos, levegős életteret biztosít.


A két egymás mellett elhelyezkedő hálószoba közös terasszal rendelkezik, míg a nappaliból a belső udvarra néző, legalább 2 méter mély teraszra lehet kilépni – tökéletes hely a reggeli kávéhoz vagy egy esti pihenéshez. A harmadik hálószoba szintén közvetlen teraszkapcsolattal bír, így minden helyiségben élvezhető a természet közelsége.


A hálószobák praktikus gardróbsarokkal lettek kialakítva, míg a fürdőszobában kád és zuhanyzó is helyet kapott, hogy a mindennapi használat kényelmes és rugalmas legyen.


A lakás hasznos alapterülete 68,91 m², ehhez tartozik:
• 28,79 m² terasz (melynek fele beszámítható, azaz 14,395 m²),
• valamint egy gardróbrész (szintén fele részben számolva +4,43 m²)
Így az összesített terület 87,735 m².


A vételár tartalmazza az elektromos redőnyöket távirányítóval, LED kiállásokat: gardróbszobákban, falikar kiállásokat a hálószobákban – csillárkapcsolókkal.


 


Tároló:


A lakásokhoz korlátozott számban tárolók vásárolhatók, amelyek nagyszerű lehetőséget kínálnak a további tárolási igények kielégítésére.


Ezek a tárolók ideálisak lehetnek a szezonális holmik, sportfelszerelések, vagy éppen a ritkábban használt tárgyak biztonságos és rendezett elhelyezésére.


A korlátozott mennyiség miatt érdemes mielőbb érdeklődni a rendelkezésre álló tárolóhelyekről, hogy biztosíthassa magának ezt a praktikus kiegészítést az új otthonához. A tárolók megvásárlása külön díj ellenében lehetséges, de a befektetés hosszú távon kényelmet és rendet biztosít az életterében.


 


Fedetlen beálló:


Korlátozott számban fedetlen beállók állnak rendelkezésre, amelyek megvásárolhatók.


A fedetlen beállók egyszerű és kényelmes megoldást kínálnak, ideálisak lehetnek azok számára, akik nem igényelnek teljes fedést, de szeretnének biztos parkolóhelyet az otthonuk közelében. Ezek a beállók általában könnyen megközelíthetők és kényelmes parkolási lehetőséget biztosítanak.


Mivel a parkolóhelyek korlátozott számban érhetők el, érdemes mielőbb érdeklődni a rendelkezésre álló lehetőségekről, hogy biztosíthassa a számára legmegfelelőbb parkolási megoldást.


 


Az árváltoztatás jogát fenntartjuk. Áraink tájékoztató jellegűek. Szabad lakásaink után érdeklődjön.

Térkép

Ingatlan adásvétel ügyvédi díja
449 550 Ft
a hirdetésben szereplő ár alapján
  • A vételár 0,45%-a
  • Szerződéscsomag teljeskörű képviselettel
  • Ingyenes tulajdoni lap ellenőrzés
  • Az ÁFA-t már tartalmazza
Érdekel az ajánlat →
A tájékoztatás nem teljes körű és nem minősül ajánlattételnek. Minimum díj: 150 000 Ft, maximum díj: 600 000 Ft. A díj kizárólag lakóingatlan adásvételére vonatkozik.

A hirdető elérhetősége

STEF HOME

Langmár Bettina
+36 70 575