Eladó Lakás
Hirdetéskód: 9257512
Openhouse Székesfehérvár Ingatlaniroda
74.00 m2
ALAPTERÜLET3
SZOBASZÁMnincs megadva
ÉPÍTÉSnincs megadva
FŰTÉS- CSOK igénybe vehető nem
- Tetőtér beépíthető nem
- Építés éve 2026
- Klíma nem
- Szigetelt nem
A+++
A++
A+
A
B
C
D
E
F
G
H
I
Az ingatlan leírása
Az Openhouse Székesfehérvár Ingatlaniroda kínálatában eladó a #179353 hivatkozási számú székesfehérvári társasházi lakás.
Eladó új építésű Otthon Start kompatibilis, tégla lakások, Székesfehérvár újonnan épülő városrészén, a déli oldalon 4. ütemében, a Harmatosvölgyben.
A folyamatosan fejlődő családi házas lakópark közepén, 2026. májusi kezdéssel, 39 lakás fog megépülni az 4. ütemben.
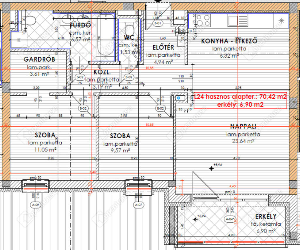
L24- es társasházi lakás jellemzői:
30 cm tégla falak, 10 cm tégla válaszfalak,
saját kondenzációs gázkazán, radiátoros hőleadással
háromrétegű műanyag nyílászárók, 10 cm-es hőszigetelés
egy beállóhely jár a lakáshoz, ez benne van az árban
modern megjelenés
Lakás:
nettó 70,42 m2-es lakás + 6,90 m2-es fedett erkély
nappali-konyha-étkező, 2 hálószoba, gardrób, fürdő és wc
II. emeleti, liftes, zárt lépcsőház
Ha nagyobbat vagy kisebbet keresne, abban is tudok segíteni!
Ha szívesebben lakna Székesfehérvár egyik zöldebb részében, inkább elkerülné a zsúfolt, panel lakótelepeket és nem szeretne egy 40 éves társasházban lévő lakás felújításával vesződni, ez a 2026-be épülő társasházas kiváló választás Önnek! Befektetőknek és igazából minden korosztály számára megfelelő, a kislakásoktól a 3 szobásig terjedően minden igényt kielégít. Itt ötvözve van az új, modern dizájn a mai igényeknek megfelelő kialakítással, az Ön álmai otthonának megvalósításához!
Székesfehérvári ingatlaniroda eladásra kínálja a Harmatosvölgyben épülő, 39 lakásos, társasházi lakásait!
Ha felkeltette érdeklődését ez az eladó székesfehérvári társasházi lakás, vagy bármely más társasházi lakás és bővebb információt szeretne, keressen bizalommal.Hivatkozási szám: #179353
Az Openhouse Székesfehérvár Ingatlaniroda tagjaként várom Önt az országos hálózatunk teljes kínálatával.
A társasházi lakás vásárláshoz hitelt igényelne? Ingyenes hitelközvetítéssel segít Önnek bankfüggetlen hitelszakértőnk.
További szolgáltatásainkkal (pl. értékbecslés, energetikai tanúsítvány, jogi háttér) is segítjük Önt a vásárlásban.
Az otthon érték. Az ingatlan üzlet.
Eladó új építésű Otthon Start kompatibilis, tégla lakások, Székesfehérvár újonnan épülő városrészén, a déli oldalon 4. ütemében, a Harmatosvölgyben.
A folyamatosan fejlődő családi házas lakópark közepén, 2026. májusi kezdéssel, 39 lakás fog megépülni az 4. ütemben.
L24- es társasházi lakás jellemzői:
30 cm tégla falak, 10 cm tégla válaszfalak,
saját kondenzációs gázkazán, radiátoros hőleadással
háromrétegű műanyag nyílászárók, 10 cm-es hőszigetelés
egy beállóhely jár a lakáshoz, ez benne van az árban
modern megjelenés
Lakás:
nettó 70,42 m2-es lakás + 6,90 m2-es fedett erkély
nappali-konyha-étkező, 2 hálószoba, gardrób, fürdő és wc
II. emeleti, liftes, zárt lépcsőház
Ha nagyobbat vagy kisebbet keresne, abban is tudok segíteni!
Ha szívesebben lakna Székesfehérvár egyik zöldebb részében, inkább elkerülné a zsúfolt, panel lakótelepeket és nem szeretne egy 40 éves társasházban lévő lakás felújításával vesződni, ez a 2026-be épülő társasházas kiváló választás Önnek! Befektetőknek és igazából minden korosztály számára megfelelő, a kislakásoktól a 3 szobásig terjedően minden igényt kielégít. Itt ötvözve van az új, modern dizájn a mai igényeknek megfelelő kialakítással, az Ön álmai otthonának megvalósításához!
Székesfehérvári ingatlaniroda eladásra kínálja a Harmatosvölgyben épülő, 39 lakásos, társasházi lakásait!
Ha felkeltette érdeklődését ez az eladó székesfehérvári társasházi lakás, vagy bármely más társasházi lakás és bővebb információt szeretne, keressen bizalommal.Hivatkozási szám: #179353
Az Openhouse Székesfehérvár Ingatlaniroda tagjaként várom Önt az országos hálózatunk teljes kínálatával.
A társasházi lakás vásárláshoz hitelt igényelne? Ingyenes hitelközvetítéssel segít Önnek bankfüggetlen hitelszakértőnk.
További szolgáltatásainkkal (pl. értékbecslés, energetikai tanúsítvány, jogi háttér) is segítjük Önt a vásárlásban.
Az otthon érték. Az ingatlan üzlet.