Eladó Lakás
Hirdetéskód: 9266060
Openhouse Székesfehérvár Ingatlaniroda
64.00 m2
ALAPTERÜLET2
SZOBASZÁMnincs megadva
ÉPÍTÉSnincs megadva
FŰTÉS- CSOK igénybe vehető nem
- Tetőtér beépíthető nem
- Építés éve 2026
- Klíma nem
- Szigetelt nem
A+++
A++
A+
A
B
C
D
E
F
G
H
I
Az ingatlan leírása
Az Openhouse Székesfehérvár Ingatlaniroda kínálatában eladó a #179543 hivatkozási számú székesfehérvári társasházi lakás.
Exkluzív belvárosi otthon Székesfehérváron – Aurum Palace
Ritka lehetőség Székesfehérvár belvárosában.
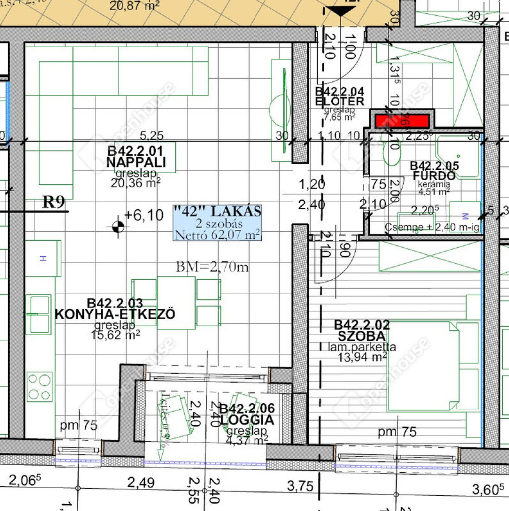
Az Aurum Palace exkluzív lakóépületében elérhető egy II.emeleti 62,07 m²-es, 2 szobás, prémium kivitelezésű lakás(L42) és a hozzá tartozó 4,37 m²-es loggia, amely a modern városi élet minden kényelmét magas színvonalon kínálja.
A lakás elosztása átgondolt és élhető:
világos, amerikai konyhás nappali étkezővel, egy tágas szoba, elegáns fürdőszoba, valamint külön WC szolgálja a mindennapi komfortot.
Az épület exkluzív jellemzői:
Tágas, elegáns közlekedők
Liftes kialakítás
Külön tároló- és kerékpártároló helyiségek
Mélygarázsban megoldott parkolás
Autómentes, parkosított belső udvar – nyugodt, zöld környezet a belváros szívében
Főbb műszaki tartalom:
Padlófűtés
Házközponti fűtés egyéni mérőórákkal
Távvezérelhető fűtési rendszer
Zöld Otthon követelményeknek megfelelő energetikai besorolás
Háromrétegű üvegezésű nyílászárók
Redőny és szúnyogháló
Hangszigetelt CPL beltéri ajtók
Választható hideg- és melegburkolatok
Minőségi alapanyagok, felsőkategóriás belsőépítészeti megoldások
Központi vízlágyító rendszer
Lift
Elhelyezkedés és befektetési érték:
A belvárosi lokáció folyamatos keresletet biztosít, legyen szó saját használatról vagy bérbeadásról.
Az új építésű, prémium kategóriás lakások különösen keresettek ezen a környéken.
Befektetők számára:
Új építésű, alacsony fenntartási költség
Kiváló kiadhatóság
Hosszú távon értékálló ingatlan
Ez a lakás nem tömegingatlan, hanem egy gondosan megtervezett, magas minőséget képviselő belvárosi otthon, ahol a modern műszaki tartalom és az értékálló befektetés találkozik.
Elérhető lakások száma erősen korlátozott.
Keressen bizalommal további információért vagy megtekintésért.
Ha felkeltette érdeklődését ez az eladó székesfehérvári társasházi lakás, vagy bármely más társasházi lakás és bővebb információt szeretne, keressen bizalommal.Hivatkozási szám: #179543
Az Openhouse Székesfehérvár Ingatlaniroda tagjaként várom Önt az országos hálózatunk teljes kínálatával.
A társasházi lakás vásárláshoz hitelt igényelne? Ingyenes hitelközvetítéssel segít Önnek bankfüggetlen hitelszakértőnk.
További szolgáltatásainkkal (pl. értékbecslés, energetikai tanúsítvány, jogi háttér) is segítjük Önt a vásárlásban.
Az otthon érték. Az ingatlan üzlet.
Exkluzív belvárosi otthon Székesfehérváron – Aurum Palace
Ritka lehetőség Székesfehérvár belvárosában.
Az Aurum Palace exkluzív lakóépületében elérhető egy II.emeleti 62,07 m²-es, 2 szobás, prémium kivitelezésű lakás(L42) és a hozzá tartozó 4,37 m²-es loggia, amely a modern városi élet minden kényelmét magas színvonalon kínálja.
A lakás elosztása átgondolt és élhető:
világos, amerikai konyhás nappali étkezővel, egy tágas szoba, elegáns fürdőszoba, valamint külön WC szolgálja a mindennapi komfortot.
Az épület exkluzív jellemzői:
Tágas, elegáns közlekedők
Liftes kialakítás
Külön tároló- és kerékpártároló helyiségek
Mélygarázsban megoldott parkolás
Autómentes, parkosított belső udvar – nyugodt, zöld környezet a belváros szívében
Főbb műszaki tartalom:
Padlófűtés
Házközponti fűtés egyéni mérőórákkal
Távvezérelhető fűtési rendszer
Zöld Otthon követelményeknek megfelelő energetikai besorolás
Háromrétegű üvegezésű nyílászárók
Redőny és szúnyogháló
Hangszigetelt CPL beltéri ajtók
Választható hideg- és melegburkolatok
Minőségi alapanyagok, felsőkategóriás belsőépítészeti megoldások
Központi vízlágyító rendszer
Lift
Elhelyezkedés és befektetési érték:
A belvárosi lokáció folyamatos keresletet biztosít, legyen szó saját használatról vagy bérbeadásról.
Az új építésű, prémium kategóriás lakások különösen keresettek ezen a környéken.
Befektetők számára:
Új építésű, alacsony fenntartási költség
Kiváló kiadhatóság
Hosszú távon értékálló ingatlan
Ez a lakás nem tömegingatlan, hanem egy gondosan megtervezett, magas minőséget képviselő belvárosi otthon, ahol a modern műszaki tartalom és az értékálló befektetés találkozik.
Elérhető lakások száma erősen korlátozott.
Keressen bizalommal további információért vagy megtekintésért.
Ha felkeltette érdeklődését ez az eladó székesfehérvári társasházi lakás, vagy bármely más társasházi lakás és bővebb információt szeretne, keressen bizalommal.Hivatkozási szám: #179543
Az Openhouse Székesfehérvár Ingatlaniroda tagjaként várom Önt az országos hálózatunk teljes kínálatával.
A társasházi lakás vásárláshoz hitelt igényelne? Ingyenes hitelközvetítéssel segít Önnek bankfüggetlen hitelszakértőnk.
További szolgáltatásainkkal (pl. értékbecslés, energetikai tanúsítvány, jogi háttér) is segítjük Önt a vásárlásban.
Az otthon érték. Az ingatlan üzlet.