Eladó Lakás
Hirdetéskód: 9194590

-

Felújításhoz személyi kölcsönt keres? Kalkuláljon itt! →
FIX 3% Program

Ez a hirdetés megfelelhet a FIX 3%-os programnak.
Tudj meg többet a részletekről itt.

77.00 m2
ALAPTERÜLET
2
SZOBASZÁM
Tégla
ÉPÍTÉS
Gáz (cirkó)
FŰTÉS
  • CSOK igénybe vehető igen
  • Kilátás Utcai
  • Ingatlan komfort Duplakomfortos
  • Parkolási lehetőség Utcán, közterületen
  • Építés éve 2005
  • Fűtés Gáz (cirkó)
  • Építőanyag Tégla
  • Erkély, terasz Erkély 7.00m2
  • Klíma igen
  • Szigetelt igen
  • Akadálymentesített igen
Energetikai besorolás: Nincs meghatározva
A+++
A++
A+
A
B
C
D
E
F
G
H
I

Az MBH Bank személyi kölcsön ajánlata

Fizetett hirdetés
1 millió Ft
6 évre
20 585 Ft/hó
THM: 14.5%
Részletek →
2 millió Ft
6 évre
41 169 Ft/hó
THM: 14.5%
Részletek →
3 millió Ft
6 évre
61 754 Ft/hó
THM: 14.5%
Részletek →

A tájékoztatás nem teljes körű és nem minősül ajánlattételnek.

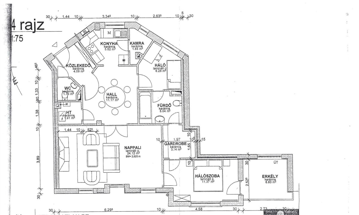
Az ingatlan leírása

Székesfehérvár történelmi belvárosában, rendezett, liftes társasház első emeletén eladó egy 77 m²-es, nappali + 2 szobás, erkélyes lakás, amely kialakításánál és elhelyezkedésénél fogva ideális lehet nemcsak otthonnak, hanem irodának vagy más üzleti tevékenység céljára is (pl. ügyvédi iroda, tanácsadó cég, rendelő stb.).


A lakás elosztása:
• tágas előszoba
• különálló konyha kamrával
• étkező
• világos, nagy nappali
• hálószoba saját, ~7 m²-es erkéllyel
• dolgozó- vagy vendégszoba
• fürdőszoba káddal és WC-vel (elektromos bidével kombinált)
• háztartási helyiség
• külön vendég WC


 


Műszaki jellemzők:
• műanyag nyílászárók redőnnyel és szúnyoghálóval
• fűtés és meleg víz ellátás gázkazánról, radiátoros hőleadással
• a nyári hónapokban a kellemes hőmérsékletről klíma gondoskodik
• korszerű elektromos hálózat (3×16 A)
• széles sávú T-Com internet kapcsolat kiépítve
•  riasztóval ellátott


 


Társasház:
• 2005-ben épült, tégla szerkezet
lifttel ellátott és akadálymentesített


 


Parkolási lehetőségek:
• közterületen fizetős övezetben, a lakóknak éves kedvezményes bérlet: 7.300 Ft/év


 


Befektetők figyelmébe:
A jelenlegi tulajdonos nyitott arra, hogy az ingatlant 2 évre visszabérelje, így biztos, hosszú távú bérlővel számolhat a vásárlást követően. Ez ideális lehetőség azok számára, akik azonnali hozamot keresnek megbízható bérlő mellett.


 


A környék előnyei:
A lakás elhelyezkedése rendkívül kedvező:
- a belváros szívében, minden szolgáltatás, bolt, kávézó és étterem könnyedén elérhető
- tömegközlekedés, iskolák, óvodák, egészségügyi intézmények a közelben
- kulturális és üzleti szempontból is központi elhelyezkedés
- a környék rendezett, kiváló a közbiztonság


 


Ez a lakás egy ritka lehetőség a piacon – legyen szó otthonteremtésről, vállalkozás indításáról vagy befektetésről, biztos alapokat kínál.

Térkép

A hirdető elérhetősége

STEF HOME

Schlaghammerné Nagy Kinga
+36 70 575