Eladó Lakás
Hirdetéskód: 9206973

-

51.00 m2
ALAPTERÜLET
3
SZOBASZÁM
Tégla
ÉPÍTÉS
Padlófűtés
FŰTÉS
  • Kilátás Udvari
  • Parkolási lehetőség Udvari beálló
  • Építés éve 2025
  • Fűtés Padlófűtés
  • Építőanyag Tégla
  • Erkély, terasz Erkély 5.00m2
  • Klíma igen
Energetikai besorolás: Nincs meghatározva
A+++
A++
A+
A
B
C
D
E
F
G
H
I

Az ingatlan leírása

Fedezze fel Székesfehérvár legújabb lakóparkját, amely a Szekfű Gyula utca és a Virág Benedek utca találkozásánál épül.
Ez a modern lakópark tökéletes választás mindazoknak, akik prémium lakásokat keresnek Székesfehérváron. A lakások magas minőséget képviselnek, energiatakarékos megoldásokkal és zöld környezetben találhatók.
Az elhelyezkedés ideális: a belváros könnyen elérhető, a Berényi út kiváló közlekedési kapcsolatokkal rendelkezik, így gyorsan eljuthat bárhova. Nézze meg eladó lakásainkat, és találja meg álmai otthonát Székesfehérváron.


 


INGATLANJAINK:


Földszint:
-A.0.0.: 36,29nm
-A.0.1.: 45,91nm + 5,40nm terasz
-A.0.2.: 45,62nm
-B.0.1.: 61,79nm
-B.0.2.: 56,53nm + kertkapcsolat


Első emelet:
-A.1.1.: 59,25nm + 3,60nm loggia
-A.1.2.: 40,66nm + 5,40nm erkély
-A.1.3.: 58,15nm + 3,60nm loggia
-B.1.1.: 60,14nm + 6,00 terasz
-B.1.2.: 46,64nm + 5,40nm erkély
-B.1.3.: 44,89nm + franciaerkély
-C.1.1.: 43,36nm + 5,40nm erkély
-C.1.2.: 51,52nm + 5,40nm erkély
-C.1.3.: 47,44nm + franciaerkély


Második emelet:
-A.2.1.: 51,19nm + 3,24nm + 14,96nm terasz
-A.2.2.: 60,39nm + 3,24nm + 15,73nm terasz
-B.2.1.: 53,85nm + 7,29nm + 12,02nm terasz
-B.2.2.: 61,68nm + 3,24nm + 22,71nm terasz
-C.2.1.: 68,91nm + 3,24nm + 25,55nm terasz


 


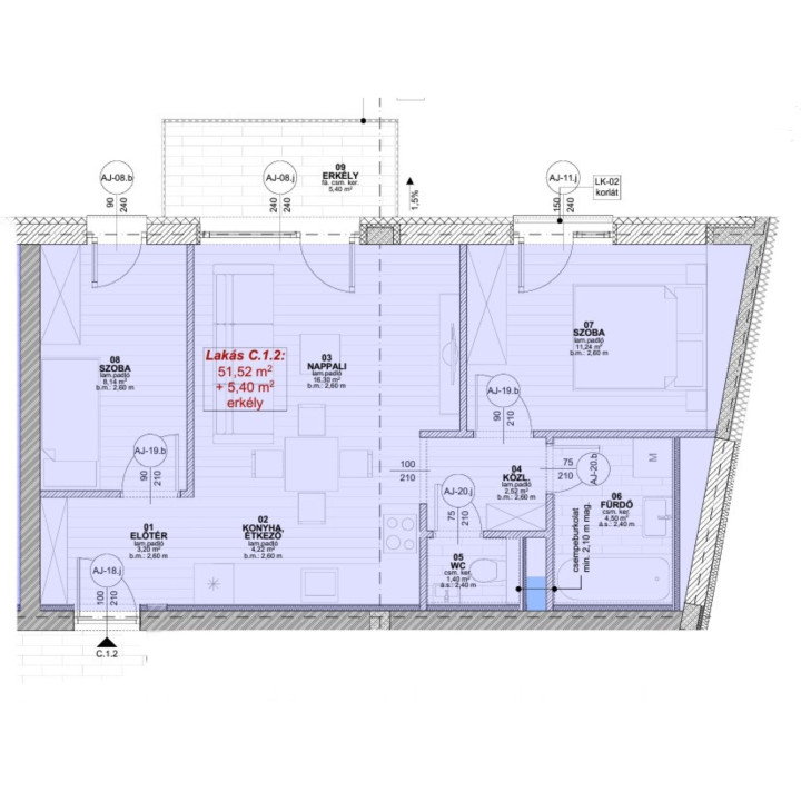
KIRÁLYKERT LAKÓPARKBAN A C.1.2. LAKÁS BEMUTATÁSA


Leírás


Ez a lakás egy modern ingatlan 51,52 m² hasznos alapterülettel, amely ideális választás családok vagy fiatal párok számára, akik értékelik a kényelmet és a funkcionális teret. A lakáshoz tartozik egy 5,40 m²-es erkély, amely lehetőséget biztosít a szabadtéri pihenésre és a szabadban eltöltött idő élvezetére. A lakás tökéletes választás azok számára, akik egy kényelmes otthont keresnek. A lakásba lépve egy félszoba fogad bennünket, mely alkalmas dolgozószobának, vendégszobának, gyermekszobának egyaránt. A lakás jól megtervezett nappalival, konyha-étkezővel és kényelmes hálószobával rendelkezik. A különálló fürdőszoba és WC további kényelmet kínál a lakók számára. A közlekedő könnyű hozzáférést biztosít a helyiségekhez. A laminált padló és a kerámia burkolatok révén a lakás esztétikus és könnyen karbantartható. Az erkély tökéletes helyszínt nyújt a relaxációhoz és a friss levegő élvezetéhez, különleges vonzereje, hogy egy csendes, zöld udvarra néz, amely tökéletes hely a kikapcsolódásra és a pihenésre. Itt élvezheti a friss levegőt és a természet közelségét anélkül, hogy elhagyná a lakása kényelmét. Az erkély ideális helyszín lehet a reggeli kávé elfogyasztására, vagy egy hosszú nap utáni lazításra. Ez a lakás kiváló választás azok számára, akik csendes és nyugodt környezetben szeretnének élni, miközben élvezik a modern elrendezés és a praktikus kialakítás előnyeit.


 


Helyiségek részletes leírása:


•Előtér (3,20 m²) – Laminált padlóval burkolt tágas előtér, amely barátságos bejáratot biztosít a lakásba.
•WC (1,40 m²) – Praktikus kerámia burkolatú mellékhelyiség, amely egyszerűen karbantartható.
•Fürdőszoba (4,50 m²) – Modern kerámia burkolatú fürdőszoba, amely minden szükséges kényelmet biztosít.
•Közlekedő (2,52 m²) – Laminált padlóval ellátott közlekedő, amely összeköti a lakás különböző helyiségeit.
•Konyha és étkező (4,22 m²) – Tágas, világos konyha-étkező laminált padlóval, ideális családi étkezésekhez és főzéshez.
•Nappali (16,30 m²) – Tágas nappali, amely kényelmes helyet biztosít a pihenéshez és a vendégek fogadásához.
•Szoba 1 (11,24 m²) – Kényelmes méretű hálószoba laminált padlóval, tökéletes a pihenéshez.
•Szoba 2 (8,14 m²) – Második hálószoba, szintén laminált padlóval, ideális gyermek vagy vendégszobának.
•Erkély (5,40 m²) – Fagyálló, csúszásmentes kerámia burkolattal ellátott erkély, ahol élvezheti a szabadban eltöltött időt.


 


Ez a legkisebb alapterületű lakásunk praktikus és jól átgondolt elrendezéssel várja új tulajdonosát. A lakásban található egy hálószoba, egy amerikai konyhás nappali, valamint egy félszoba, amelynek falát igény szerint el lehet hagyni, így egy tágasabb, világosabb amerikai konyhás nappali alakítható ki. Ez a rugalmasság lehetőséget ad arra, hogy a lakás a saját igényeid szerint formálható és személyre szabható legyen.


A lakás belső udvarra tájolt terasszal rendelkezik, amely nyugalmat, csendet és privát pihenőhelyet biztosít a városi élet közepén. A terasz ideális helyszín egy reggeli kávéhoz, egy esti olvasáshoz vagy egyszerűen a friss levegő élvezetéhez, miközben a belső udvar zöld környezete nyugalmat áraszt.


Ez a lakás tökéletes választás egyedülállóknak, pároknak vagy kisebb családoknak, akik praktikus, de igényesen kialakított otthont keresnek, ahol minden négyzetméter maximálisan kihasználható. A rugalmas elrendezésnek köszönhetően akár modern, tágas nappali-konyha is kialakítható, amely egyszerre szolgálja a komfortot és az esztétikát.


 


Tároló:


A lakásokhoz korlátozott számban tárolók vásárolhatók, amelyek nagyszerű lehetőséget kínálnak a további tárolási igények kielégítésére.


Ezek a tárolók ideálisak lehetnek a szezonális holmik, sportfelszerelések, vagy éppen a ritkábban használt tárgyak biztonságos és rendezett elhelyezésére.


A korlátozott mennyiség miatt érdemes mielőbb érdeklődni a rendelkezésre álló tárolóhelyekről, hogy biztosíthassa magának ezt a praktikus kiegészítést az új otthonához. A tárolók megvásárlása külön díj ellenében lehetséges, de a befektetés hosszú távon kényelmet és rendet biztosít az életterében.


 


Fedett/fedetlen beálló:


Lakásainkhoz különféle parkolási lehetőségeket kínálunk, hogy mindenki megtalálja a számára legmegfelelőbb megoldást. Korlátozott számban fedett beállók, fedetlen beállók állnak rendelkezésre, amelyek megvásárolhatók.


A fedett beállók védelmet nyújtanak az időjárási viszontagságok ellen, így autója mindig biztonságban van, legyen szó napsütésről, esőről vagy hóesésről. Ezek a beállók különösen praktikusak lehetnek a téli hónapokban, hiszen nem kell havat takarítania az autóról indulás előtt.


A fedetlen beállók egyszerű és kényelmes megoldást kínálnak, ideálisak lehetnek azok számára, akik nem igényelnek teljes fedést, de szeretnének biztos parkolóhelyet az otthonuk közelében. Ezek a beállók általában könnyen megközelíthetők és kényelmes parkolási lehetőséget biztosítanak.


Mivel a parkolóhelyek korlátozott számban érhetők el, érdemes mielőbb érdeklődni a rendelkezésre álló lehetőségekről, hogy biztosíthassa a számára legmegfelelőbb parkolási megoldást.


 


Az árváltoztatás jogát fenntartjuk. Áraink tájékoztató jellegűek. Szabad lakásaink után érdeklődjön.

Térkép

A hirdető elérhetősége

STEF HOME

Schlaghammerné Nagy Kinga
+36 70 575