Eladó Lakás
Hirdetéskód: 9304156
Openhouse Székesfehérvár Ingatlaniroda
Felújításhoz személyi kölcsönt keres? Kalkuláljon itt! →49.00 m2
ALAPTERÜLET2
SZOBASZÁMnincs megadva
ÉPÍTÉSHázközponti fűtés egyedi méréssel
FŰTÉS- CSOK igénybe vehető nem
- Tetőtér beépíthető nem
- Építés éve 2027
- Fűtés Házközponti fűtés egyedi méréssel
- Klíma nem
- Szigetelt nem
A+++
A++
A+
A
B
C
D
E
F
G
H
I
Az ingatlan leírása
Az Openhouse Székesfehérvár Ingatlaniroda kínálatában eladó a #179954 hivatkozási számú székesfehérvári társasházi lakás.
A beruházás Székesfehérvár belvárosának szívében, az Alba Pláza közvetlen szomszédságában épül, kiváló közlekedési és szolgáltatási adottságokkal. Elhelyezkedése ideális mind lakófunkció, mind üzleti hasznosítás szempontjából.
A földszint + négy szintes, magastetős épület impozáns, mégis visszafogott megjelenésével harmonikusan illeszkedik a belvárosi környezetbe. Időtálló összhatását a gondosan megválasztott, minőségi anyaghasználat biztosítja. A földszinten 5 üzlethelyiség, valamint 29 férőhelyes fedett garázs kap helyet. Az emeleteken kialakított lakások mindegyikéhez erkély vagy terasz tartozik. Az épület két tömbre tagolódik, amelyek között zöld belső kert jön létre, mindkét tömb korszerű lifttel ellátott.
A kulcsrakész otthonok felsőkategóriás műszaki tartalommal, prémium anyagok felhasználásával készülnek, hosszú távon is értékálló, kényelmes életteret kínálva. Projekt befejezése 2027. június
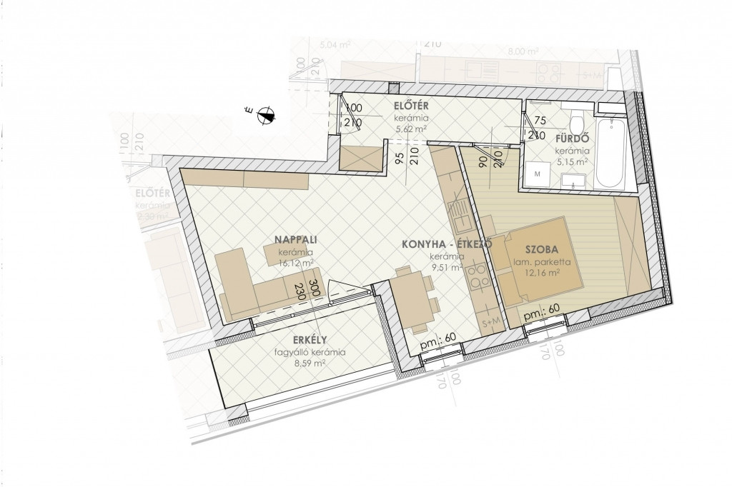
Hirdetésben szereplő A33-as lakás nettó 48.56 m2, hozzá tartozó erkély 8.59 m2. Nappali-konyha-étkező, egy hálószoba, fürdőszoba elosztású.
házközponti fűtés, padlófűtés, mennyezet hűtés, egyedi mérővel
klíma előkészítés
törölközőszárító radiátor
minőségi anyagok felhasználása
felsőkategóriás belsőépítészeti kialakítás
nyílászárók 3 rétegű üveggel, motoros redőnyök
választható hideg- és melegburkolat
CPL fóliás beltéri ajtó választható színben
Ha felkeltette érdeklődését ez az eladó székesfehérvári társasházi lakás, vagy bármely más társasházi lakás és bővebb információt szeretne, keressen bizalommal.Hivatkozási szám: #179954
Az Openhouse Székesfehérvár Ingatlaniroda tagjaként várom Önt az országos hálózatunk teljes kínálatával.
A társasházi lakás vásárláshoz hitelt igényelne? Ingyenes hitelközvetítéssel segít Önnek bankfüggetlen hitelszakértőnk.
További szolgáltatásainkkal (pl. értékbecslés, energetikai tanúsítvány, jogi háttér) is segítjük Önt a vásárlásban.
Az otthon érték. Az ingatlan üzlet.
A beruházás Székesfehérvár belvárosának szívében, az Alba Pláza közvetlen szomszédságában épül, kiváló közlekedési és szolgáltatási adottságokkal. Elhelyezkedése ideális mind lakófunkció, mind üzleti hasznosítás szempontjából.
A földszint + négy szintes, magastetős épület impozáns, mégis visszafogott megjelenésével harmonikusan illeszkedik a belvárosi környezetbe. Időtálló összhatását a gondosan megválasztott, minőségi anyaghasználat biztosítja. A földszinten 5 üzlethelyiség, valamint 29 férőhelyes fedett garázs kap helyet. Az emeleteken kialakított lakások mindegyikéhez erkély vagy terasz tartozik. Az épület két tömbre tagolódik, amelyek között zöld belső kert jön létre, mindkét tömb korszerű lifttel ellátott.
A kulcsrakész otthonok felsőkategóriás műszaki tartalommal, prémium anyagok felhasználásával készülnek, hosszú távon is értékálló, kényelmes életteret kínálva. Projekt befejezése 2027. június
Hirdetésben szereplő A33-as lakás nettó 48.56 m2, hozzá tartozó erkély 8.59 m2. Nappali-konyha-étkező, egy hálószoba, fürdőszoba elosztású.
házközponti fűtés, padlófűtés, mennyezet hűtés, egyedi mérővel
klíma előkészítés
törölközőszárító radiátor
minőségi anyagok felhasználása
felsőkategóriás belsőépítészeti kialakítás
nyílászárók 3 rétegű üveggel, motoros redőnyök
választható hideg- és melegburkolat
CPL fóliás beltéri ajtó választható színben
Ha felkeltette érdeklődését ez az eladó székesfehérvári társasházi lakás, vagy bármely más társasházi lakás és bővebb információt szeretne, keressen bizalommal.Hivatkozási szám: #179954
Az Openhouse Székesfehérvár Ingatlaniroda tagjaként várom Önt az országos hálózatunk teljes kínálatával.
A társasházi lakás vásárláshoz hitelt igényelne? Ingyenes hitelközvetítéssel segít Önnek bankfüggetlen hitelszakértőnk.
További szolgáltatásainkkal (pl. értékbecslés, energetikai tanúsítvány, jogi háttér) is segítjük Önt a vásárlásban.
Az otthon érték. Az ingatlan üzlet.