Eladó Lakás
Hirdetéskód: 9284056
OTP Ingatlanpont - Budapest IX. ker., Üllői út 21.
Felújításhoz személyi kölcsönt keres? Kalkuláljon itt! →65.00 m2
ALAPTERÜLET3
SZOBASZÁMnincs megadva
ÉPÍTÉSnincs megadva
FŰTÉS- CSOK igénybe vehető nem
- Tetőtér beépíthető nem
- Építés éve 2024
- Klíma nem
- Szigetelt nem
A+++
A++
A+
A
B
C
D
E
F
G
H
I
Az ingatlan leírása
Új építésű, napfényes otthon Székesfehérváron – csend, modern technológia, értékállóság
Székesfehérvár belvárosának közelében, mégis nyugodt környezetben kínálok megvételre egy 2024 októberében átadott, új építésű lakást, amely a modern otthon minden előnyét magában hordozza.
Az ingatlan a társasház hátsó, udvari részén helyezkedik el, így az utcazaj teljes mértékben kizárható. A déli fekvésnek köszönhetően a terek egész nap világosak, napfényben úszók – a természetes fény itt nem csupán adottság, hanem az élettér egyik meghatározó eleme.
Átgondolt elrendezés, élhető terek
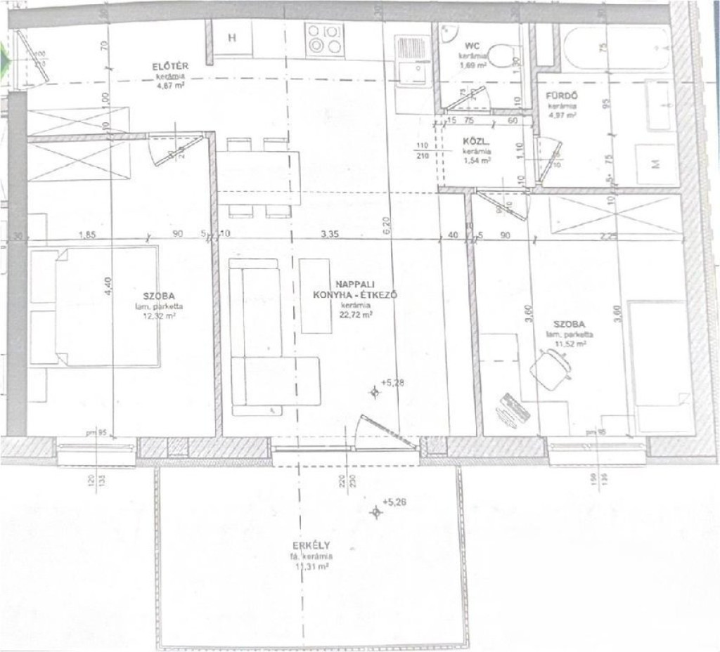
A 66,5 m²-es alapterület 60 m² lakóteret és egy tágas, 11,3 m²-es teraszt foglal magában, amely kiváló helyszíne lehet reggeli kávéknak vagy esti pihenésnek.
Helyiségek:
Amerikai konyhás nappali
Két külön nyíló hálószoba
Előszoba
Tágas fürdőszoba
Különálló WC
Az alaprajz praktikus, jól bútorozható, ideális akár családnak, akár párnak, de befektetésként is kiváló választás.
Korszerű gépészet, alacsony fenntartás
A lakás műszaki tartalma megfelel egy energiatakarékos, modern otthonnal szemben támasztott elvárásoknak.
Hőszivattyús rendszer biztosítja a fűtést és hűtést
Padlófűtés a maximális komfort érdekében
Alacsony fenntartási költségek
A vételár tartalmaz egy saját felszíni parkolóhelyet, amely árnyékos elhelyezkedésű, lefedése pedig már a társasház jövőbeni tervei között szerepel.
Igény esetén megvásárolható egy külön helyrajzi számon nyilvántartott, 3 m²-es tároló, amely praktikus kiegészítője lehet a lakásnak.
Elhelyezkedés és értékállóság
A belváros közelsége biztosítja, hogy minden fontos szolgáltatás – üzletek, intézmények, közlekedés – néhány perces sétával elérhető legyen.
A lokáció és a modern műszaki tartalom együtt olyan kombinációt alkot, amely hosszú távon is értékálló befektetéssé teszi az ingatlant. Kiváló adottságai miatt könnyen és gyorsan kiadható.
Ez a lakás azoknak szól, akik új építésű, napfényes, csendes otthont keresnek Székesfehérvár egyik legkedveltebb részén – kompromisszumok nélkül.
Amennyiben szeretné személyesen is megtapasztalni a tér hangulatát és a modern otthon kényelmét, várom megtisztelő hívását.
Az OTP Ingatlanpont teljes körű, díjmentes ügyintézést biztosít, a finanszírozás előkészítésétől az adásvétel lebonyolításáig, kedvezményes hitellehetőségekkel.
Székesfehérvár belvárosának közelében, mégis nyugodt környezetben kínálok megvételre egy 2024 októberében átadott, új építésű lakást, amely a modern otthon minden előnyét magában hordozza.
Az ingatlan a társasház hátsó, udvari részén helyezkedik el, így az utcazaj teljes mértékben kizárható. A déli fekvésnek köszönhetően a terek egész nap világosak, napfényben úszók – a természetes fény itt nem csupán adottság, hanem az élettér egyik meghatározó eleme.
Átgondolt elrendezés, élhető terek
A 66,5 m²-es alapterület 60 m² lakóteret és egy tágas, 11,3 m²-es teraszt foglal magában, amely kiváló helyszíne lehet reggeli kávéknak vagy esti pihenésnek.
Helyiségek:
Amerikai konyhás nappali
Két külön nyíló hálószoba
Előszoba
Tágas fürdőszoba
Különálló WC
Az alaprajz praktikus, jól bútorozható, ideális akár családnak, akár párnak, de befektetésként is kiváló választás.
Korszerű gépészet, alacsony fenntartás
A lakás műszaki tartalma megfelel egy energiatakarékos, modern otthonnal szemben támasztott elvárásoknak.
Hőszivattyús rendszer biztosítja a fűtést és hűtést
Padlófűtés a maximális komfort érdekében
Alacsony fenntartási költségek
A vételár tartalmaz egy saját felszíni parkolóhelyet, amely árnyékos elhelyezkedésű, lefedése pedig már a társasház jövőbeni tervei között szerepel.
Igény esetén megvásárolható egy külön helyrajzi számon nyilvántartott, 3 m²-es tároló, amely praktikus kiegészítője lehet a lakásnak.
Elhelyezkedés és értékállóság
A belváros közelsége biztosítja, hogy minden fontos szolgáltatás – üzletek, intézmények, közlekedés – néhány perces sétával elérhető legyen.
A lokáció és a modern műszaki tartalom együtt olyan kombinációt alkot, amely hosszú távon is értékálló befektetéssé teszi az ingatlant. Kiváló adottságai miatt könnyen és gyorsan kiadható.
Ez a lakás azoknak szól, akik új építésű, napfényes, csendes otthont keresnek Székesfehérvár egyik legkedveltebb részén – kompromisszumok nélkül.
Amennyiben szeretné személyesen is megtapasztalni a tér hangulatát és a modern otthon kényelmét, várom megtisztelő hívását.
Az OTP Ingatlanpont teljes körű, díjmentes ügyintézést biztosít, a finanszírozás előkészítésétől az adásvétel lebonyolításáig, kedvezményes hitellehetőségekkel.