Eladó Lakás
Hirdetéskód: 9214129

Györe-Pereczes János

Felújításhoz személyi kölcsönt keres? Kalkuláljon itt! →
FIX 3% Program

Ez a hirdetés megfelelhet a FIX 3%-os programnak.
Tudj meg többet a részletekről itt.

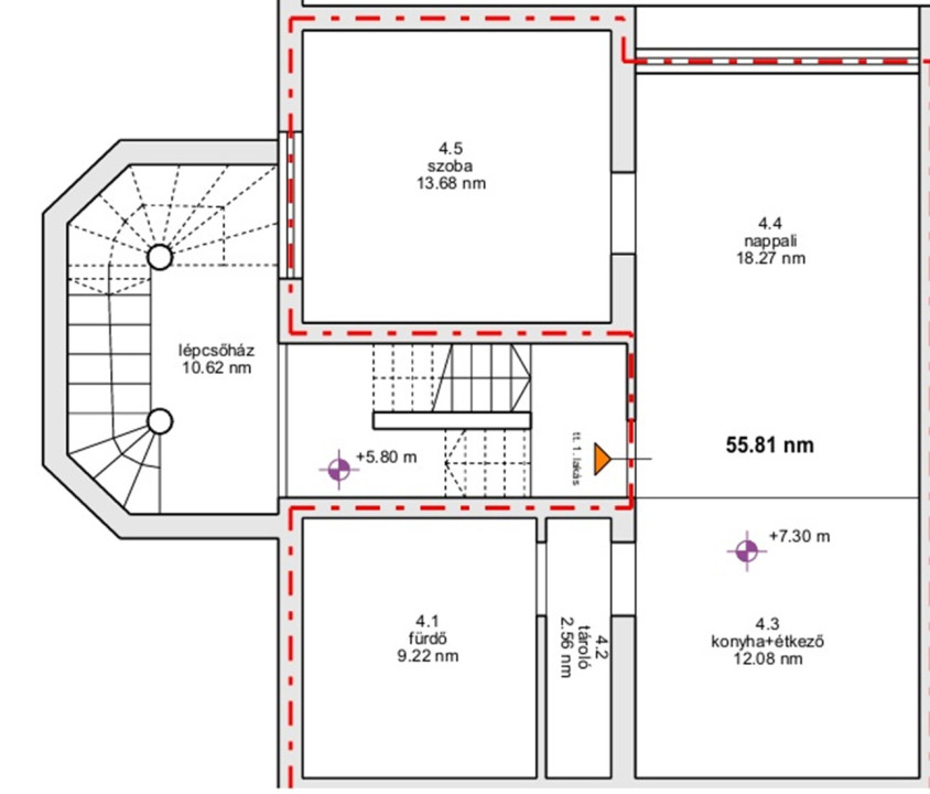
55.00 m2
ALAPTERÜLET
2
SZOBASZÁM
Tégla
ÉPÍTÉS
Elektromos
FŰTÉS
  • CSOK igénybe vehető igen
  • Kilátás Udvari
  • Tájolás Délnyugat
  • Ingatlan komfort Összkomfortos
  • Parkolási lehetőség Udvari beálló
  • Építés éve 2017
  • Fűtés Elektromos
  • Építőanyag Tégla
  • Klíma igen
  • Szigetelt igen
  • Akadálymentesített nem
Energetikai besorolás: Nincs meghatározva
A+++
A++
A+
A
B
C
D
E
F
G
H
I

Az MBH Bank személyi kölcsön ajánlata

Fizetett hirdetés
1 millió Ft
6 évre
20 585 Ft/hó
THM: 14.5%
Részletek →
2 millió Ft
6 évre
41 169 Ft/hó
THM: 14.5%
Részletek →
3 millió Ft
6 évre
61 754 Ft/hó
THM: 14.5%
Részletek →

A tájékoztatás nem teljes körű és nem minősül ajánlattételnek.

Az ingatlan leírása


Eladó Tégla Lakás Székesfehérváron, Öreghegyen – FIATALOS, MODERN OTTHON!

Ár: 52 900 000 Ft

Alapterület: 55 m2
Szobák száma: 2
Emelet: 2.

Székesfehérvár közkedvelt részén, Öreghegy városrészben kínálunk eladásra egy fiatalos, modern és tágas, 55 m2-es téglaépítésű lakást 2 szobával. A lakás jelenlegi állapota 2017-ben került kialakításra, teljes felújítás során 10 cm-es homlokzati szigetelést kapott, műanyag, kétrétegű nyílászárók és újszerű bejárati ajtó található benne.

A tágas, világos helyiségek kellemes otthonosságot sugallnak. A hálószobában hatalmas beépített gardrób segíti a kényelmes tárolást. A lakás fürdője kádas, de a zuhanyzókabin infrastruktúrája is kialakításra került, így igény esetén könnyen kiépíthető. Előterében saját, kizárólagos használatú tároló is helyet kapott, amely igény esetén teljesen leválasztható a lépcsőháztól.

Az otthon melegéről norvég paneles fűtés gondoskodik, emellett hűtő-fűtő klíma is rendelkezésre áll a nyári melegben. Az ingatlan csendes, saját telekrészén motoros kapuval parkolóként kihasználható terület áll rendelkezésre.

Kitűnő infrastruktúra!
Buszmegálló, posta, orvosi rendelő, gyógyszertár, élelmiszerbolt, sportolási lehetőség, óvoda és játszótér mind néhány perc sétával elérhetőek.

Fiatal párnak, kis családnak vagy akár befektetési célra is ideális választás!


Hitel bevonásával vásárolna? Van rá lehetőség, az ingatlan 10% önerőtől vásárolható. Díjmentes hitelügyintézéssel, személyi bankárunk bankfüggetlen ajánlatokkal áll vevőink rendelkezésére, hitelét akár otthonából kényelmesen intézheti!

A lakás megfelel az Otthon Start Program feltételeinek.
Családosok számára CSOK+ igényelhető.

Köszönjük, hogy elolvasta hirdetésünket!

Amennyiben szeretné közelebbről is megismerni az ingatlant, készséggel állunk rendelkezésére részletes információkkal és helyszíni bemutatóval.

Tegye meg az első lépést új otthona felé – várjuk hívását!


Térkép

A hirdető elérhetősége

Mag-Ház Ingatlan

Györe-Pereczes János
+36 30 890