Eladó Lakás
Hirdetéskód: 9328427
Velence Tópart utca 47 - OTP Ingatlanpont Iroda
Felújításhoz személyi kölcsönt keres? Kalkuláljon itt! →65.00 m2
ALAPTERÜLET3
SZOBASZÁMnincs megadva
ÉPÍTÉSEgyéb fűtés
FŰTÉS- CSOK igénybe vehető nem
- Tetőtér beépíthető nem
- Építés éve 2024
- Fűtés Egyéb fűtés
- Klíma nem
- Szigetelt nem
A+++
A++
A+
A
B
C
D
E
F
G
H
I
Az ingatlan leírása
Székesfehérváron, a belváros közelében eladó egy 2024 októberében átadott, új építésű lakás. Az ingatlan a társasház hátsó, udvari részén található, ezért kifejezetten csendes és az utcazajtól mentes. Déli fekvésének köszönhetően a terek naposak, kifejezetten világosak.
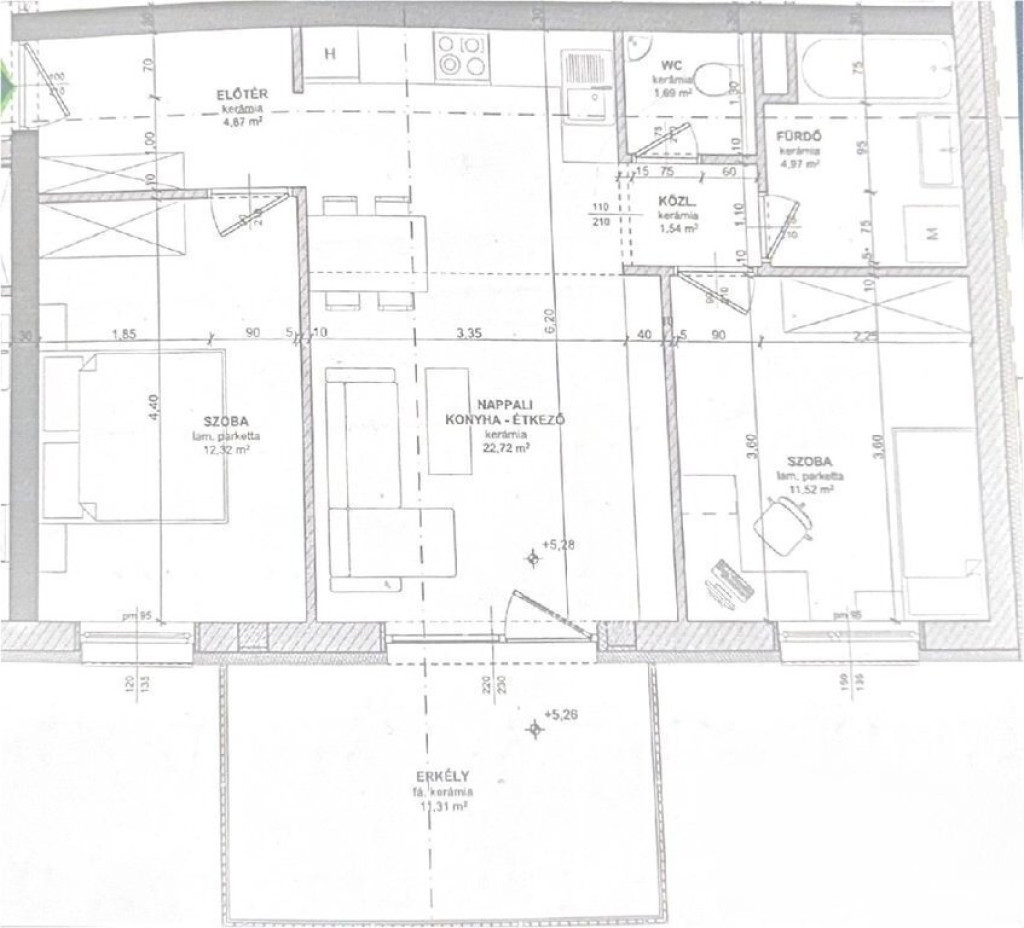
A 66,5 nm-es alapterület 60 nm lakóteret és egy 11,3 nm-es teraszt foglal magában. A lakás elosztása praktikus: amerikai konyhás nappali, két különnyíló hálószoba, előszoba, tágas fürdő és egy különálló WC található.
A gépészet kiváló. A fűtést és hűtést korszerű hőszivattyús rendszer biztosítja, padlófűtéssel. A fenntartási költség alacsony, a műszaki tartalom megfelel egy új építésű, energiatakarékos otthonnal szemben támasztott elvárásoknak. A vételár részét képezi egy saját felszíni parkoló. A beálló árnyékos helyen van, de a lefedése már a társasház tervei között szerepel. A lakáshoz opcionálisan egy külön helyrajzi számon nyilvántartott, 3 nm-es tároló is vásárolható.
A környéken minden fontos szolgáltatás pár perces sétával elérhető. A lokáció és a modern felszereltség miatt a lakás befektetésnek is jó és értékálló választás, hiszen adottságainak köszönhetően könnyen kiadható.
Az OTP Ingatlanpont teljes körű, díjmentes ügyintézést biztosít, a finanszírozás előkészítésétől az adásvétel lebonyolításáig, kedvezményes hitellehetőségekkel.
104000000 Ft
A 66,5 nm-es alapterület 60 nm lakóteret és egy 11,3 nm-es teraszt foglal magában. A lakás elosztása praktikus: amerikai konyhás nappali, két különnyíló hálószoba, előszoba, tágas fürdő és egy különálló WC található.
A gépészet kiváló. A fűtést és hűtést korszerű hőszivattyús rendszer biztosítja, padlófűtéssel. A fenntartási költség alacsony, a műszaki tartalom megfelel egy új építésű, energiatakarékos otthonnal szemben támasztott elvárásoknak. A vételár részét képezi egy saját felszíni parkoló. A beálló árnyékos helyen van, de a lefedése már a társasház tervei között szerepel. A lakáshoz opcionálisan egy külön helyrajzi számon nyilvántartott, 3 nm-es tároló is vásárolható.
A környéken minden fontos szolgáltatás pár perces sétával elérhető. A lokáció és a modern felszereltség miatt a lakás befektetésnek is jó és értékálló választás, hiszen adottságainak köszönhetően könnyen kiadható.
Az OTP Ingatlanpont teljes körű, díjmentes ügyintézést biztosít, a finanszírozás előkészítésétől az adásvétel lebonyolításáig, kedvezményes hitellehetőségekkel.
104000000 Ft