Eladó Lakás
Hirdetéskód: 9247072
OTP Ingatlanpont Csongrád
72.00 m2
ALAPTERÜLET2
SZOBASZÁMnincs megadva
ÉPÍTÉSnincs megadva
FŰTÉS- CSOK igénybe vehető nem
- Tetőtér beépíthető nem
- Építés éve 1970
- Klíma nem
- Szigetelt nem
A+++
A++
A+
A
B
C
D
E
F
G
H
I
Az ingatlan leírása
****Tágas, erkélyes családi otthon Szeged-Tarjánban ! Panelprogramos házban, kiváló elhelyezkedéssel!****
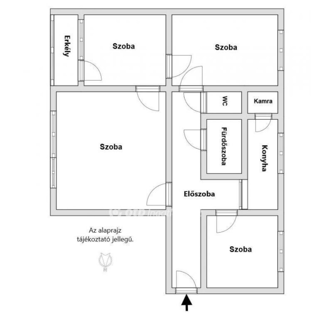
Csongrád-Csanád vármegye, Szeged egyik legkedveltebb városrészében, Tarjánban kínálom megvételre ezt a 68+4 m2-es, kihelyezett előteres, negyedik emeleti panellakást, amely a panelprogram keretében korszerűsített, hőszigetelt épületben található.
A lakás elosztása ideális: 2 teljes értékű szoba és 2 félszoba gondoskodik a kényelmes élettérről, míg a napfényes helyiségek és az erkély otthonos hangulatot teremtenek. Az otthon melegét és a költséghatékonyságot egyedi mérőórás távfűtés biztosítja, amely a korszerűsítésnek köszönhetően gazdaságos és komfortos megoldás.
A környék infrastruktúrája kiváló: a közelben iskola, óvoda, játszótér, fitnesz park, élelmiszer üzletláncok és gyógyszertár is megtalálható, így minden fontos szolgáltatás könnyen elérhető.
A közlekedés szempontjából is elsőrangú a lokáció, hiszen troli, busz és villamos is néhány perc sétára elérhető, így a belváros gyorsan és kényelmesen megközelíthető.
Ha egy modern, energiatakarékos, remek elosztású otthont keres, ne hagyja ki ezt a lehetőséget!
Az ingatlan kiváló lehetőség befektetésnek, valamint több fős családok számára egyaránt. Az ingatlan megvásárlásához babaváró, CSOK és kedvezményes hitel igényelhető, melynek teljeskörű ügyintézésében szakszerű segítséget nyújtunk a leendő vevők számára.
Csongrád-Csanád vármegye, Szeged egyik legkedveltebb városrészében, Tarjánban kínálom megvételre ezt a 68+4 m2-es, kihelyezett előteres, negyedik emeleti panellakást, amely a panelprogram keretében korszerűsített, hőszigetelt épületben található.
A lakás elosztása ideális: 2 teljes értékű szoba és 2 félszoba gondoskodik a kényelmes élettérről, míg a napfényes helyiségek és az erkély otthonos hangulatot teremtenek. Az otthon melegét és a költséghatékonyságot egyedi mérőórás távfűtés biztosítja, amely a korszerűsítésnek köszönhetően gazdaságos és komfortos megoldás.
A környék infrastruktúrája kiváló: a közelben iskola, óvoda, játszótér, fitnesz park, élelmiszer üzletláncok és gyógyszertár is megtalálható, így minden fontos szolgáltatás könnyen elérhető.
A közlekedés szempontjából is elsőrangú a lokáció, hiszen troli, busz és villamos is néhány perc sétára elérhető, így a belváros gyorsan és kényelmesen megközelíthető.
Ha egy modern, energiatakarékos, remek elosztású otthont keres, ne hagyja ki ezt a lehetőséget!
Az ingatlan kiváló lehetőség befektetésnek, valamint több fős családok számára egyaránt. Az ingatlan megvásárlásához babaváró, CSOK és kedvezményes hitel igényelhető, melynek teljeskörű ügyintézésében szakszerű segítséget nyújtunk a leendő vevők számára.