Eladó Lakás
Hirdetéskód: 9321505
KAM Home Consulting
Felújításhoz személyi kölcsönt keres? Kalkuláljon itt! →
Ez a hirdetés megfelelhet a FIX 3%-os programnak.
Tudj meg többet a részletekről itt.
52.00 m2
ALAPTERÜLET2
SZOBASZÁMPanel
ÉPÍTÉSTávfűtés
FŰTÉS- CSOK igénybe vehető nem
- Belső szintek 10
- Tetőtér beépíthető nem
- Kilátás Panorámás
- Ingatlan komfort Összkomfortos
- Parkolási lehetőség Utcán, közterületen
- Építés éve 1970
- Fűtés Távfűtés
- Építőanyag Panel
- Klíma nem
- Szigetelt nem
A+++
A++
A+
A
B
C
D
E
F
G
H
I
Az ingatlan leírása
Hivatkozási szám: VertoiPanel
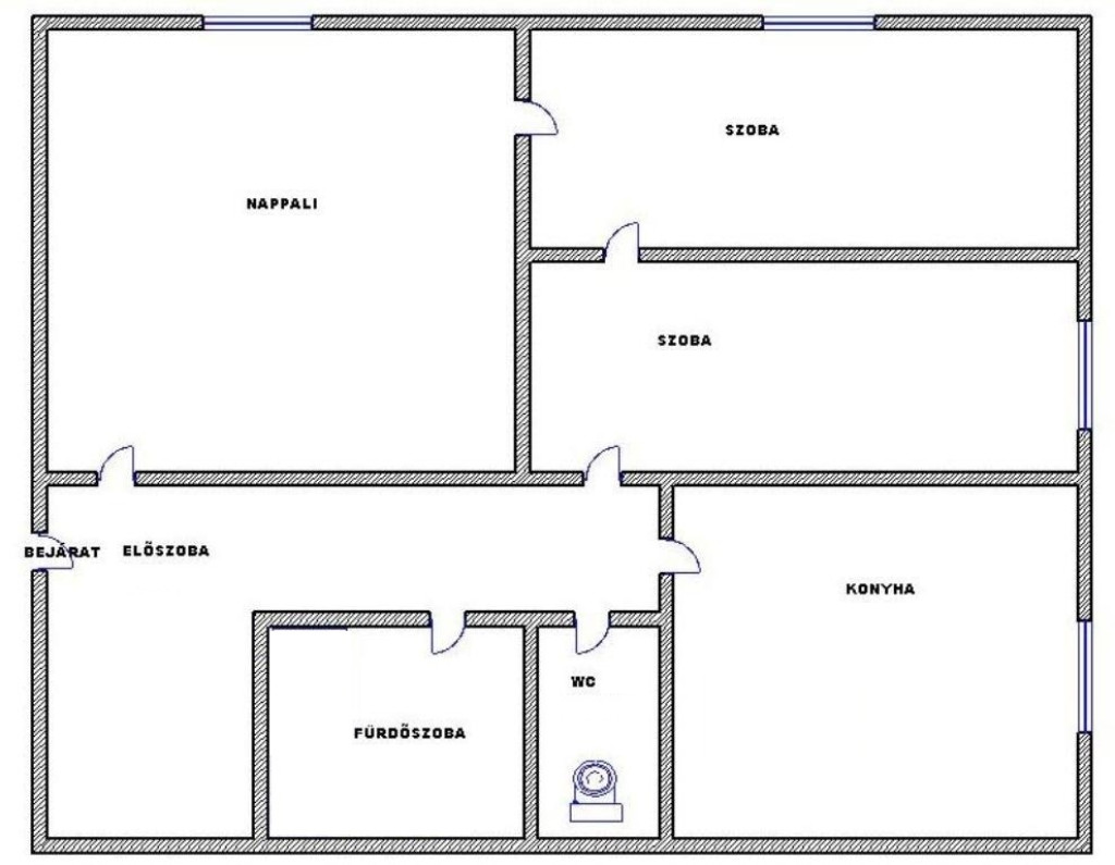
Szegeden, a Vértói úton kínálok megvételre egy 52 nm-es, 1+2 szobás panel lakást egy 10 emeletes, liftes, szigetelt épület 4. emeletén.
A lakás elosztása praktikus: nappali + 2 külön nyíló hálószoba, konyha, előszoba beépített szekrényekkel, kádas fürdőszoba és külön WC. A szobák körbejárhatók, ami jól alakítható életteret biztosít. Az ablakok zöldre, parkos környezetre néznek, így a lakás világos és kellemes hangulatú.
Az ingatlan műszaki állapota: az épület szigetelt, a nyílászárók már korszerűek és cserélve lettek, ugyanakkor a lakás belső tere eredeti állapotú, teljes körű felújítást igényel. Ez kiváló lehetőséget ad arra, hogy az új tulajdonos saját ízlésére formálja.
Fűtése radiátoros távfűtés, fenntartási költsége kedvező. A lépcsőház rendezett, felújított, újraburkolt és festett, a lakóközösség kulturált.
Ajánlom befektetőknek, akik jól ki/átalakítható ingatlant keresnek, illetve mindazoknak, akik teljes felújításban gondolkodnak, és saját elképzeléseik szerint szeretnék kialakítani otthonukat egy jó elhelyezkedésű lakásban.
Érdeklődés esetén keressen bizalommal!
_
Muráti Kamilló
KAM Home Consulting
Ingatlanban otthon!
Ha kérdései merülnének fel az ingatlannal kapcsolatban, érdeklődjön a megadott telefonszámon, e-mailen!
KAM Home Consulting HITEL és BIZTOSÍTÁSI ajánlataiért, részletekért és díjmentes kalkulációkért keresse hitel és biztosítási szakértő munkatársunkat!
Kizárólag biztonságos bankokkal dolgozunk!
INGATLANBAN, OTTHON!
Szegeden, a Vértói úton kínálok megvételre egy 52 nm-es, 1+2 szobás panel lakást egy 10 emeletes, liftes, szigetelt épület 4. emeletén.
A lakás elosztása praktikus: nappali + 2 külön nyíló hálószoba, konyha, előszoba beépített szekrényekkel, kádas fürdőszoba és külön WC. A szobák körbejárhatók, ami jól alakítható életteret biztosít. Az ablakok zöldre, parkos környezetre néznek, így a lakás világos és kellemes hangulatú.
Az ingatlan műszaki állapota: az épület szigetelt, a nyílászárók már korszerűek és cserélve lettek, ugyanakkor a lakás belső tere eredeti állapotú, teljes körű felújítást igényel. Ez kiváló lehetőséget ad arra, hogy az új tulajdonos saját ízlésére formálja.
Fűtése radiátoros távfűtés, fenntartási költsége kedvező. A lépcsőház rendezett, felújított, újraburkolt és festett, a lakóközösség kulturált.
Ajánlom befektetőknek, akik jól ki/átalakítható ingatlant keresnek, illetve mindazoknak, akik teljes felújításban gondolkodnak, és saját elképzeléseik szerint szeretnék kialakítani otthonukat egy jó elhelyezkedésű lakásban.
Érdeklődés esetén keressen bizalommal!
_
Muráti Kamilló
KAM Home Consulting
Ingatlanban otthon!
Ha kérdései merülnének fel az ingatlannal kapcsolatban, érdeklődjön a megadott telefonszámon, e-mailen!
KAM Home Consulting HITEL és BIZTOSÍTÁSI ajánlataiért, részletekért és díjmentes kalkulációkért keresse hitel és biztosítási szakértő munkatársunkat!
Kizárólag biztonságos bankokkal dolgozunk!
INGATLANBAN, OTTHON!