Eladó Lakás
Hirdetéskód: 9247043

OTP Ingatlanpont Csongrád

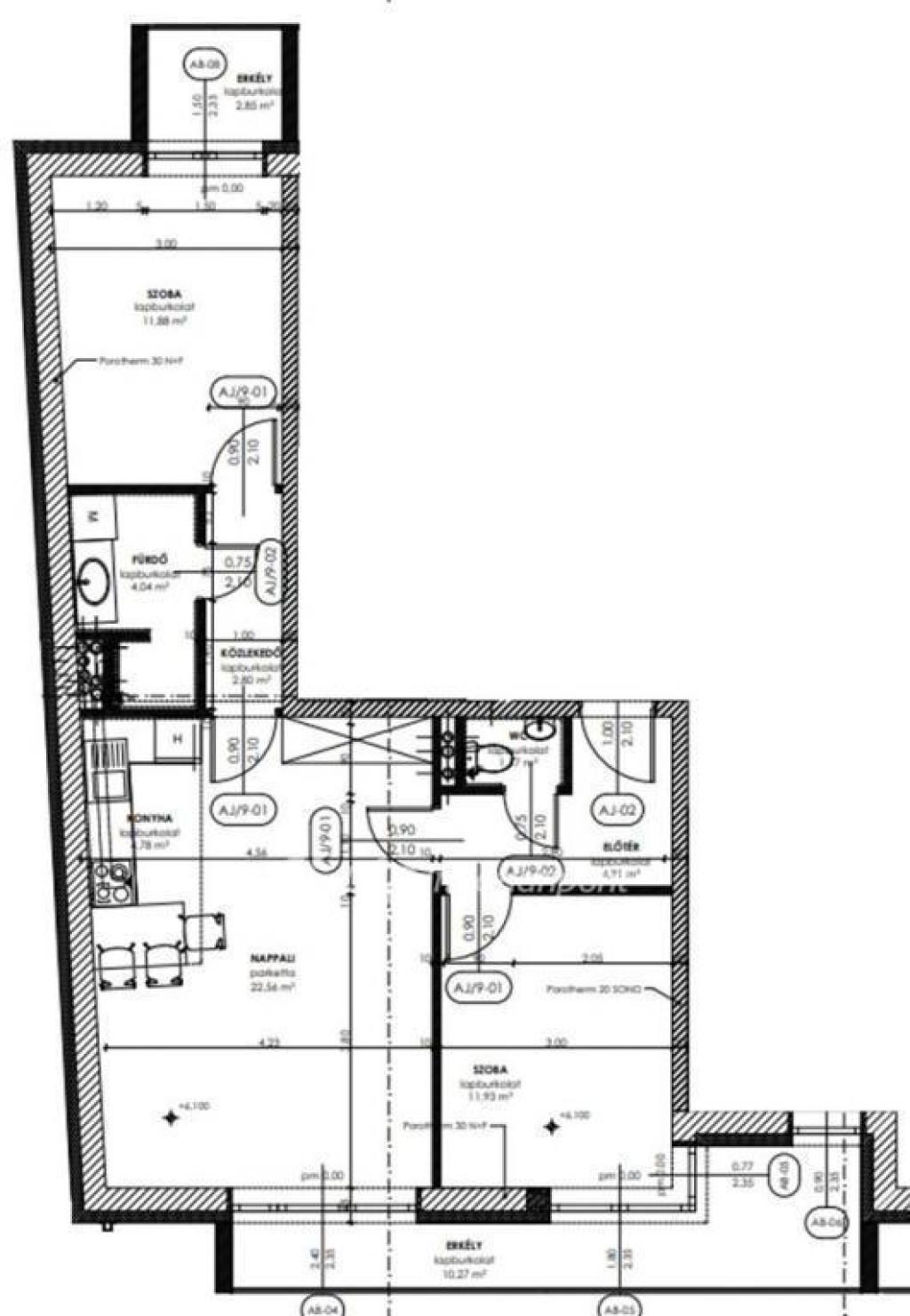
70.00 m2
ALAPTERÜLET
3
SZOBASZÁM
nincs megadva
ÉPÍTÉS
nincs megadva
FŰTÉS
  • CSOK igénybe vehető nem
  • Tetőtér beépíthető nem
  • Építés éve 2027
  • Klíma nem
  • Szigetelt nem
Energetikai besorolás: Nincs meghatározva
A+++
A++
A+
A
B
C
D
E
F
G
H
I

Az ingatlan leírása

Szeged, Móraváros, 70,73 m2-es, 3 szobás, 2. emeleti, újépítésű téglalakás, tulajdonos-kivitelezőtől, 20% kezdő befizetéssel eladó. A kulcsrakész átadás tervezett időpontja: 2027.06.30. A lakásban amerikai konyhás nappali, 2 szoba, fürdőszoba, wc és erkély található. A szobák laminált parketta-, a többi helyiség járólap burkolatot kapnak. Az otthon melegét hőszivattyús fűtés biztosítja. A lakáshoz opcionálisan, udvari beálló, vagy garázs is vásárolható. A TIK, egyetemi épületek, klinikák és tömegközlekedési megállók mindössze pár perc sétára találhatók, ezért rendkívül kedvező lehetőség lehet, befektetők és diákok számára is. Az ingatlan megvásárlásához kedvező hitel is igényelhető, melynek intézéséhez szakszerű segítség áll a leendő vásárló rendelkezésére.

Térkép

A hirdető elérhetősége

OTP Ingatlanpont Csongrád

Fekete Vivien
+36 30 401