Eladó Lakás
Hirdetéskód: 9247997

OTP Ingatlanpont Csongrád

Felújításhoz személyi kölcsönt keres? Kalkuláljon itt! →
FIX 3% Program

Ez a hirdetés megfelelhet a FIX 3%-os programnak.
Tudj meg többet a részletekről itt.

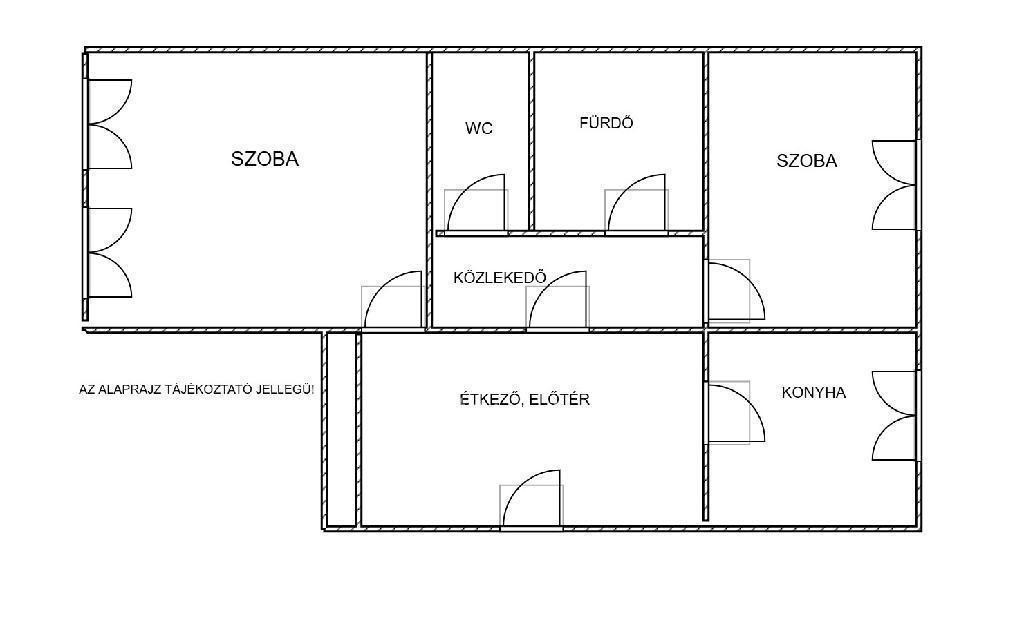
53.00 m2
ALAPTERÜLET
2
SZOBASZÁM
nincs megadva
ÉPÍTÉS
Távfűtés
FŰTÉS
  • CSOK igénybe vehető nem
  • Tetőtér beépíthető nem
  • Építés éve 1985
  • Fűtés Távfűtés
  • Klíma nem
  • Szigetelt nem
Energetikai besorolás: Nincs meghatározva
A+++
A++
A+
A
B
C
D
E
F
G
H
I

Az MBH Bank személyi kölcsön ajánlata

Fizetett hirdetés
1 millió Ft
6 évre
20 585 Ft/hó
THM: 14.5%
Részletek →
2 millió Ft
6 évre
41 169 Ft/hó
THM: 14.5%
Részletek →
3 millió Ft
6 évre
61 754 Ft/hó
THM: 14.5%
Részletek →

A tájékoztatás nem teljes körű és nem minősül ajánlattételnek.

Az ingatlan leírása

Szeged, Felsővárosi 1. emeleti, 2 szoba+étkezős lakás eladó! A lakás közel a belvároshoz, a Tisza-part környékén, cseréptetős házban található, kiváló közlekedéssel, két külön nyíló szobával és étkezővel! A ház panelprogramos, hőszigetelt, nyílászárók cseréje megtörtént. Belsőlegesen némi felújítás ráfér, de most is lakható állapotban van. Minden működik, használható. Az otthon melegét távfűtés biztosítja, hőmennyiségmérővel. Valamint van egy hűtő - fűtő klíma, mely megfelelően temperálja a hőmérsékletet. Rendkívül alacsony a rezsi és a közös költség is alacsony! - olcsón fenntartható lakás. Rendezett lakóközösség, ritkán cserélődnek a lakók, nyugalom van. A Belváros gyalog is pár perc alatt elérhető, a Tisza-part karnyújtásnyira van.
Az ingatlan megvásárlásához kedvező hitel is igényelhető, melynek intézéséhez szakszerű segítség áll a leendő vásárló rendelkezésére. Megtekintés előre egyeztetett időpontban lehetséges.

Térkép

A hirdető elérhetősége

OTP Ingatlanpont Csongrád

Vincze Zoltán
+36 70 708