Eladó Lakás
Hirdetéskód: 9240562
Duna House - Szeged, Brüsszeli körút
71.00 m2
ALAPTERÜLET2
SZOBASZÁMnincs megadva
ÉPÍTÉSnincs megadva
FŰTÉS- CSOK igénybe vehető nem
- Tetőtér beépíthető nem
- Klíma nem
- Szigetelt nem
A+++
A++
A+
A
B
C
D
E
F
G
H
I
Az ingatlan leírása
1. emeleti erkélyes ÚJ ÉPTÉSŰ lakás ELADÓ!
Felsőváros új fejezete modern lakás, ahol az első nap is otthon!
Modern új építésű lakások, kiváló helyen minőségi kivitelezéssel!
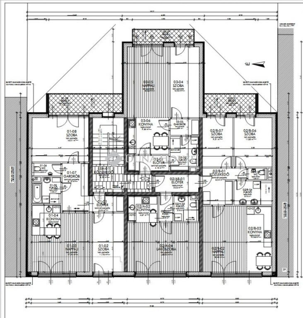
Az épület szintjei: földszint + két emelet + tetőtér beépítés.
Az épülő társasházban, összesen 12 modern lakás, egy üzlethelyiség, 4 garázs és autóbeállók épülnek.
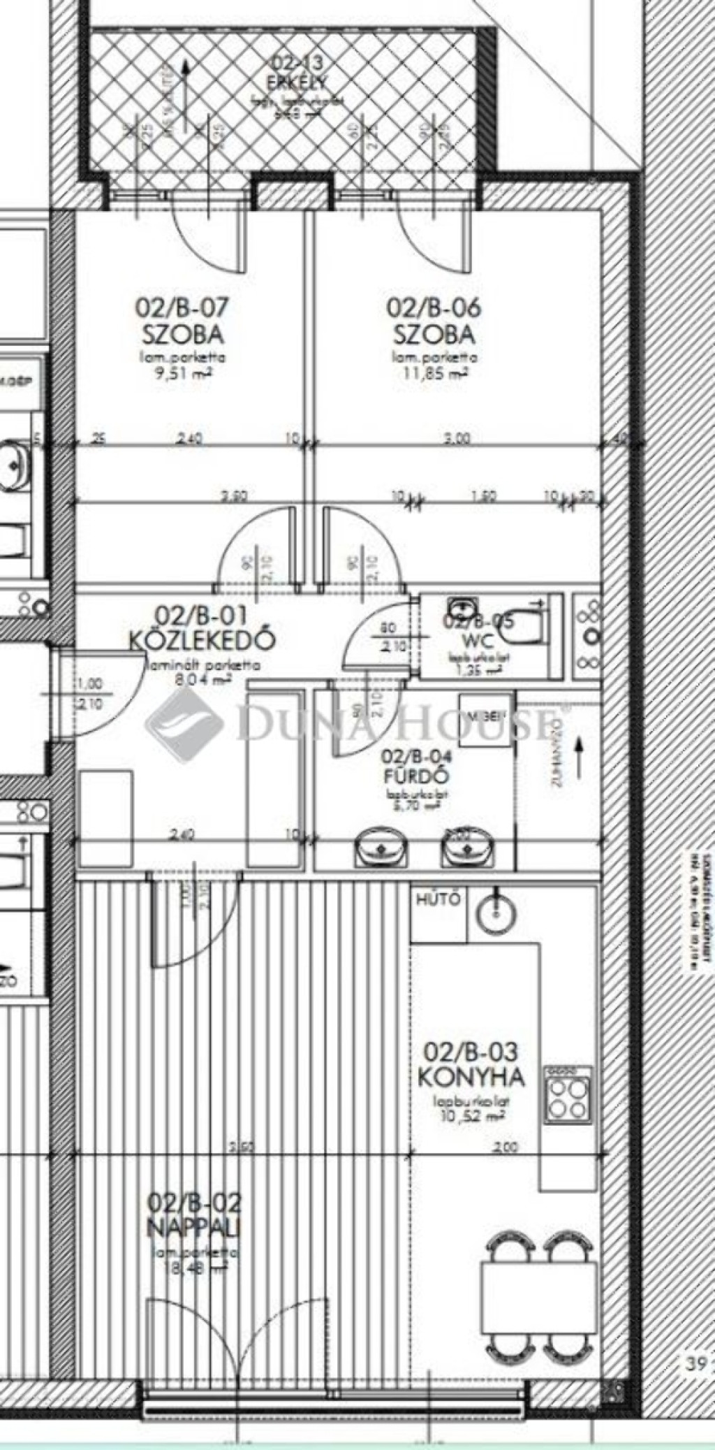
A lakás az első emeleten található, alapterülete: 71,3 nm
Helyiségei:
- nappali+konyha
- előtér
- közlekedő
- fürdő
- WC
- szoba
- szoba
- erkély
A lakáshoz vásárolható garázs, vagy autóbeálló!
Az épület korszerű kialakításának köszönhetően energiatakarékos és modern életstílust kínál, ideális választás fiatal családoknak, befektetőknek vagy vállalkozóknak egyaránt.- HOMLOKZATI FALAK 30 cm vtg. LEIERHERM 30 N+F VÁZKERÁMIÁS FALAZÓBLOKKBÓL KÉSZÜLNEK, HŐSZIGETELŐ HABARCSBA FALAZVA!- A HOMLOKZATON 10 cm AUSTROTHERM GRAFIT HŐSZIGETELÉS KERÜL BEÉPÍTÉSRE- A LAKÁSELVÁLASZTÓ FALAK 25 cm vtg. HANGGÁTLÓ TÉGLÁBÓL KÉSZÜLNEK, - A LAKÁSELVÁLASZTÓ FALAK EI-30 TŰZVÉDELMI TELJESÍTMÉNYŰEK!
A vételár a kulcsrakész állapotot tartalmazza.Birtokbavétel legkésőbb 2027.12.31-én lehetséges.
Kérdés esetén, vagy részletes tájékoztatásért, hívjon bizalommal!
Felsőváros új fejezete modern lakás, ahol az első nap is otthon!
Modern új építésű lakások, kiváló helyen minőségi kivitelezéssel!
Az épület szintjei: földszint + két emelet + tetőtér beépítés.
Az épülő társasházban, összesen 12 modern lakás, egy üzlethelyiség, 4 garázs és autóbeállók épülnek.
A lakás az első emeleten található, alapterülete: 71,3 nm
Helyiségei:
- nappali+konyha
- előtér
- közlekedő
- fürdő
- WC
- szoba
- szoba
- erkély
A lakáshoz vásárolható garázs, vagy autóbeálló!
Az épület korszerű kialakításának köszönhetően energiatakarékos és modern életstílust kínál, ideális választás fiatal családoknak, befektetőknek vagy vállalkozóknak egyaránt.- HOMLOKZATI FALAK 30 cm vtg. LEIERHERM 30 N+F VÁZKERÁMIÁS FALAZÓBLOKKBÓL KÉSZÜLNEK, HŐSZIGETELŐ HABARCSBA FALAZVA!- A HOMLOKZATON 10 cm AUSTROTHERM GRAFIT HŐSZIGETELÉS KERÜL BEÉPÍTÉSRE- A LAKÁSELVÁLASZTÓ FALAK 25 cm vtg. HANGGÁTLÓ TÉGLÁBÓL KÉSZÜLNEK, - A LAKÁSELVÁLASZTÓ FALAK EI-30 TŰZVÉDELMI TELJESÍTMÉNYŰEK!
A vételár a kulcsrakész állapotot tartalmazza.Birtokbavétel legkésőbb 2027.12.31-én lehetséges.
Kérdés esetén, vagy részletes tájékoztatásért, hívjon bizalommal!