Eladó Lakás
Hirdetéskód: 9301299
eXtra Ingatlan iroda.
Felújításhoz személyi kölcsönt keres? Kalkuláljon itt! →
Ez a hirdetés megfelelhet a FIX 3%-os programnak.
Tudj meg többet a részletekről itt.
53.00 m2
ALAPTERÜLET2
SZOBASZÁMnincs megadva
ÉPÍTÉSnincs megadva
FŰTÉS- CSOK igénybe vehető nem
- Tetőtér beépíthető nem
- Építés éve 2025
- Klíma nem
- Szigetelt nem
A+++
A++
A+
A
B
C
D
E
F
G
H
I
Az ingatlan leírása
Rózsa utcában első emeleti új lakás eladó
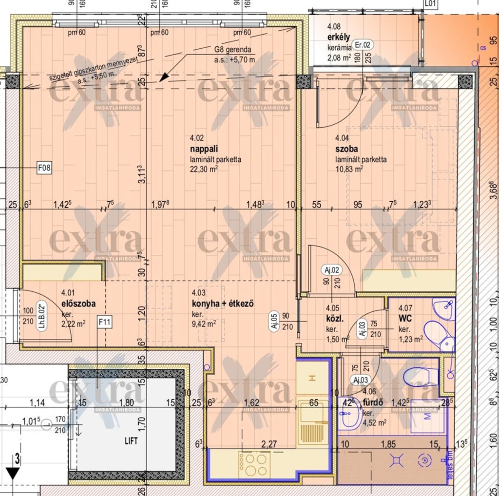
Szegeden, a Rózsa utcában épülő, modern, liftes társasház első emeletén kínálok megvételre egy 53 m²-es, nappali + 1 szobás, kulcsrakész lakást.
A lakás élhető, jól átgondolt elrendezésű, könnyen berendezhető tereket biztosít, így ideális választás akár otthonnak, akár befektetésnek.
Főbb jellemzői:
- a lakás alapterület: 53,06 m2 (52,02 m2+2,08 m2 erkély).
- világos, amerikai konyhás nappali (31,72 m2)
- szoba (10,83 m2)
- fürdő (4,52 m2)
- külön wc
- tágas előtér (2,22 m2)
- hőszivattyús fűtésrendszer
- padlófűtés
- befújásos fan coil hűtés
- kiépített elektromos hálózat (kapcsolókkal és konnektorokkal)
- prémium minőségű homlokzati nyílászárók (3 rétegű hő- és hangszigetelt műanyag nyílászárók)
- redőny előkészítés
- festett falak (2 réteg festés fehér színben)
- belső helyiségek hideg- és melegburkolatai igény szerint választhatóak (szerződésben meghatározott mennyiségben és árban)
- prémium minőségű belső nyílászárók
- kaputelefon
- 1. emeleti elhelyezkedés
- lift
- kulcsrakész műszaki tartalom
- új építésű társasház
- prémium anyagok
- exkluzív kivitelezés
- jó elrendezés, élhető terek
- kiváló elhelyezkedés
- alacsony fenntartás, kiváló energetikai kiépítése miatt
- díjmentes parkolás az utcán
- tágas lépcsőház
- jó tömegközlekedés
- értékálló befektetés
- kiemelkedő bérbe adhatóság
- autóbeálló és garázs vásárlási lehetőség
Várható kulcsrakész átadás: 2026 év vége.
A lakás bármilyen élethelyzetben remek választás lehet: praktikus mérete és jól átlátható alaprajza miatt ideális egyedülállóknak, pároknak, valamint azoknak is, akik befektetési célra vásárolnának ingatlant.
Minden további kérdéseivel vagy időpont egyeztetéssel kapcsolatban keressen bátran!
További kínálatunkat keresse az az eXtraIngatlan iroda hivatalos weboldalán.
Szegeden, a Rózsa utcában épülő, modern, liftes társasház első emeletén kínálok megvételre egy 53 m²-es, nappali + 1 szobás, kulcsrakész lakást.
A lakás élhető, jól átgondolt elrendezésű, könnyen berendezhető tereket biztosít, így ideális választás akár otthonnak, akár befektetésnek.
Főbb jellemzői:
- a lakás alapterület: 53,06 m2 (52,02 m2+2,08 m2 erkély).
- világos, amerikai konyhás nappali (31,72 m2)
- szoba (10,83 m2)
- fürdő (4,52 m2)
- külön wc
- tágas előtér (2,22 m2)
- hőszivattyús fűtésrendszer
- padlófűtés
- befújásos fan coil hűtés
- kiépített elektromos hálózat (kapcsolókkal és konnektorokkal)
- prémium minőségű homlokzati nyílászárók (3 rétegű hő- és hangszigetelt műanyag nyílászárók)
- redőny előkészítés
- festett falak (2 réteg festés fehér színben)
- belső helyiségek hideg- és melegburkolatai igény szerint választhatóak (szerződésben meghatározott mennyiségben és árban)
- prémium minőségű belső nyílászárók
- kaputelefon
- 1. emeleti elhelyezkedés
- lift
- kulcsrakész műszaki tartalom
- új építésű társasház
- prémium anyagok
- exkluzív kivitelezés
- jó elrendezés, élhető terek
- kiváló elhelyezkedés
- alacsony fenntartás, kiváló energetikai kiépítése miatt
- díjmentes parkolás az utcán
- tágas lépcsőház
- jó tömegközlekedés
- értékálló befektetés
- kiemelkedő bérbe adhatóság
- autóbeálló és garázs vásárlási lehetőség
Várható kulcsrakész átadás: 2026 év vége.
A lakás bármilyen élethelyzetben remek választás lehet: praktikus mérete és jól átlátható alaprajza miatt ideális egyedülállóknak, pároknak, valamint azoknak is, akik befektetési célra vásárolnának ingatlant.
Minden további kérdéseivel vagy időpont egyeztetéssel kapcsolatban keressen bátran!
További kínálatunkat keresse az az eXtraIngatlan iroda hivatalos weboldalán.