Eladó Lakás
Hirdetéskód: 9312076

-

Felújításhoz személyi kölcsönt keres? Kalkuláljon itt! →
FIX 3% Program

Ez a hirdetés megfelelhet a FIX 3%-os programnak.
Tudj meg többet a részletekről itt.

53.00 m2
ALAPTERÜLET
1
SZOBASZÁM
Tégla
ÉPÍTÉS
Hőszivattyú
FŰTÉS
  • Ingatlan komfort Összkomfortos
  • Építés éve 2023
  • Fűtés Hőszivattyú
  • Építőanyag Tégla
  • Erkély, terasz Erkély 2.00m2
Energetikai besorolás: Nincs meghatározva
A+++
A++
A+
A
B
C
D
E
F
G
H
I

Az MBH Bank személyi kölcsön ajánlata

Fizetett hirdetés
1 millió Ft
6 évre
20 585 Ft/hó
THM: 14.5%
Részletek →
2 millió Ft
6 évre
41 169 Ft/hó
THM: 14.5%
Részletek →
3 millió Ft
6 évre
61 754 Ft/hó
THM: 14.5%
Részletek →

A tájékoztatás nem teljes körű és nem minősül ajánlattételnek.

Az ingatlan leírása

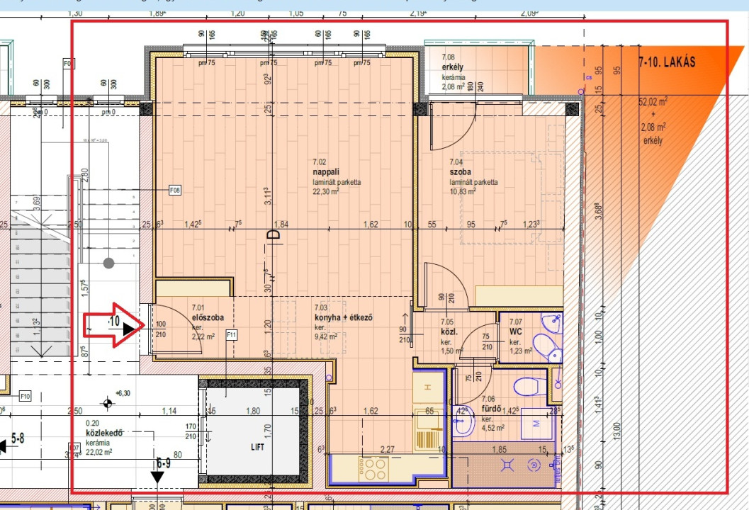
Az ingatlan adatai: Szeged - Északi városrész, Rózsa utcai, 53,06 m2-es, 3. emeleti, téglalakás, új építésű, liftes házban eladó! Helyiségek: amerikai konyha (konyha + étkező + nappali), szoba, fürdőszoba WC-vel, külön WC, előszoba, közlekedő és erkély . Fűtése + hűtése: hőszivattyús fűtési rendszer, padlófűtés, befújásos fan coil hűtés.


A lakás 52,02 m2, az erkély 2,08 m2.


 Kulcsrakész vételára: 68.978.000 + 5% áfa= 72.426.900 Ft.


A lakáshoz lehet garázst, garázst galériával (irodával) vagy udvari beállót is vásárolni.


Garázs: 10.000.000 Ft + 27% áfa = 12.700.000 Ft


Garázs galériával (irodával): 12.800.000 Ft + 27% áfa = 16.256.000 Ft


Udvari beálló: 4.000.000 Ft + 27% áfa = 5.080.000 Ft


Már csak 1 db nagyobb lakás elérhető ebben a házban:


- 2 db 79 m2-es 2. és 3. emeleti (lakás: 72,68 m2 + erkély: 13,29 m2), 3 szobás, két fürdőszobás, két erkélyes lakás, melynek ára: 103.116.000 Ft + 5% áfa = 108.271.800 Ft



Tervezett befejezés: 2026. év vége.


 


Nekem miért tetszik?


A ház liftes, akadálymentesített, energiatakarékos. A lakásokat igényre szabottan készítik el. A kulcsrakész befejezés tartalmazza a kiépített elektromos hálózatot (konnektorokkal, kapcsolókkal), a 3 rétegű hang- és hőszigetelt, műanyag ablakokat, a belső, minőségi ajtókat, a redőny helyének előkészítését, a festett falakat (fehérre), belső helyiségek meleg- és hidegburkolatait, amelyek igény szerint választhatóak (mennyisége és ára szerződésben meghatározott, melytől felár ellenében el lehet térni) és a kaputelefont is. A közelben minden megtalálható, amikre a mindennapokban szükségünk lehet, pl. boltok éttermet, patikák, iskolák, óvodák, busz- és trolimegálló…stb. A parkolás a város ezen részén ingyenes. Közel van az autópálya feljáró és a Belváros is!


 


Ha kérdésed van, vagy szeretnéd megtekinteni az ingatlant, hívj! (Az üzeneteket nem mindig látom, ezért fontos, hogy telefonálj!)


 

Térkép

Ingatlan adásvétel ügyvédi díja
325 921 Ft
a hirdetésben szereplő ár alapján
  • A vételár 0,45%-a
  • Szerződéscsomag teljeskörű képviselettel
  • Ingyenes tulajdoni lap ellenőrzés
  • Az ÁFA-t már tartalmazza
Érdekel az ajánlat →
A tájékoztatás nem teljes körű és nem minősül ajánlattételnek. Minimum díj: 150 000 Ft, maximum díj: 600 000 Ft. A díj kizárólag lakóingatlan adásvételére vonatkozik.

A hirdető elérhetősége

Restás Renáta

70 384