Eladó Lakás
Hirdetéskód: 9178729
GDN Ingatlanhálózat - Belvárosi Ingatlaniroda
Ez a hirdetés megfelelhet a FIX 3%-os programnak.
Tudj meg többet a részletekről itt.
55 m2
ALAPTERÜLET2
SZOBASZÁMnincs megadva
ÉPÍTÉSTávfűtés
FŰTÉS- CSOK igénybe vehető nem
- Tetőtér beépíthető nem
- Fűtés Távfűtés
- Klíma nem
- Szigetelt nem
A+++
A++
A+
A
B
C
D
E
F
G
H
I
Az ingatlan leírása
FELÚJÍTOTT, ERKÉLYES PANELLAKÁS A RÓKUSI KÖRÚTON
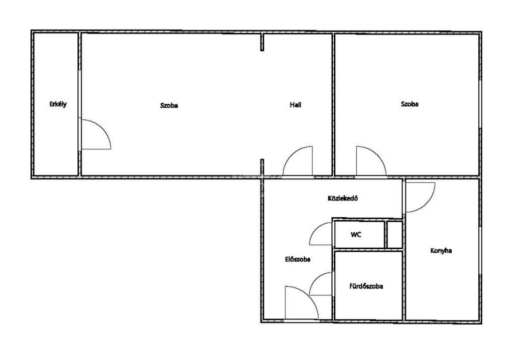
Eladóvá vált egy 55 m²-es, 2 szoba + hall elrendezésű, 2. emeleti (3.szint) panellakás a közkedvelt Rókusi körúton. A lakás erkéllyel rendelkezik, amely redőnyözött és hangszigetelt nyílászáróval ellátott, így a körút forgalma a lakásban egyáltalán nem hallatszik.
FŐBB JELLEMZŐK
Alapterület: 55 m²
Emelet: 2. emelet
Elrendezés: 2 szoba + hall, konyha, fürdőszoba, külön WC, erkély
A közelmúltban műszaki és esztétikai felújításon esett át.
- új, egyedi igények alapján tervezett konyhabútor
- fürdőszoba és WC mennyezetig burkolva
- új hidegburkolat a közlekedőben és a konyhában
- teljes elektromos hálózat korszerűsítve
- biztonsági bejárati ajtó cserélve
Erkély: redőnyözött, zajszigetelt nyílászárókkal felszerelve
Állapot: azonnal költözhető, esztétikus és praktikus otthon
ELHELYEZKEDÉS ÉS KÖRNYÉK
✔ Frekventált, de mégis élhető környék, minden fontos szolgáltatás (bevásárlási lehetőség, gyógyszertár, iskola, óvoda, tömegközlekedés) a közelben.
✔ Kiváló közlekedés – a belváros gyorsan és könnyen elérhető.
✔ Kulturált lakóközösség, rendezett lépcsőház.
Garázs igény szerint tovább bérelhető (közvetlen a lakás alatt)
Ez az ingatlan ideális választás lehet családoknak, fiatal pároknak, de befektetésnek is, hiszen elhelyezkedése és állapota miatt könnyen bérbe adható.
Készpénzes vevőnek jelentős árelőny. ...TOVÁBBI, TÖBBEZRES INGATLAN KÍNÁLAT: - GDN azonosító: 387969
Eladóvá vált egy 55 m²-es, 2 szoba + hall elrendezésű, 2. emeleti (3.szint) panellakás a közkedvelt Rókusi körúton. A lakás erkéllyel rendelkezik, amely redőnyözött és hangszigetelt nyílászáróval ellátott, így a körút forgalma a lakásban egyáltalán nem hallatszik.
FŐBB JELLEMZŐK
Alapterület: 55 m²
Emelet: 2. emelet
Elrendezés: 2 szoba + hall, konyha, fürdőszoba, külön WC, erkély
A közelmúltban műszaki és esztétikai felújításon esett át.
- új, egyedi igények alapján tervezett konyhabútor
- fürdőszoba és WC mennyezetig burkolva
- új hidegburkolat a közlekedőben és a konyhában
- teljes elektromos hálózat korszerűsítve
- biztonsági bejárati ajtó cserélve
Erkély: redőnyözött, zajszigetelt nyílászárókkal felszerelve
Állapot: azonnal költözhető, esztétikus és praktikus otthon
ELHELYEZKEDÉS ÉS KÖRNYÉK
✔ Frekventált, de mégis élhető környék, minden fontos szolgáltatás (bevásárlási lehetőség, gyógyszertár, iskola, óvoda, tömegközlekedés) a közelben.
✔ Kiváló közlekedés – a belváros gyorsan és könnyen elérhető.
✔ Kulturált lakóközösség, rendezett lépcsőház.
Garázs igény szerint tovább bérelhető (közvetlen a lakás alatt)
Ez az ingatlan ideális választás lehet családoknak, fiatal pároknak, de befektetésnek is, hiszen elhelyezkedése és állapota miatt könnyen bérbe adható.
Készpénzes vevőnek jelentős árelőny. ...TOVÁBBI, TÖBBEZRES INGATLAN KÍNÁLAT: - GDN azonosító: 387969