Eladó Lakás
Hirdetéskód: 9228671
Ingatlan Cafe Kft
Felújításhoz személyi kölcsönt keres? Kalkuláljon itt! →68.00 m2
ALAPTERÜLET2
SZOBASZÁMPanel
ÉPÍTÉSTávfűtés
FŰTÉS- CSOK igénybe vehető nem
- Belső szintek 10
- Tetőtér beépíthető nem
- Kilátás Utcai
- Tájolás Délkelet
- Ingatlan komfort Összkomfortos
- Parkolási lehetőség Utcán, közterületen
- Építés éve 1980
- Fűtés Távfűtés
- Építőanyag Panel
- Erkély, terasz Erkély
- Klíma igen
- Szigetelt nem
A+++
A++
A+
A
B
C
D
E
F
G
H
I
Az ingatlan leírása
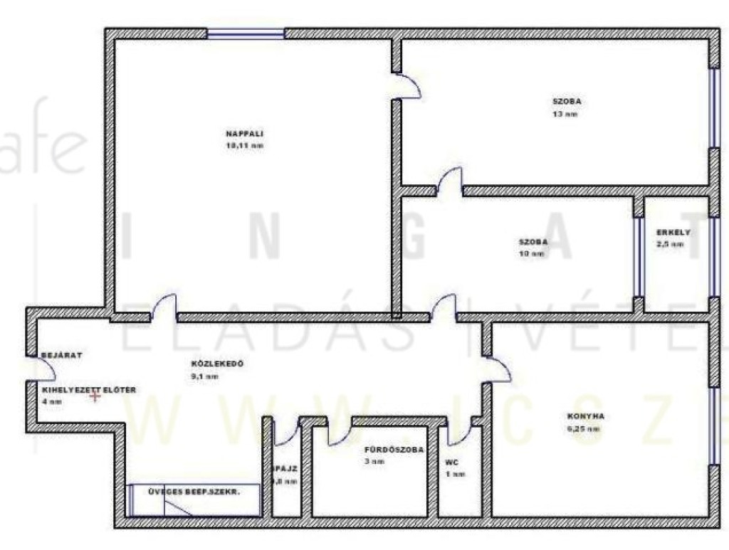
Szegeden, a Retek utcában, LIFTES házban jó állapotú, 3. emeleti, 64+4 m2-es, 2+1 szobás, kifizetett panelprogramos, erkélyes panellakás eladó.
Szegeden a Retek utcában található ez a panelprogramon átesett, kocka tízemeletes ház. A panelfelújítás költségeit a tulajdonosok már kifizették. A környék rendezett, tisztán tartott. A liftes ház 3. emeleten helyezkedik el ez a 64 + 4 m2-es, kihelyezett előteres, 3 SZOBÁS lakás. Két szoba külön bejáratú, a 3. körbejárható, innen nyílik az erkély.
Az AKADÁLYMENTES ingatlant néhány éve felújították, melynek keretében
- a villanyvezetékeket rézre cserélték
- inverteres LG klímát szereltek be
- biztonsági bejárati ajtót építettek be
- a tágas étkezőkonyhába új konyhabútort építettek be
- szalagparkettát tettek a szobákba
- és a hidegburkolatot is kicserélték.
A fürdőszoba és a WC külön helyiségben vannak, mellettük a kamrát megtartották. A lakás tágas, jó állapotú, a ház fekvéséből adódóan igazán napfényes, ugyanis kelet-nyugati tájolású. Műanyag, hőszigetelt ablakok kerültek beépítésre redőnnyel-szúnyoghálóval, a radiátorok hőmennyiségmérősek.
Az új 3 %-os Otthon Start hitelre is alkalmas, tehermentes.
Szegeden a Retek utcában található ez a panelprogramon átesett, kocka tízemeletes ház. A panelfelújítás költségeit a tulajdonosok már kifizették. A környék rendezett, tisztán tartott. A liftes ház 3. emeleten helyezkedik el ez a 64 + 4 m2-es, kihelyezett előteres, 3 SZOBÁS lakás. Két szoba külön bejáratú, a 3. körbejárható, innen nyílik az erkély.
Az AKADÁLYMENTES ingatlant néhány éve felújították, melynek keretében
- a villanyvezetékeket rézre cserélték
- inverteres LG klímát szereltek be
- biztonsági bejárati ajtót építettek be
- a tágas étkezőkonyhába új konyhabútort építettek be
- szalagparkettát tettek a szobákba
- és a hidegburkolatot is kicserélték.
A fürdőszoba és a WC külön helyiségben vannak, mellettük a kamrát megtartották. A lakás tágas, jó állapotú, a ház fekvéséből adódóan igazán napfényes, ugyanis kelet-nyugati tájolású. Műanyag, hőszigetelt ablakok kerültek beépítésre redőnnyel-szúnyoghálóval, a radiátorok hőmennyiségmérősek.
Az új 3 %-os Otthon Start hitelre is alkalmas, tehermentes.