Eladó Lakás
Hirdetéskód: 9180155
OTP Ingatlanpont Csongrád
Ez a hirdetés megfelelhet a FIX 3%-os programnak.
Tudj meg többet a részletekről itt.
53.00 m2
ALAPTERÜLET2
SZOBASZÁMnincs megadva
ÉPÍTÉSnincs megadva
FŰTÉS- CSOK igénybe vehető nem
- Tetőtér beépíthető nem
- Építés éve 1975
- Klíma nem
- Szigetelt nem
A+++
A++
A+
A
B
C
D
E
F
G
H
I
Az ingatlan leírása
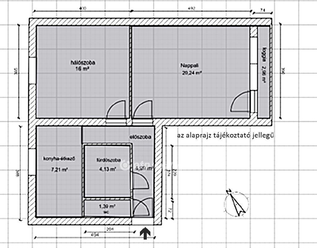
Szegeden 2 szobás frissen felújított téglalakás loggiával eladó!
Az 55 nm hasznos alapterülettel rendelkező földszinti lakás felújítása során az áramellátás bővítése 24 A áramerősségű biztosítékokkal és a vezetékek cseréjével megtörtént. Központi fűtésrendszer biztosítja az otthon melegét, melyhez korszerű gázkazán és lapradiátorok lettek felszerelve. Nyílászárói kétrétegű hőszigetelt műanyag ablakok, részben redőnnyel felszereltek; a bejárat több ponton záródó biztonsági ajtóval szerelt.
Új konyha és fürdőszoba, valamint a burkolatok teljes cseréje zajlik, így komoly érdeklődés esetén még a végleges kialakítás a vevő igényeivel összhangba hozhatók.
A lakás egy 3x14 lakásos társasházban található, egymást segítő, összetartó közösséggel, rendezett lépcsőházzal és barátságos fákkal teli kialakult környezetben. A társasház kezelését felkészült csapat viszi, professzionális mindenre kiterjedő gondossággal. A ház külső szigetelése a korábbi évek során megtörtént.
Az ingatlan kitűnő infrastruktúrával bír, óvoda, iskola, játszótér, orvosi rendelők, bevásárlási lehetőségek és a tömegközlekedési eszközök is rövid sétával elérhetők.
Az ingatlan kitűnő választás akár fiataloknak, vagy kisgyermekes család számára, de az idősebb korosztály is nyugodt, kellemes otthonra találhat ebben a szép lakásban.
Az ingatlan megvásárlásához az OTP finanszírozási megoldásait ajánlom. Otthon Start, vagy Babaváró hitel, vagy OTP Évnyerő lakáshitel is igénybe vehető, melyek intézéséhez szakszerű segítséggel állok a vevő rendelkezésére.
Az 55 nm hasznos alapterülettel rendelkező földszinti lakás felújítása során az áramellátás bővítése 24 A áramerősségű biztosítékokkal és a vezetékek cseréjével megtörtént. Központi fűtésrendszer biztosítja az otthon melegét, melyhez korszerű gázkazán és lapradiátorok lettek felszerelve. Nyílászárói kétrétegű hőszigetelt műanyag ablakok, részben redőnnyel felszereltek; a bejárat több ponton záródó biztonsági ajtóval szerelt.
Új konyha és fürdőszoba, valamint a burkolatok teljes cseréje zajlik, így komoly érdeklődés esetén még a végleges kialakítás a vevő igényeivel összhangba hozhatók.
A lakás egy 3x14 lakásos társasházban található, egymást segítő, összetartó közösséggel, rendezett lépcsőházzal és barátságos fákkal teli kialakult környezetben. A társasház kezelését felkészült csapat viszi, professzionális mindenre kiterjedő gondossággal. A ház külső szigetelése a korábbi évek során megtörtént.
Az ingatlan kitűnő infrastruktúrával bír, óvoda, iskola, játszótér, orvosi rendelők, bevásárlási lehetőségek és a tömegközlekedési eszközök is rövid sétával elérhetők.
Az ingatlan kitűnő választás akár fiataloknak, vagy kisgyermekes család számára, de az idősebb korosztály is nyugodt, kellemes otthonra találhat ebben a szép lakásban.
Az ingatlan megvásárlásához az OTP finanszírozási megoldásait ajánlom. Otthon Start, vagy Babaváró hitel, vagy OTP Évnyerő lakáshitel is igénybe vehető, melyek intézéséhez szakszerű segítséggel állok a vevő rendelkezésére.