Eladó Lakás
Hirdetéskód: 9188792
HomingSzeged Ingatlaniroda
621 m2
ALAPTERÜLET4
SZOBASZÁMnincs megadva
ÉPÍTÉSnincs megadva
FŰTÉS- CSOK igénybe vehető nem
- Belső szintek 3
- Tetőtér beépíthető nem
- Építés éve 2026
- Klíma nem
- Szigetelt nem
A+++
A++
A+
A
B
C
D
E
F
G
H
I
Az ingatlan leírása
Szeged egyik legújabb, modern szemlélettel és kiemelkedő minőségben épülő társasházában kínálunk eladó lakásokat és irodákat, amelyek a legújabb energetikai elvárásoknak megfelelően készülnek el.
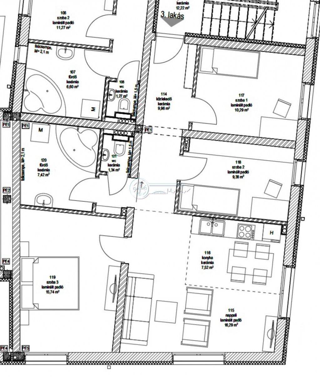
Ez a 3.számú, utcára néző lakás az 1. emeleten helyezkedik el. A 77,94 nm alapterületen az amerikai konyhás nappali mellett 3 hálószoba található.
A lakás saját helyrajzi számmal fog rendelkezni, azonban igény esetén két garzon lakássá alakítható.
Nem véletlenül nevezzük prémium kategóriásnak: – az épület minden részletében a minőséget és az innovatív műszaki megoldásokat képviseli.
Néhány kiemelt műszaki megoldás, ami megkülönbözteti a projektet más újépítésű társasházaktól:
-LeierTherm 30 NF Pro falazat → masszív, időtálló szerkezet, kiváló hőtartással
-Hanggátló válaszfalak → nyugodt pihenés, jobb zajszűrés a helyiségek között
-MIG-ESP belső falak → modern kialakítás, igény szerint festett vagy vakolt felületekkel
-Hőszivattyús padlófűtés és Fan-Coil hűtés előkészítése
-3 rétegű, alu keretes nyílászárók → antracit színben, kiváló hő- és hangszigeteléssel
-Elektromosan vezérelhető alumínium redőnyök: csak redőnytok és szúnyogháló lefutó előkészítésével (redőnyléc és szúnyogháló nélkül)→ kérésre okos otthon rendszerrel
-Tetőtéri ablakok → belső árnyékolóval lesznek felszerelve
-Biztonsági bejárati ajtók → több ponton záródó, digitális kitekintővel
-Látszóbeton mennyezet lakkozott felülettel → modern, loftos hangulat
-Futura videók kaputelefon rendszer → többféle azonosítás, maximális biztonság
-Mozgásérzékelős LED világítás → energiatakarékos megoldások az épületben és az udvaron
-Magas sávszélességű optikai internet (T-Com & Invinetwork), okos-otthon és riasztó előkészítése
-Elektromos autótöltő modul, kerékpár-, roller- és babakocsi-tárolók töltési lehetőséggel
-Süllyesztett postaláda rendszer, dekorfal, megvilágított lépcsőfokok → elegáns közösségi terek
-Garázs, kültéri fedett és nyitott parkolók + szabadtéri süllyesztett parkolólift több autó tárolására
-Parkosított, füvesített udvar esővíz-gyűjtő öntözőrendszerrel → környezettudatos és fenntartható kialakítás
Miért érdemes személyesen is megnéznie ezt a társasházat?
Mert itt minden részlet egy átgondolt koncepció része. A cél az volt, hogy egy olyan otthont hozzanak létre, ahol modern életérzés, esztétikus megjelenés és hosszú távú értékállóság találkozik.
A belső terek letisztult, elegáns vonalvezetése a természetes anyagokkal és színekkel harmóniát teremt.
A nagy üvegfelületek minden lakást világossá és napfényessé varázsolnak.
A modern szigetelés és hanggátló falak biztosítják, hogy a mindennapok zaja ne zavarja a pihenést.
A parkolási megoldások széles választéka – a fedett helytől a parkolóliftig – a mindennapi kényelmet szolgálja.
Kinek ajánljuk?
-Befektetőknek: a modern, energiahatékony lakások kiemelkedően keresettek a bérlők körében
-Fiatal pároknak: stílusos, elérhető méretű otthon, amely hosszú távon is értékálló
-Idősebb korosztálynak: akadálymentesített épület, lift, biztonságos, parkosított környezet
-Vállalkozóknak: az irodai funkciókra is alkalmas terek elegáns megjelenése presztízst ad minden tevékenységhez
Elhelyezkedés
Az épület kiváló lokációban épül, a belváros közelében, mégis csendes, nyugodt utcában.
A környék teljes infrastruktúrával rendelkezik:
– néhány perc séta boltok, gyógyszertár, sportlétesítmények, közlekedési csomópont
– rövid autóútra egyetemi épületek, TIK, Liget és bevásárlóközpontok
Várható kulcsrakész átadás: 2026. I. negyedév.
A fotók a lakásokról készült látványképek.
Ha a vásárláshoz hitelre van szüksége, bank független hiteltanácsadónk az összes bank kínálatát versenyezteti az Ön igényeire szabva, díjmentesen.
További információért és a lakások személyes megtekintéséért keressen bizalommal – mert ezt az épületet élőben látni kell, hogy igazán érezze a különbséget!
Ez a 3.számú, utcára néző lakás az 1. emeleten helyezkedik el. A 77,94 nm alapterületen az amerikai konyhás nappali mellett 3 hálószoba található.
A lakás saját helyrajzi számmal fog rendelkezni, azonban igény esetén két garzon lakássá alakítható.
Nem véletlenül nevezzük prémium kategóriásnak: – az épület minden részletében a minőséget és az innovatív műszaki megoldásokat képviseli.
Néhány kiemelt műszaki megoldás, ami megkülönbözteti a projektet más újépítésű társasházaktól:
-LeierTherm 30 NF Pro falazat → masszív, időtálló szerkezet, kiváló hőtartással
-Hanggátló válaszfalak → nyugodt pihenés, jobb zajszűrés a helyiségek között
-MIG-ESP belső falak → modern kialakítás, igény szerint festett vagy vakolt felületekkel
-Hőszivattyús padlófűtés és Fan-Coil hűtés előkészítése
-3 rétegű, alu keretes nyílászárók → antracit színben, kiváló hő- és hangszigeteléssel
-Elektromosan vezérelhető alumínium redőnyök: csak redőnytok és szúnyogháló lefutó előkészítésével (redőnyléc és szúnyogháló nélkül)→ kérésre okos otthon rendszerrel
-Tetőtéri ablakok → belső árnyékolóval lesznek felszerelve
-Biztonsági bejárati ajtók → több ponton záródó, digitális kitekintővel
-Látszóbeton mennyezet lakkozott felülettel → modern, loftos hangulat
-Futura videók kaputelefon rendszer → többféle azonosítás, maximális biztonság
-Mozgásérzékelős LED világítás → energiatakarékos megoldások az épületben és az udvaron
-Magas sávszélességű optikai internet (T-Com & Invinetwork), okos-otthon és riasztó előkészítése
-Elektromos autótöltő modul, kerékpár-, roller- és babakocsi-tárolók töltési lehetőséggel
-Süllyesztett postaláda rendszer, dekorfal, megvilágított lépcsőfokok → elegáns közösségi terek
-Garázs, kültéri fedett és nyitott parkolók + szabadtéri süllyesztett parkolólift több autó tárolására
-Parkosított, füvesített udvar esővíz-gyűjtő öntözőrendszerrel → környezettudatos és fenntartható kialakítás
Miért érdemes személyesen is megnéznie ezt a társasházat?
Mert itt minden részlet egy átgondolt koncepció része. A cél az volt, hogy egy olyan otthont hozzanak létre, ahol modern életérzés, esztétikus megjelenés és hosszú távú értékállóság találkozik.
A belső terek letisztult, elegáns vonalvezetése a természetes anyagokkal és színekkel harmóniát teremt.
A nagy üvegfelületek minden lakást világossá és napfényessé varázsolnak.
A modern szigetelés és hanggátló falak biztosítják, hogy a mindennapok zaja ne zavarja a pihenést.
A parkolási megoldások széles választéka – a fedett helytől a parkolóliftig – a mindennapi kényelmet szolgálja.
Kinek ajánljuk?
-Befektetőknek: a modern, energiahatékony lakások kiemelkedően keresettek a bérlők körében
-Fiatal pároknak: stílusos, elérhető méretű otthon, amely hosszú távon is értékálló
-Idősebb korosztálynak: akadálymentesített épület, lift, biztonságos, parkosított környezet
-Vállalkozóknak: az irodai funkciókra is alkalmas terek elegáns megjelenése presztízst ad minden tevékenységhez
Elhelyezkedés
Az épület kiváló lokációban épül, a belváros közelében, mégis csendes, nyugodt utcában.
A környék teljes infrastruktúrával rendelkezik:
– néhány perc séta boltok, gyógyszertár, sportlétesítmények, közlekedési csomópont
– rövid autóútra egyetemi épületek, TIK, Liget és bevásárlóközpontok
Várható kulcsrakész átadás: 2026. I. negyedév.
A fotók a lakásokról készült látványképek.
Ha a vásárláshoz hitelre van szüksége, bank független hiteltanácsadónk az összes bank kínálatát versenyezteti az Ön igényeire szabva, díjmentesen.
További információért és a lakások személyes megtekintéséért keressen bizalommal – mert ezt az épületet élőben látni kell, hogy igazán érezze a különbséget!